查看完整案例


收藏

下载
New Zealand Clifton House
设计方:Herbst Architects
位置:新西兰
分类:别墅建筑
内容:实景照片
图片:10张
摄影师:Lance Herbst
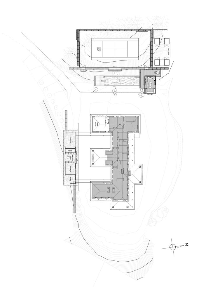
项目包括了两个新的楼阁。这些楼阁的场址在原始大H型别墅的旁边。H型的别墅坐落在一个水平的山顶上,这个山顶是一个大庄园的一部分。项目被分成了两个部分:一个消遣娱乐部分,包括了游泳池、泳池凉亭和网球场;还有一个部分是实用性的部分,包括了一个停车场、贮藏室和办公室。环境:原始的别墅有一个传统的外表,使用了石头的包层和一个有斜脊的、有瓦楞的铁屋顶。别墅坐落在水平山顶的中心,被草坪和车道包围着。理念:在新旧建筑体量之间创造一个动态的关系,并为山顶提供一个建筑边缘,从而在新旧之间创造一个积极的遮蔽空间。
新旧建筑体量之间的对话是通过新旧建筑体量之间的形式和结构对比展开的。新的楼阁式平坦的屋顶结构,被掐丝木包层覆盖着,从而形成了与原始石头包层建筑体量相对应的大量锯齿状突出结构。两个有顶的通道在车库和别墅之间提供了光的连接。看向远处的视野被木制的屏幕框架和像素化了,与原始别墅的广阔视野形成了对比。为了加强车库木皮肤的轻盈感,这层木皮肤被夹在了一个混凝土地板和屋顶板之间。
译者:蝈蝈
The project comprises of 2 new pavilions. The siting of these pavilions is alongside an existing large H shaped house. The H shaped house sits on a levelled hill top which forms part of a large estate.The programme was divided into two, a recreational component including a swimming pool, pool pavilion and tennis court and a utilitarian component to house a garage, store rooms and office.Context: the existing house has a traditional expression, stone clad with a hipped corrugated iron roof. The house sits central on the levelled hill top surrounded by lawn and driveway. Concept: create a dynamic relationship between the old and new and to provide an architectural edge to the hill top and in doing so create positive sheltered spaces between the new and old.
The dialogue between old and new is set up by contrasting the form and fabric of the new pavilions with the existing house. The new pavilions are flat roofed structures, sheathed in a taught filigree timber skin thereby forming a counterpoint to the massive crenulated bulk of the existing stone clad building.Two covered walkways provide light connections between the garage pavilion and house. Views beyond are framed and pixelated by the timber screen providing a contrast to the expansive views from the existing house.To heighten the sense of lightness of the timber skin of the garage pavilion it is sandwiched between a con-crete floor and roof slab.
新西兰克里夫顿别墅外部实景图
新西兰克里夫顿别墅外部夜景实景图
新西兰克里夫顿别墅内部实景图
新西兰克里夫顿别墅夜景实景图
新西兰克里夫顿别墅平面图
客服
消息
收藏
下载
最近












