查看完整案例


收藏

下载
Portugal JC Villa
设计方:JPS Atelier
位置:葡萄牙
分类:别墅建筑
内容:实景照片
图片:30张
摄影师:Joao Morgado
项目坐落在葡萄牙,奥埃拉斯的最高点上,可以看见塔霍河和大西洋。这栋别墅以一块梯形的场址为基础,也是这个梯形的场址形成了这个项目的创造理念。场址的特色和客户的要求发起了两个主要的错列建筑体量。这两栋建筑体量虽然是错列的,但是又完美的与边界对齐,这在为别墅提供一定动力的同时还保护了别墅不受北风和西北风的侵扰。
译者:蝈蝈
Located in one of the highest points in Oeiras, Portugal, with a view over the Tejo river and the Atlantic ocean, this house is based on a trapezoidal terrain which formed the concept for the creation of this project.The terrain characteristics and customer requirements originated two main staggered volumes but perfectly aligned with batch limits bring a certain dynamic to the house at the same time protects it from the north and northwest winds.
葡萄牙JC别墅外部实景图
葡萄牙JC别墅外部夜景实景图
葡萄牙JC别墅内部实景图
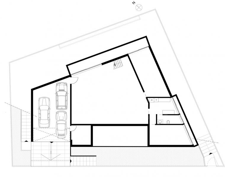
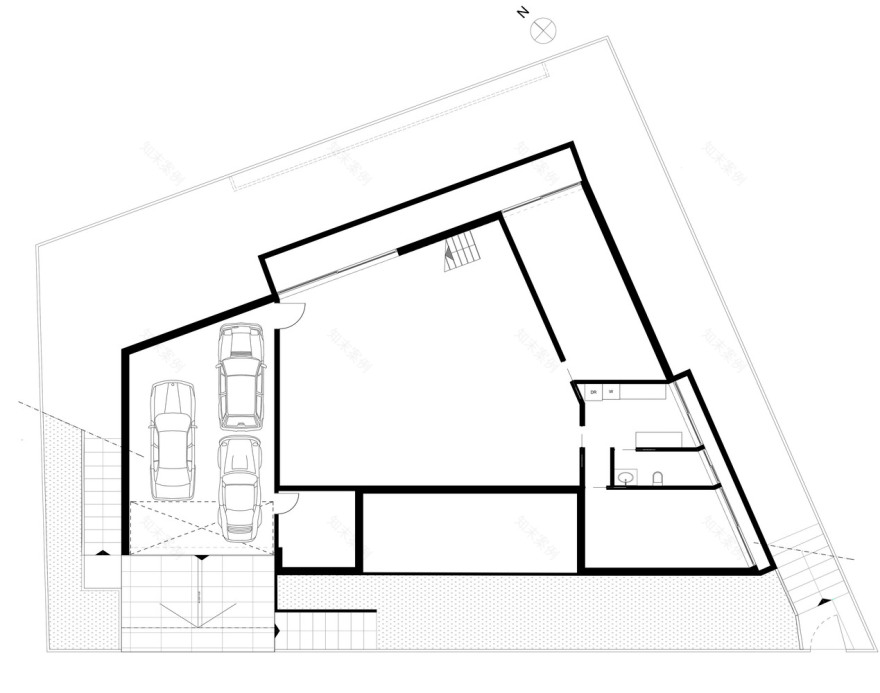
葡萄牙JC别墅平面图
葡萄牙JC别墅立面图
客服
消息
收藏
下载
最近





























































