查看完整案例


收藏

下载
America California Valley Floor villa
设计方:Jorgensen Design
位置:美国
分类:别墅建筑
内容:实景照片
图片:22张
摄影师:Joe Fletcher Photography
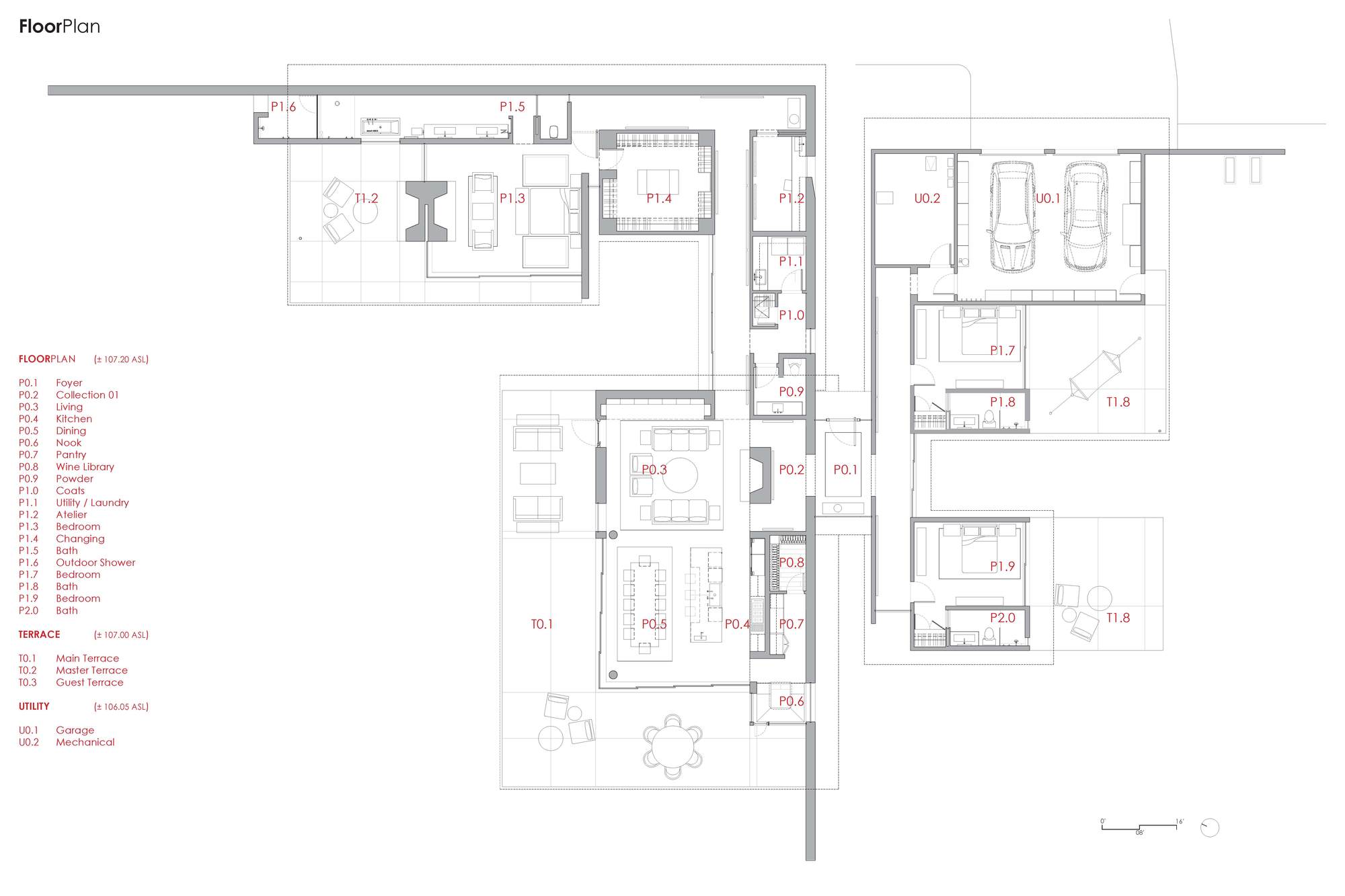
这座房子位于葡萄园和接近市中心的位置,整个地块面积很大,且分布着成年的葡萄树。项目包括两间房子,中间由一个玻璃走廊相连。为了避免街道方向上的喧闹,每一间房子都有一面呈L型的墙面,材料选择上,其中一面墙采用的是石块,另一面墙采用的是雪松木。在墙体的后面是一系列的梯田和小型庭院,聚集在一起,形成了花园集群。细长的空间,连接了花园、庭院和室内空间,
设计方案
充分考虑并尊重了周围景观。
花园的入口被设计成一个玄关,通过这里就可以看到一个坚实的红木门。门后一个小型玻璃门厅,它连接了两间房子的主墙。门厅的一头通向花园和客房,另一头通向艺术家的收藏室和主卧室。主卧室朝向山谷方向的葡萄园,拥有270度的景观宽度,可以欣赏到马亚卡马斯山脉、St. Helena山脉和Stags Leap等美景。
译者:蝈蝈
Set within the vineyards and close to the center of town, the site for the house is a large plot of land dotted with full grown trees and vineyards.The project consists of two houses connected with glass. Each house is protected from a busy road with two 'L' Shaped walls - one is stone and one is cedar. A number of pieces behind these walls are arranged together around courtyards and terraces. In turn giving rise to a sequence of individual gardens, each with their own individual ambience - gardens set among other limitless gardens. A system of slender spaces act like paths connecting the gardens, courtyards, and interior spaces, each embracing and respecting the landscape.
The entrance garden is conceived as a porch-like atrium which leads to a solid redwood door crafted from the only tree removed from the site. This door opens to a small glass foyer which connects the two main walls of the house. To one side is an interior gateway through a cedar wall and to the other side is a portal through a thick stone wall. The gateway opens to a garden and guestrooms and the portal opens onto the family art collection and main house. The main house opens to vineyards on the valley floor with 270 degree views of the surrounding Mayacamas Mountains, Mt. St. Helena, and Stags Leap beyond.
美国加州谷底别墅外部实景图
美国加州谷底别墅之局部实景图
美国加州谷底别墅外部局部实景图
美国加州谷底别墅外部夜景实景图
美国加州谷底别墅之庭院实景图
美国加州谷底别墅内部实景图
美国加州谷底别墅内部过道实景图
美国加州谷底别墅平面图
美国加州谷底别墅立面图
美国加州谷底别墅剖面图
客服
消息
收藏
下载
最近
























