查看完整案例


收藏

下载
Spain Punta Canide Family House
设计方:Diazy Diaz Arquitectos
位置:西班牙
分类:别墅建筑
内容:实景照片
图片:22张
摄影师:Hector Santos-Diez
这栋独立式别墅坐落在奥莱罗斯的Punta Canide,在一个海湾中,拥有绝好的海景,因为这个位置的原因,建筑体量应该回应一些独特的由市政条例要求的限制和约束,和场址自身的形态要求,所以别墅要适应场址的斜坡地形,斜坡的高差大约有三米。我们同样搜寻着最佳的朝向,以提升别墅的视野,并使得别墅拥有最好的风景。在这个项目中,三种材料是绝对的主角:混凝土、木材和玻璃。在场址的西面,我们留下了很多空余的空间,这里有一个木制的平台、一个游泳池和园林景观。
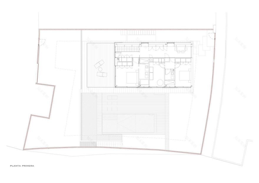
混凝土是骨架,它在三个不同的矩形楼面上转动、弯曲、移动和定型着别墅,创造了不同的露台区域和被遮盖的入口,和工程的设计一样。地底的层面被旋转了,与一楼和二楼形成了一个直角,地下室层面与场址的原始斜坡相适应着。地下室与车辆的出入口平行,所以它被当做了车库,也是存放家庭设施和洗衣设施的理想场所。一楼与场址的纵轴平行,这是为了与上部的道路齐平,这条道路是主要的行人入口。一楼中包含了家庭的日常区域,比如厨房、起居室和小的盥洗室,在这个楼层中,玻璃成为了主要的元素,所以所有的房间都是公开的,别墅也向着外部的阳台区域和游泳池敞开着。
译者:蝈蝈
This detached house is located in Punta Canide, Oleiros, in the Bay, with stunning sea views. Due to this location, the building should respond to some very specific buildable constrains and setbacks, required by municipal regulations, as well as the morphology of the land itself, which required adapting to the slope of the plot, with a drop of nearly three metres. We also searched for the best orientation to promote the best views of the building sight.Three materials are the absolute protagonists of this work, concrete, wood and glass.The building leaves plenty of free space on the west bank of the plot, where a wooden platform is implanted with a swimming pool and landscaping.
Concrete is the skeleton, it turns, bends and moves, and shapes the housing at three different rectangular floor levels, creating different areas of terraces and covered entrances as design in the project. The volume of lower ground floor has been rotated 90 degrees from the volume of the ground floor and first floor, and fits in with the existing slope of the plot. This volume runs parallel to the road vehicle access so it is used as a garage area and is the ideal location for the room facilities and laundry facilities.The ground floor runs parallel to the longitudinal axis of the plot, to level with the upper road which is the main pedestrian access. In this volume are located the day areas of the house, kitchen, living room and a small bathroom, the glass becomes the main element, so that all the rooms turn to the views and allow the house to open to the outside towards the terraced area and pool.
西班牙Punta Canide家庭别墅外部实景图
西班牙Punta Canide家庭别墅内部实景图
西班牙Punta Canide家庭别墅平面图
西班牙Punta Canide家庭别墅立面图
西班牙Punta Canide家庭别墅剖面图
客服
消息
收藏
下载
最近
























