查看完整案例


收藏

下载
Australian river villa
位置:澳大利亚
分类:别墅建筑
内容:实景照片
图片来源:Peter Bennetts
建筑设计:Bennett and Trimble
图片:24张
摄影师:Peter Bennetts
这个新的,带院子的别墅是为一个年轻的家庭设计建造的,坐落在一个位于悉尼城郊的质朴的街区里面。别墅西北角的屋顶有一块是空缺的,这样的设计是为了让阳光更好的进入别墅的庭院和别墅南边的房间。别墅内的庭院与生活区域连在一起,从庭院里可以看见附近的街道、别墅内的生活区域和别墅的后花园。别墅的内部和外部都用了色彩鲜艳的砖结构,从而加强了别墅内、外部之间的联系。
游戏室不在建筑的基本框架之内,在餐厅和厨房的上面。游戏室是专门属于孩子的独立区域,在主要的生活区域里面。在别墅建设期间,为别墅简洁的墙面装上了厚钢板做成的遮阳天棚,并用橡皮锤做出了内凹的砖块图案。
译者:蝈蝈
A new courtyard house for a young family on a modest suburban block in Sydney.The roof is deformed at the northeast corner allowing sunlight deep into the courtyard and the southern rooms of the house.The courtyard links the ground floor living spaces and creates visual connections between the street, the living areas and the back garden.Painted brickwork is used internally and externally to reinforce this relationship.
A playroom is peeled away from the envelope and suspended over the dining room and kitchen providing an independent children’s area within the main living spaces.The economical facade of was enriched with plate steel sun shades and a pattern of bricks inset with a rubber mallet during the construction process.
澳大利亚河景别墅外部实景图
澳大利亚河景别墅外部局部实景图
澳大利亚河景别墅外部侧面实景图
澳大利亚河景别墅外部细节实景图
澳大利亚河景别墅外部夜景实景图
澳大利亚河景别墅内部实景图
澳大利亚河景别墅内部局部实景图
澳大利亚河景别墅内部一角实景图
澳大利亚河景别墅内部厨房实景图
澳大利亚河景别墅内部浴室实景图
澳大利亚河景别墅内部空间实景图
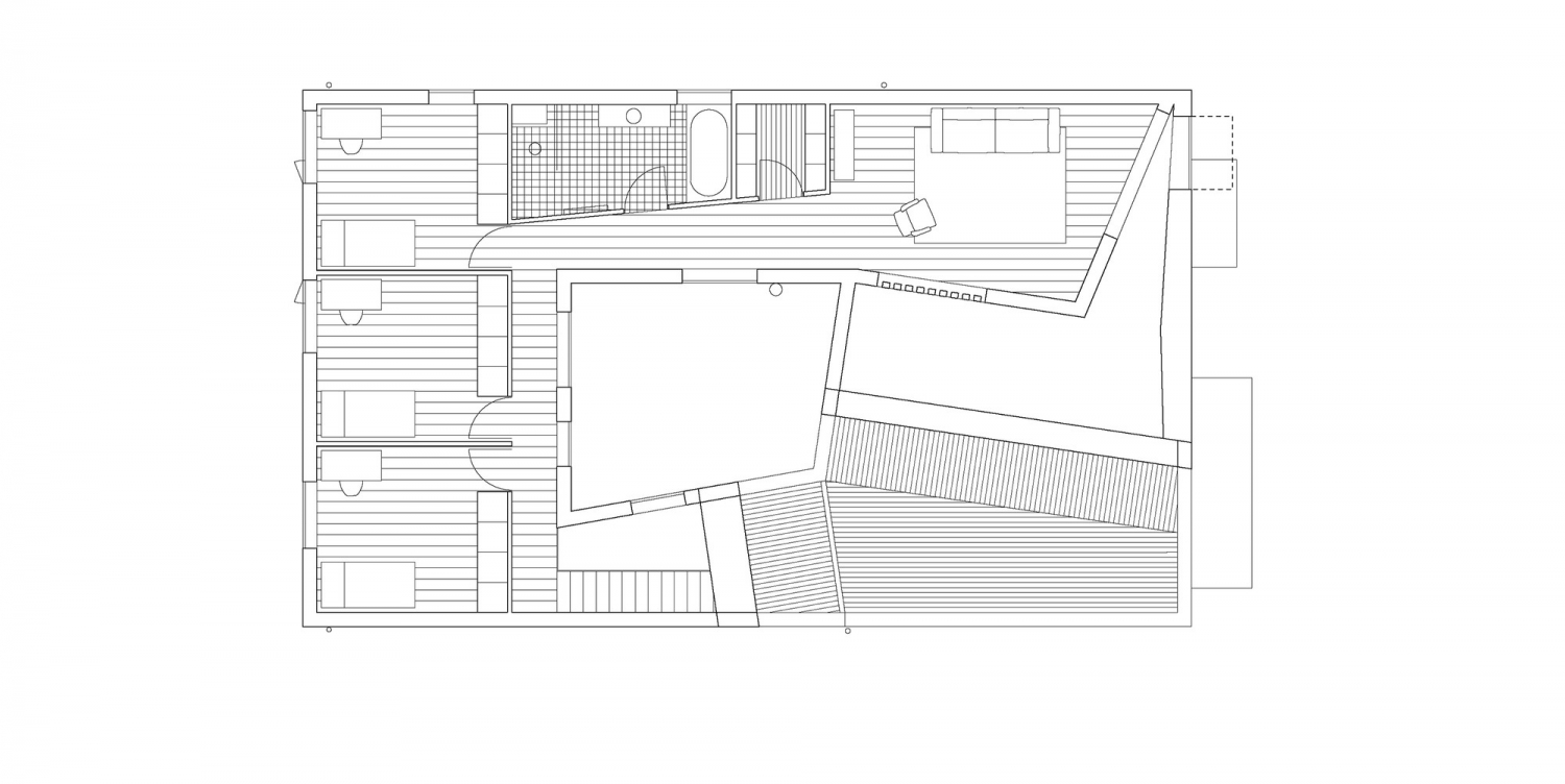
澳大利亚河景别墅内部空间平面图
澳大利亚河景别墅内部空间剖面图
客服
消息
收藏
下载
最近


























