查看完整案例


收藏

下载
The wooden frame villas
设计方:A-ZERO 建筑设计事务所
位置:英国 伦敦
分类:别墅建筑
内容:实景照片
图片来源:James Whitaker
图片:13张
摄影师:James Whitaker
这栋别墅是为一个年轻的家庭设计建造的,别墅位于伦敦城区外的乡村地区,别墅挨着一个旧牛棚的墙修建。因为对完全接触周围环境的建筑感兴趣,客户要求别墅必须与周围环境和谐的融合在一起,并尽量使用本地材料和重复利用材料,以保证别墅是环保性能高的典范。原始农场的南边风景优美,北边有一个盖了顶的庭院。新修的别墅完全遵循这样的设计安排,别墅南部区域是釉面设计,并作为主要的起居、就餐区,并通过这个区域与别墅北部的区域相连,远离盛行风。新修别墅的面积占以前旧谷仓面积的三分之二,剩下的三分之一在别墅北边,建造成了一个有顶的庭院。
别墅橡木构架的设计是别墅设计的关键,但是也存在潜在的问题,即随着时间的推移,因为空气密度的影响,橡木构架必然会出现收缩的现象。于是用混合结构解决了这个问题。完全内化的项目框架起到支撑作用,外面包裹一层对空气高绝缘的材料。新的橡木构架和重新利用的钢构架之间相对的位移,从而在地面上创造了一些自然通风的小开口。
译者:蝈蝈
A young family decided to settle in a rural area outside of London, and to start their building project around the walls of an old cow shed. Interested in a holistic approach to environmental architecture, their brief was that the house should fit harmoniously in its context, use locally harvested and reused materials where possible and be an exemplar in terms of environmental performance.The original organisation of the farm provided good views to the south and a sheltered courtyard to the north. The new house works within this arrangement, glazed to the south for passive gains to the main living / dining area, and accessed via the north, away from prevailing winds. The footprint of the new house occupies two thirds of the original barn footprint, the remaining third left as a sheltered courtyard to the north.
The idea of an oak frame building was identified as a key design aspiration, but presented potential issues in terms of maintaining air tightness with inevitable shrinkage of the frame over time. The solution was a hybrid structure, with a fully internalised oak frame providing strength, and a highly insulated air tight envelope externally providing stiffness. The new oak frame and the reused steel frame are offset relative to each other providing small openings for natural ventilation at ground level.
英国木构架别墅外部实景图
英国木构架别墅外部局部实景图
英国木构架别墅外部细节实景图
英国木构架别墅外部夜景实景图
英国木构架别墅内部过道实景图
英国木构架别墅内部实景图
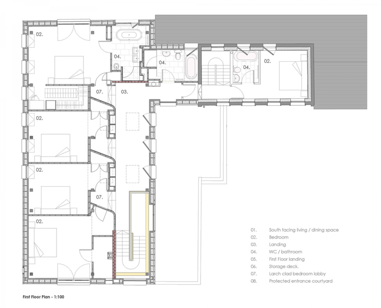
英国木构架别墅平面图
英国木构架别墅剖面图
英国木构架别墅分析图
客服
消息
收藏
下载
最近















