查看完整案例


收藏

下载
States United Rosa muerta vacation home
位置:美国 加利福尼亚州
分类:别墅建筑
内容:实景照片
建筑师:robert stone
图片:13张
摄影师:brad landsill
这是由洛杉矶建筑师robert stone设计的rosa muerta度假别墅。充满象征的对照和传统沙漠建筑的结合,与场地的短叶丝兰的景观相协调。建筑经典样式的体量和比例,结合局部大胆的倾斜元素,与周边的自然环境形成对比。多样式的暗色系面板与露天区的纹理,提供了无穷尽探索的氛围和以单色调为主的家宅。暗色调的建筑与浅色调的沙漠,形成强烈的冲击感。建筑师认为,这不仅仅是一座普通的现代的黑色住宅,黑色的运用有助形成反转图底关系,削弱建筑在沙漠中的存在感,让沙漠成为焦点。
译者: 艾比
following acido dorado in the arid landscape of joshua tree, LA-based architect robert stone has erected the symbolic antithesis to traditional dessert architecture. a structure classically massed and proportioned at times skewed with rebellious eccentricities stands boldly contrasting its natural surroundings. a rich palette of dark hues and textures breathes life into the open air structure offering an endless discovery of tones and reflections in what is otherwise a home rendered of a single color: black. in breaking from expected conventions, the dark residence in a light desert fuses the highest standards of contemporary finishes with a strong almost subversive undertone of social commentary.
the architect explains his thought process to designboom:‘I think rosa muerta gets a lot more interesting once you notice that it isn’t just a normal modern house painted black. it is black to the bone. I used black to negate the house as a figure in the landscape. the desert is seen as a void by many- so the house goes further and voids itself. a desert within a desert – it inverts figure and ground and makes the surrounding desert the focus, the figure, and the color. that is just the surface though.’
‘once you get past that, and your eyes attune to the details, the house reveals a mix of textures and ideas that one wouldn’t normally accept together- classic modern lines stretched horizontally beyond reason, funereal flowers overtaking structure, limousine glass and lava rock, silk rope on rough wood beams and polished stainless columns that run off into the desert, mirrors secreted under deep overhangs, a heart shape removed from the center of a concrete wall. it is as highly finished as any jewel of modernism but perhaps most closely resembles a burned-out abandoned house.’
‘I see the tension between these things- and their uneasy resolution under the coat of black paint as the thing that makes the house interesting and meaningful over time. it adds up to a portrait of southern california desert culture and its complex relationship to nature. the house puts you in the middle of that and you have to figure your way out. some people like this house and some don’t- I hope it is beyond that and can be seen as a true representation of a larger cultural condition. . and truth is beauty.‘
‘the question of how we relate to nature has been at the core of california modernism for 60 years, but the answers being proposed to that question haven’t changed over that time. mass production, pre-fab, and clinging faith in technology remain the published response of the architecture world while the cultural condition that surrounds us has transformed entirely. nature is no longer simply revered- it is also feared. technology may save us or kill us. I am interested in the full complexity of our relationship to nature and finding some truth in it whether negative or positive.
美国rosa muerta度假别墅外部实景图
美国rosa muerta度假别墅外部局部实景图
美国rosa muerta度假别墅外部阳台实景图
美国rosa muerta度假别墅外和内局部实景图
美国rosa muerta度假别墅内部局部实景图
美国rosa muerta度假别墅内部门口实景图
美国rosa muerta度假别墅内部细节实景图
美国rosa muerta度假别墅外部夜景实景图
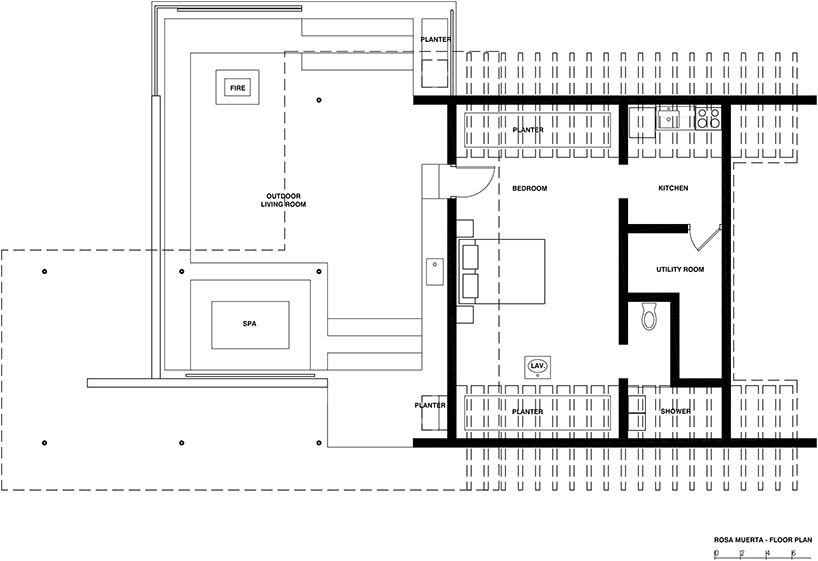
美国rosa muerta度假别墅平面图
美国rosa muerta度假别墅剖面图和立面图
客服
消息
收藏
下载
最近















