查看完整案例


收藏

下载
Argentina La Pampa villa
位置:阿根廷 圣大非省
分类:别墅建筑
内容:实景照片
图片来源:Gustavo Frittegotto
建筑设计:Hernan Gastelu
图片:20张
这栋别墅坐落在阿根廷的Pampa,Pampa是一个非常平坦的区域,在Pampa所在的城市中,多样化的建筑物打断了城市中原本棋盘般的顺序性和一致性。这栋别墅是加利福尼亚风格的房屋,别墅上有斜尖的屋顶,屋顶搁置在公用的界墙上,这栋别墅校准了预制房屋的形式和展开。设计建造别墅的三个理念是:a、在设计建造时利用原始房屋的一部分。b、保持原始建筑物的布局和流通。c、使屋顶倾斜。
这个建筑项目保留了原始别墅的结构,用其他的墙壁置换了脆弱的墙壁,这是为了支撑起别墅的二楼,别墅的二楼在斜尖屋顶下延伸,从而创造了一个生活空间,并整合进了别墅之中,可以灵活的使用。这样设计的结果是一个原型房屋的形式。别墅是一个垂直的矩形,但是别墅的上半部分被切成了两个倾斜的平面,从而使建筑体量的形状出现了一种对比。别墅的周围布满了较低的住宅。别墅的二楼就像山峰一样,因为别墅的高度和几何结构,它与环境形成了强烈的对比。
译者:蝈蝈
The project is located in the Argentina Pampa, a flat territory, in a city where the checkerboard order and uniformity that was planned is disrupted by the diversity of the buildings.The house addresses the reform and expansion of a prefabricated home, Californian style, with pitched roof, and between party walls. The three ideas were:a_ To take advantage of part of the existing house;b_ To keep the layout and circulation (functional criteria)
;c_ Slanted roof (formal criteria).
The project arises from preserving the footprint of the house, replacing the weak walls by other capable of supporting a second floor that arises from stretching up the pitched roof, creating a living space, with flexible uses and integrated to the house.The formal result of this operation is the archetypal house. An abstract volume shaped as a vertical rectangle whose upper half is cut into two slanted planes. The house is built in an environment of low houses. The second floor causes a peak in the urban facade and due to its height and geometry it contrasts with the context.
阿根廷拉潘帕别墅外部实景图
阿根廷拉潘帕别墅内部实景图
阿根廷拉潘帕别墅内部局部实景图
阿根廷拉潘帕别墅内部浴室实景图
阿根廷拉潘帕别墅内部过道实景图
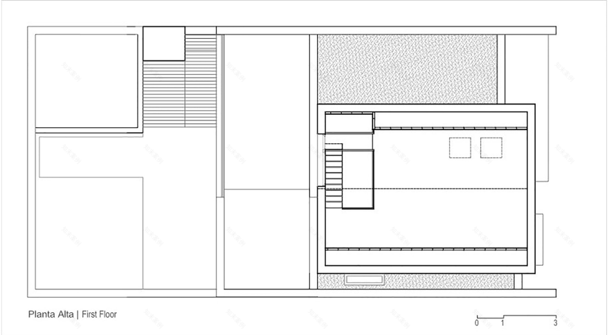
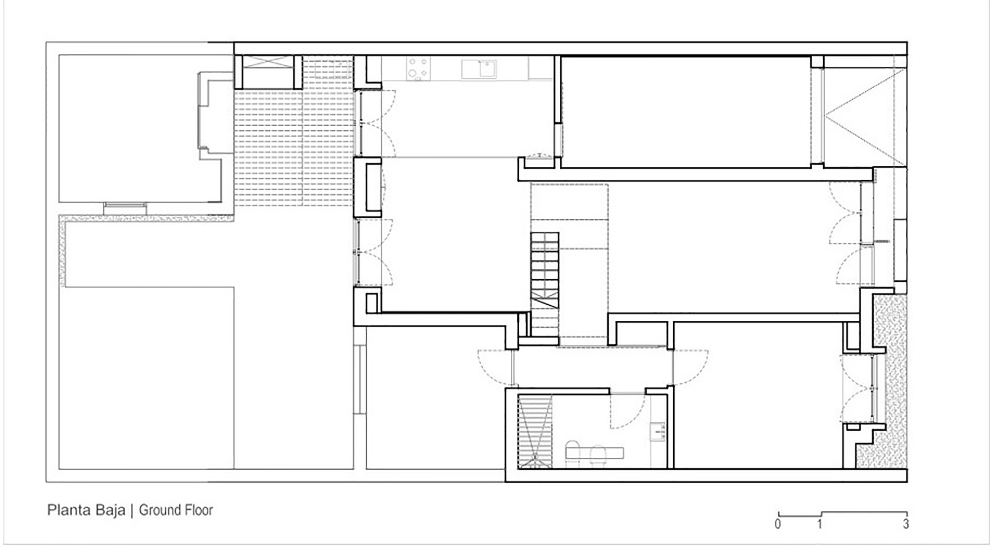
阿根廷拉潘帕别墅平面图
阿根廷拉潘帕别墅剖面图
阿根廷拉潘帕别墅立面图
阿根廷拉潘帕别墅分析图
客服
消息
收藏
下载
最近






















