查看完整案例


收藏

下载
项目位于一座名为Tobler的小村庄的南部,坐落在Buechberg山的北坡上。原本的农舍建于十八世纪,部分依据传统的木屋样式建造,使其极具保护价值。与村庄中的大部分住宅一样,最早的建筑还附有一间谷仓和外屋。如今,谷仓已经不复存在,但它曾经所处的体块成为了扩建住宅生活区的原型。外屋被拆除,取代以第二个居住单元,采用传统设计语言,与建筑的其他部分无缝衔接。
Located on the southern edge of the hamlet Tobler, on the northern slope of the Buechberg, the former farmhouse dates back to the 18th century and was partly built in the traditional style of a log house, making it especially valuable to preserve. Like most houses in the hamlet, it also originally boasted an attached barn and outbuilding. The barn no longer exists, but the volume it occupied served as a model for extending the house’s living area. The outbuilding was demolished and replaced with a second residential unit that takes up the vocabulary of traditional design and seamlessly connects with the rest of the building.
▼改造后就建筑外观,renovated House with new annex replacements ©Ruedi Walt
原本的农舍建造在砂岩基础上,采用木制结构,侧翼为一间建于1960年代的马厩和谷仓。主体建筑木结构保存状态良好,但是曾被用作储藏间的马厩已经年久失修,必须被拆除。同样,建筑西侧外墙由企口板制成,已经被湿气和蛀虫严重损毁,且部分墙体由于不正确的受力而摇摇欲坠,无法被保留下来。
The original farmhouse was a wooden construction on a sandstone base, flanked by a stable and barn up into the 1960s. The log construction was in good condition, but the stable, which had served as a storage shed, was in disrepair and had to be demolished. Likewise the building’s western exterior wall, made up of matchboard, couldn’t be preserved because it had been badly damaged by woodworm and dampness combined with an incorrect load transfer threatened to collapse a part of it.
▼历史中的农舍,farmhouse in the history ©Historical photo
“这栋Buechberg山坡上的住宅已有300年历史。过去所有屋主和住户都在其上留下了自己的印记。为此,我们和业主、当地专家和其他规划师一起,抱着极大的好奇心和探索欲,投入到了房屋及其不同分层的研究之中。我们的目标是尽可能保留和展示原有建筑的材质,同时将这栋老旧的农舍转变成两个新的居住单元,满足当下的生活需要,让人们可以在室内一览Constance湖的壮丽风光。”——kit建筑师Andreas Schelling
«The house on Buechberg in Thal lives from its 300-year history. All the owners and residents have left their mark on the building. And so it was with great curiosity and a spirit of discovery that we – together with the owner, local authorities and other planners – dedicated ourselves to this fascinating house and its different layers. Our goal was to preserve and show as much of the original substance as possible while transforming the old farmhouse into two new residential units that meet today’s needs and bringing the majestic view of Lake Constance indoors.»——Andreas Schelling, kit | architects
与主体建筑相接的谷仓成为了扩建生活区域的原型,设计利用谷仓高耸的天花,在原始木屋的卧室和新结构之间创造了一个宽敞的衔接空间。朝北的墙面上设置了两个巨大的开窗,可以看到Constance湖景。
The attached barn served as a model to extend the building’s living area, creating a spatial interplay between the bedrooms located within the original log house construction and the new area that takes advantage of barnlike high ceilings. Two large openings to the north open out onto the vista toward Lake Constance.
▼高耸的谷仓空间,barn space with heigh ceiling ©Ruedi Walt
▼朝北的巨大开窗,large window towards the north ©Ruedi Walt
谷仓中部保持了原本的功能,包括一层的楼梯间和带浴室的玄关,以及二层的走廊、更衣间和新建的浴室。建筑的这一部分也得到了改造修缮。一层天花由于承重能力不足且部分出现下凹趋势,被以实木材料制作的新天花取代。
The middle area has kept its functionality: housing the staircase, the entryway with a bathroom on the first floor, and a hallway, a dressing room and a newly added bathroom on the second floor. This part of the building was also renovated and the first-floor ceiling replaced with one made of solid wood because its load-bearing capacity was insufficient and sections of it showed signs of sagging.
▼中部的楼梯间,staircase in the middle ©Ruedi Walt
▼二层廊道,hallway on the second floor ©Ruedi Walt
第二个居住单元为全新构建,彻底取代了原本的棚屋,仅保留了最早的坡屋顶。北立面的房檐被抬高了约一米,优化了房间的层高和采光,并且可以更好地欣赏Constance湖景。施工过程中,曾经的毛石基础被喷砂混凝土墙壁取代,不同高度上的材料变化则得到了保留。
The second residential unit, a new construction, has completely replaced the shed, but its original slope has been kept. However, the eaves of the north façade were raised by around 1 meter to optimize room height, lighting and the view of Lake Constance. During construction, a sand-blasted concrete wall was used to replace the previous quarry stone foundation, while the characteristic changes in level remain.
▼通向新建筑入口的小路 path towards the entrance of the new structure ©Ruedi Walt
新结构的一层包含两间卧室和一间浴室,上层为开放布局的起居室、餐厅和厨房。原本的木屋墙面保持不变,呈现在新棚屋的一侧。
The ground floor contains two bedrooms and a bathroom, the upper floor an open-plan kitchen, living room and dining room. The original log house wall remains unchanged and on display on one side of the shed.
▼坡屋顶和保留的墙面,sloped roof and restored wall ©Ruedi Walt
▼朝向北侧的巨大开窗,large window towards the north ©Ruedi Walt
新立面由垂直木条板组成,形式与村庄中传统的谷仓和马厩一致。考虑到遮阳和私密性的需求,窗外覆盖了特制的滑动木挡板,唤起人们对于过去农舍的记忆。为了适应居住空间的开发,凹进和凸出将立面分成了几个大的块面。原始建筑的立面被保留,仅在原本开窗的位置安装了一扇新的入户门。
The new façade was constructed with vertical strip cladding in the style of the traditional barns and stables in the hamlet. For shade and privacy, the windows can be covered with special wooden sliding shutters that evoke the original appearance of the farmhouse. Consistent with the settlement development, projections and recesses divide the façade into a small number of larger panels. The façade of the original building has been left unchanged, except for the installation of the entrance door where a window used to be.
▼改造后的建筑立面,由垂直木条板组成 facade after renovation with vertical strip cladding ©Ruedi Walt
▼窗外覆盖木挡板,window covered by wooden shutters ©Ruedi Walt
设计师在改造中与负责历史建筑保护的专家紧密合作,施工则由当地工匠完成。
The renovation took place in close consultation with the authorities governing the preservation of historic buildings and was carried out by local craftsmen
▼改造后的原始木屋,original wooden house after renovation ©Ruedi Walt
“……在改造东立面的毛石基础时,由于地形限制,立面被大幅抬高,充分考虑了材料和传统工艺原本的品质。修复专家Matthias Mutter和Bad Ragaz首先检测了底土,抹灰和砂浆的状态,以及立面周围及其后部房屋的物理结构情况。之后,他们根据调查结果,开发了一种由石灰膏、天然水硬石灰和一种颗粒适中的特殊砂子组成的抹灰。由于墙面已经受潮,将来也会继续受到湿气影响,因此第一层约一米高的抹灰总是被当作牺牲抹灰。经过岁月洗礼,其表面往往会剥落、外观欠佳。这是采用纯石灰抹灰的历史建筑中都会发生的自然现象。然而,多亏这层透气的抹灰,沿石材缝隙上升的水分被限制在了很小的一片区域中。如果毛石基础外覆盖的是水泥抹灰,受潮的情况会更加严重。如今,这一过程是罕见,需要花一段时间去适应,因为对于现代人来说,视觉上的美观不允许凹凸不平的表面出现。然而在过去,这是一个常见的现象,而这些不同质的抹灰表面也被视为一种美丽的特性。
建筑承包人成功地在现代生活的舒适性需求和历史材质的保护之间找到了平衡。建筑师运用简单的形式和材料手段,实现了在原有结构上的继续建造……”
——州遗址管理年报拔萃
«…While renovating the stone quarry base of the eastern façade, which, due to the topography, is substantially raised, the original quality of the material and the traditional craftsmanship were flawlessly taken into account. The restorer (Matthias Mutter, Bad Ragaz) first examined the subsoil, the condition of the plaster and mortar, and the structural-physical situation of the immediate surroundings and the rooms behind the façade. Based on these investigations, a plaster formulation was developed consisting of lime putty, natural hydraulic lime and a special sand with the ‘correct’ grain size. Because the walls were (and always will be) damp, the first layer of plaster – up to about a height of 1 meter – was applied as a sacrificial plaster. This plaster will likely set less well and decompose over the years. This is a natural process found in historical buildings with pure lime plaster. However, thanks to the breathable plaster layer, capillary ascending moisture in the masonry can be limited to a small area. Had the quarry stone wall been covered with a cement plaster, the dampness would have increased. Today, the procedure is unusual and needs some getting used to since our visual perception of a «beautiful» façade doesn’t allow for uneven surfaces. But in the past, this very procedure was «normal» and accounts for the characteristic beauty of these not entirely homogeneous plaster surfaces.
The building contractor has succeeded in finding a balance between the need for modern living comforts and the preservation of a historical substance. The architects have made it possible to continue building on the existing structure with simple, stylistic and material means…»
——Extract from the annual report of the cantonal heritage management
▼总平面图,site plan ©Kit
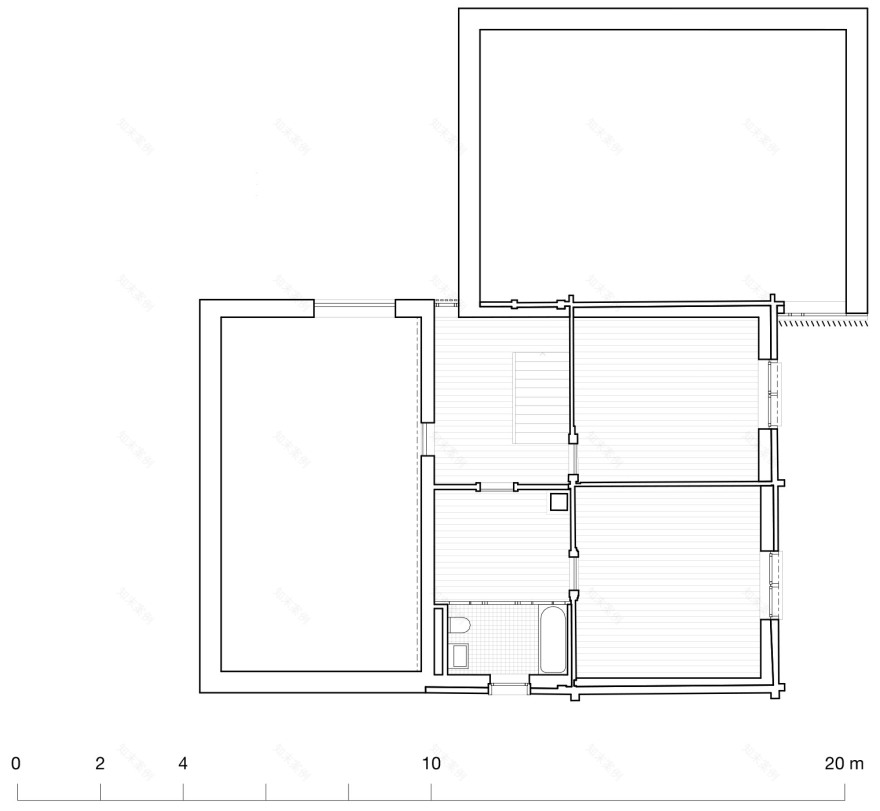
▼ 一层平面图,first floor plan ©Kit
▼二层平面图,second floor plan ©Kit
▼三层平面图,third floor plan ©Kit
▼立面图,elevations ©Kit
▼剖面图,sections ©Kit
Year: 2020 Location: Lake Constance Region, Switzerland SIA 416 standards: Building volume 1’527 m3 | Floor space 492 m2
Client: Private Architect: kit, CH-8048 Zürich Author: Roman Loretan, Andreas Schelling, Gianet Traxler Project manager: Simone Renfer
Construction management: Trunz + Wirth, CH-9230 Uzwil Landscaping: PR Landschaftsarchitektur, CH-9320 Arbon Timber frame und structural engineer: Josef Kolb AG, CH-8590 Romanshorn Building engineer: Brühwiler AG, CH-9500 Wil HVAC engineer: Comoltech, CH-9443 Widnau Electrical engineer: Beratende Ingenieure Scherler AG, CH-8440 Winterthur Energy performance: IET Ingenieurbüro für Energietechnik, CH-9401 Rorschach Photography: © Ruedi Walti (ruediwalti@bluewin.ch)
客服
消息
收藏
下载
最近


























