查看完整案例

收藏

下载
Panzhihua east's procuratorate
位置:四川 攀枝花
分类:办公建筑
内容:实景照片
项目规模:6400平方米
图片:9张
攀枝花东区检察院所在城市位于南亚热带干热气候地区,日照强,气候干燥,降雨量相对较小。夏季无酷暑,但太阳辐射强,气候干燥;冬季无严寒,温度舒适,阳光多。强调基于气候条件下的被动式生态节能设计,在建筑朝向、外围护结构、空间设计几个方面对当地气候做出建筑上的回应。
具体措施为:建筑结合
城市道路
采取南偏西22 度布置,这一方向的偏转使阳光强烈的夏季,建筑西墙尽量少受西晒的影响,而冬日上午引入更多的阳光于室内;各朝向采取不同的遮阳板以达到夏季遮阳,冬季引入阳光的效果;于主导风向上侧在建筑半室外空间设置水池,引入穿堂风,通过水分蒸发得以降温,并提高空气湿度。以上措施确保了建筑在一年四季中尽可能少使用空调并且保证室内的舒适度。
攀枝花东区检察院外观图
攀枝花东区检察院效果图
攀枝花东区检察院图解
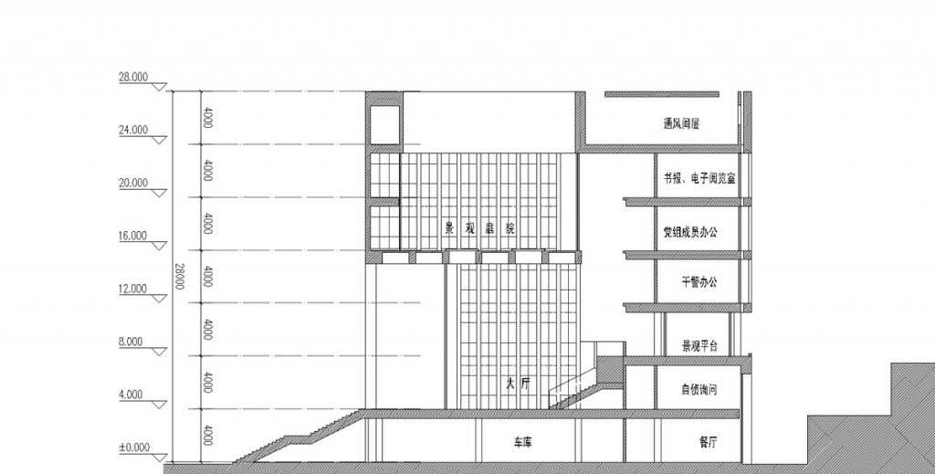
攀枝花东区检察院截面图
攀枝花东区检察院平面图
客服
消息
收藏
下载
最近











