查看完整案例


收藏

下载
设计团队:王晨凯(主笔)
项目性质:普通家装住宅
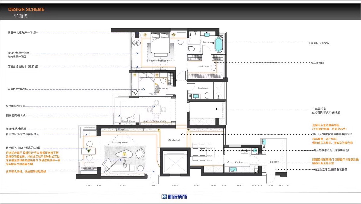
建筑面积:145平米
设计好坏取决是满足居住者的事生活方式及品味!
1、此项目设计中,居住者其中特别要求,收纳,收纳,还是收纳,需要更多的收纳空间,于是在项目设计中,既要考虑美学还需注重收纳空间,所以在客厅及入门玄关部分3面墙全部设计成隐藏式收纳空间,不破坏空间美学!分别为:(电视墙、沙发背景墙、入户玄关墙)
2、还有一个特别之处,客厅与餐厅之间有一个建筑结构上的问题就是电梯井与电视墙都为承重墙,不能改变,然后形成一条过道。而我们需要做的是改变传统意义上过道定义,于是在设计上我们做了二级垫层抬高,增加仪式感,在材质方面我们也有考虑,第一级为石材与整个地面统一,二级为原木材质,更有质地且温性。有此区域后,主人公为90后时尚女性,可在此区域做瑜伽,或是随性光着脚坐在此处一品小酒、看书、听音乐,多么惬意!整个空间中的家私选择都便休闲时尚风格,客厅与阳台链接,将前阳台纳入室内更是扩大客厅空间,增加独立:钢琴区,观景休闲区等。卧室设计采用时尚简约硬包床头背景设计,且将3个面硬包背景链接成一个整体,另靠窗面硬包直接与壁龛陈列柜定制为一个完整面,下落式背景造型不上顶,更像是采购的屏风背景放置此处,利用反向灯光映射天花,增加卧室氛围!
客服
消息
收藏
下载
最近











