查看完整案例


收藏

下载
项目名称 | 红莲湖度假别墅
Project name | hong lian hu bie shu
项目面积|
558m2+280m2花园Area|㎡
about 558m2+280m2
花园
项目风格|| 现代轻奢
Project style Entry lux
设计团队|| 武汉品承空间设计有限公司
Designteam | Wuhan pincheng space design co. LTD
设计主材 | 石材、木饰面、岩板、硬包、不锈钢
DESIGN NOTES
设计最初思考的就是空间与外界环境的关系,以怎样的形式展开对话。看山望海,被大自然所感染,绝佳的视野至关重要。
大面积的通体落地窗,以最大限度对室外湖景进行场景化定格,将风光引入室内,以开放式的设计,融入大自然的光线与景色,借助外界来营造室内气氛,以呈现出阔达的境界,搭配前沿的意大利家具,更能体现意大利家居生活美学。纵目远观,独属于湖边度假的惬意感受得以铺陈抒发。
站在家里,湖是美景
站在湖边,家是永远看不倦的风景
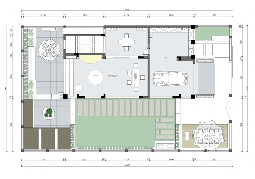
Layout chart | 一楼平面布置图
Layout chart | 二楼平面布置图
Layout chart | 三楼平面布置图
Layout chart | 地下室庭院平面布置图
实景图展示
Living& Dining Room | 客餐厅
在客餐厅功能不变的前提下,空间各个功能区块被合理巧妙地安排,流畅的动线,布局开阔又有紧密关联,每一个单品、每一种材质都有自己独特的语言,他们的质感相互碰撞、互相交融,围合出客厅强烈的艺术氛围,丰富的细节也将空间的品质感表达地淋漓尽致。透过开放布局手法、材质及色彩的精巧拿捏,缔造精緻、纾压兼容的居家氛围,将阻碍视线的边界打通之后,整个客厅显得大气磅礴。窗外的湖景尽收眼底,布局的简约之中,又透露着非凡品质。
家,需要人间烟火,柴米油盐酱醋茶;也需要人间风月,茶酒香花诗书画。一个物质,一个精神,两者之间的跨域,便是设计的度。多余而繁盛的设计往往会掩盖生活本身的需求。居住空间充满了人性与情感,在设计之初,就应该以居住者作为出发点,让空间去理解人。空间就像无生命的面体,从空间到“家的灵魂”在于人对生活的感情表现。
洁净的石材搭配木饰面,明快温暖现代轻奢的感官下保留着一丝自然的味道。本真的初始状态,把自然的美好用另一种方式装进触手可及的空间,给生命以「氧气」和「呼吸」。让整个空间充满阳光的气息,营造放松、高雅的韵味。
Master bedroom | 主卧
主卧背景墙亮光的质感、硬包的肌理触感与金属材质的穿插延伸了我们感官的界限亦能慵懒的享受空间的柔和观感。
阳光撒入室内,极致静谧中赋予空间高雅的体验,缓缓叙述着每一寸空间的故事。推门便可随时享受自然的湖景带来的美好居住感受,呈现出安谧且纯粹的氛围,身处其中,感受生活最美好的样子。
Study room | 书房
光、风景透过柔和的纱帘进入书房,营造出悠扬的艺术氛围。将光影的效果结合线条感展现得更加迷人。坐在窗边享受着外面的自然景色,感受温暖的阳光透过纱窗映在脸颊。就这样一个人、一本书就能度过美好的一天。向着光与风思考,每一处都是可以停留和驻足的地方。
Parents’ room
| 父母房
现代精致中不失摩登典雅的第一印象,如同窗外拂面的微风,清新宜人。柔和的灰色与高级蓝的布艺、地毯等搭配运用,有柔,有刚,打造一个富有韵味又现代精致舒适感的家。整体不同程度的色系相间,发生层次。而通过巧妙地运用物料的“质”,让空间呈现简洁却丰富的气质。
Bed room |
女儿房
童房以高饱和度的色彩盛载着女孩们糖果般的梦,憨萌的毛绒玩具、童趣写意的家具,美好温软,营造温暖梦幻的童话氛围。呵护着孩童的天真幻想,带给她们无忧无虑的童年如花笑靥。
High-saturation color is carrying the dream of girls like candy, silly plush toys children’s fun freehand furniture, beautiful and soft, aesthetic taste from childhood to grasp the care of children’s naive fantasy, bring them carefree childhood such as flowers smile.
ABOUT US
品承空间设计有限公司
武汉品承空间设计有限公司是一家专业从事住宅平层、洋房别墅、高级会所、房产样板间的室内设计、装饰施工以及整体配饰陈设为一体的设计公司。将“品质是我们的承诺”作为设计理念,以专业的设计水平,独特的个人品味,诚恳的工作态度服务于追求高品质生活空间的客户群体。团队提供室内硬装设计、软装家具饰品整体设计等服务。选择品承,将艺术融入到生活,体验不一样的私宅定制。
M: 18908640106
武汉市洪山区三金雄楚天地 1-1413
(地铁 2 号线杨家湾站 B 出口)
客服
消息
收藏
下载
最近














