查看完整案例


收藏

下载
项目名称:河南南召青枫苑销售中心项目
项目地址:中国河南南召
甲方单位:源达集团
甲方团队:吴鹏、李刚
软装单位:LANSON 蓝森设计
软装团队:莫敏仪、谭群幸、张燕华
硬装单位:筑宸空间
设计面积:1200㎡
摄影团队:贺东
河南南召,山水皆美,倚靠秀丽风光,宜人的气候和淳朴的民风,成为心之所向往的地方。
“丹霞夹明月。华星出云间”, 着金红、石绿、星光......恒古的风彩,心游云渺涧,悠然吟然,不知其然而然。
净 水 云 端 · 清 净 本 然
探源自然与人文,追逐灵魂之源泉
深入东方含蓄,优雅的设计语言
呈现自然、雅致的空间氛围
使环境、心灵融于自然
01
夕 照 松 风
前 台 区
P 01
石绿气象
沙盘区
P 02
P 03
沙盘顶端的艺术灯饰是对南召本地文化的探寻,丰富多样的奇珍矿石,清风晓月,山涧云溪的自然风光。从矿物中提取“石绿”,作为灯饰的主色调,曲径的山形,为贯穿的脉络,随山势气象变迁。深浅绿作横竖点,层林渐染,其质如水晶,大珠小珠光明洞彻,清心之境,以言乐志。03 山涧云峰洽谈区。
P 04
空间对称布局,具有层次感
陈设,如在山云间的铺陈
云峰图饰纱帘,层层叠叠
应照着水纹地毯
华滋之气,莹洁身心
P 05
净水云端,山林之志
从矿石“星光宝石”中提取星光蓝
代表着雨过天晴后蔚蓝的天空
于是,零星的星光蓝布艺沙发
落于水波纹地毯
悠然而生“云水星光”之境
P 06
沙发结合了现代审美,以纤细的柱脚,带来轻盈感。如云行空,余韵无穷。原木色基调的桌椅,古朴自然。以极简的线条彰显空间“润物”的张力。意入飞云。前有乔松,一抹绿意。枝叶曲婉的伸展。如书法笔触,洒逸的节奏。最具东方写意的艺术美感。04。溪岩鸟飞。水吧区。
P 07
P 08
“一行白鹭上青天”的飞鸟灯饰象征着流动与自由
地毯的水纹制式,如湖面荡起的涟漪层层晕开,营造空间自然之景
水面空阔,飞鸟展翅盘旋于曲水墨石,抑或自然理石
目光不自觉随飞鸟走入树丛、岩石、山泉姿态万千,生机盎然
05 月影映泉书吧区
P 09
秩序是和谐的创造唤醒心中深刻的共鸣使我们感受到美山脊雕塑长凳由“山形与山势”演变而来木的古朴材质,疏朗流畅
P 10P 11
同时展现“书页”的秩序感化作长凳幽坐使艺术装置的欣赏性与长凳的实用性合而为一呼应着书吧空间的儒美氛围
P 12P 13
视线延着山脊雕塑长凳依次望去,舒适的座椅与书架的器物高低有序,富于韵律变化,使人目不暇接。行至尽头,水墨拼色装饰画以矿石色彩的张力传达云雾山气之豁然,满是月明抒怀。从南召特有“金红石”中提取的红恒古不褪,星光宝蓝座椅整齐排列,如月照石岩,泉水点茶,带客入幽旷,不变的天真意趣。06 玉露浮山 VIP 区。
P 14
浮雕质感的山形屏风
恰到好处的释意自然
赋予空间层次感和美
P 15
P 16
置于大理石桌面的精巧摆件雕塑、器皿等饰物展现着现代工艺与审美由器物细腻、如玉般温润的质感又回应着留白的诗意与皎洁的月光 07 至境虚空休闲区
P 17
黑白两色圆形挂画仿佛从高逸山水画中抽象出了不变的理型。一桌一椅,绽放金属光泽,是文人心游至空灵妙境。以圆造境,应对四时变化,借自然叙述久坐而得趣。友叙畅谈,至境虚空,默以心会,喝茶聊天,畅言神往。08 飞虹乐园儿童区。
P 18
P 19
与其他空间形成差异
色彩鲜亮的儿童区
述说着童话般的浪漫生活
充满阳光与活力
玩偶造型的椅凳、轻巧可爱的摆设
与白云朵朵灯饰,使氛围更为轻松
在天然乐趣中
带来欢快的梦幻时光
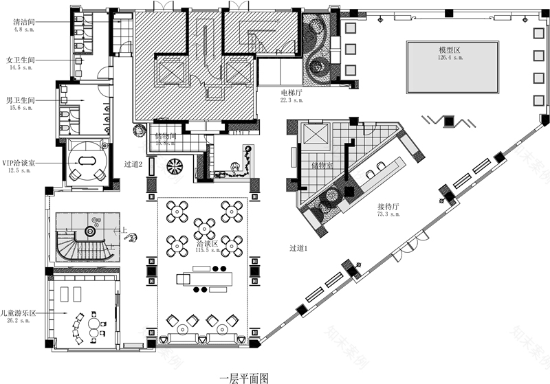
| 项目平面图 |
愿·安好
設計源於生活
生活融入設計
付出·點滴
PAY·BIT
LANSON | 藍森
倾心为您|JUST FOR YOU
广州蓝森装饰设计有限公司
地址:广州市荔湾区鹤洞路荣芳街 38 号荣芳阁 2 层
客服
消息
收藏
下载
最近
























