查看完整案例


收藏

下载
雁荡山,以山水奇秀闻名,素有“海上名山,寰中绝胜”之誉,史称“东南第一山”,大荆镇是雁荡山的东大门。乐清市荆山公学创办人怀揣对家乡的眷念,回归故里,与昔年好友一同在山水秀丽的雁荡山麓大荆镇办学,期望为家乡的学子创造更优质的教育环境。
设计师在受邀调研期间,与创办人多次交流办学理念、家乡的地域文化,创办人聊起他儿时读书的小学校园里的那棵老香樟树,茂盛如盖,师生围坐树下谈天论地。这让设计师瞬间联想到路易斯·康关于“学校开始于一棵树下”的著名理论,于是,一个低密度、自然生态的乌托邦式校园构想就此诞生。
Yandang Mountain is famous for its beautiful landscape. It is known as the ” famous mountain on the sea, the best in the world”, and is historically known as “the first mountain in the southeast”. Dajing Town is the east gate of Yandang Mountain. The founder of Jing Shan School in Yueqing City returned to his hometown with a longing for his hometown and ran the school in Dajing Town at the foot of the beautiful Yandang Mountain with his friends, hoping to create a better educational environment for the students.
During the research, the designer had many conversations with the founder about the philosophy of the school and the local culture of his hometown. The founder talked about the old camphor tree in the schoolyard where he studied as a child. This instantly reminded the designer of Louis Isadore Kahn ’s famous theory – ’a school begins under a tree’. Then the idea of a low-density, natural and ecological utopian campus was born.
▼夕照下的山水校园,The landscape campus in the sunset ©章鱼见筑
▼晨辉中的宁静校园,The quiet campus in Chenhuizhong©章鱼见筑
现代教育强调共享交流,而书院作为中国传统的学堂形式,以严谨有序的格局,强调空间的有序流动和转换,也形成了一系列的交流空间。乐清受浙东学派影响,宗学书院蔚然成风,如梅溪书院、宗晦书院等知名书院都曾在历史的长河中大放异彩,吸引着各方学子前来求学。
在荆山公学的校园空间规划中,设计希望保留浙东学派的历史文脉,转变城市校园的高密度、普适化理想,做一个融入大荆镇的低密度地域性学校,通过对岳麓书院等经典中式书院进行拓扑研究,将其空间布局的序列转译至设计之中。
Modern education emphasizes sharing and exchange. While the academy, as a traditional Chinese form of school, has its rigorous and orderly layout. It emphasizes on the orderly flow and transformation of space, and also creates a series of communication spaces. Influenced by the Zhejiang East School, Yueqing has seen the emergence of Zongxue school, such as Meixi school and Zong Hui school, which have shone in the long history, attracting students from everywhere. In the spatial planning of Jingshan School, we hope to preserve the historical heritage of the Zhejiang East School, change the characteristics of high density and universalization of urban campuses, and build a low-density regional school, translating the sequence of its spatial layout into the design through a topological study of classic Chinese school such as the Yuelu School.
▼主轴线庭院层层叠进,The main axis and courtyard are stacked in layers©章鱼见筑
荆山公学以南北为主要空间轴,形成以四进院落为核心秩序的空间布局。以大气端庄的主校门为始,与二门隔园相望,学习中心、艺术中心分列轴线两侧,空间秩序感强烈,通过风雨连廊围合,形成一个校园“泛综合体”。第二进分列小学部教学楼与名师工作室,一是生态园林贴合小学生乐于探索的特征,二是于曲水之上营造名师工作室,形成动静对比。第三进由相对理性的初中部和高中部教学楼与食堂、校史陈列馆围合而成,形成高效率的学习生活环境。第四进以相对自由的方式布置宿舍楼,为学生提供静谧的休息环境。复廊勾连,院落叠进,如一副徐徐展开的园林长卷,礼仪秩序与创造活力在这里和谐共生。
The main spatial axis of Jingshan School is from north to south, forming a spatial layout with four courtyards. Starting from the grand and dignified main school gate, facing the two gates across the garden, the learning center and the art center are arranged on both sides of the axis connecting by corridor. The second courtyard is enclosed by the teaching building of the elementary school and the teacher’s studio. The third courtyard consists of the teaching buildings of the junior and senior departments, the canteen and the school history exhibition hall, forming a highly efficient learning and living environment. The fourth part is arranged in a relatively flexible way to provide a quiet resting environment for students. The courtyards are linked and stacked like a long scroll of gardens, where order and creativity coexist in harmony.
▼二校门回望主校门,Looking back at the main gate of the second school gate©章鱼见筑
▼曲水环绕的名师工作室,Famous teacher studio surrounded by water©章鱼见筑
▼第三进庭院二层平台远眺教工宿舍楼,The second floor of the third entrance courtyard overlooks the staff dormitory©章鱼见筑
▼点式宿舍楼因势转折引景入校,Dot dormitory building turns into the school due to the situation©章鱼见筑
山麓下的基地有着自然蓬勃的诗意,同时带来了复杂的边界问题,校园被排洪河道、城市道路及分期地块开发等多种因素所割裂。在多次的实地调研过程中,设计师想到把河对岸的地块作为校园的“别院”——就如同传统书院中常见的自然式园林,跨过一道桥的物理空间,也就形成了心理上的一种转换。这道桥可以像当地传统的廊桥一样承载多样的使用空间,成为多点拟合的曲线游憩空间。
The base at the foot of the hill has a natural and flourishing poetry, but at the same time presents complex boundary issues. The campus is cut off by a variety of factors including the flooding river, urban roads. After several field studies, the designer came up with the idea of using the land on the other side of the river as a ‘garden’ for the campus – like the naturalistic gardens commonly found in traditional academies. The physical space across a bridge creates a psychological transition. This bridge can carry a variety of use spaces like a local traditional gallery bridge, and become a multi-point fitting curved recreation space.
▼跨河平台衔接校园东西两地,The cross-river platform connects the east and west of the campus©章鱼见筑
跨河平台将两岸合为整体,在使用感受上达成完整的序列空间感,同时可发挥借景的优势,将城市水系纳入到校园景观体系之中。通过恰当的设计,跨河平台创造出优美的步行体验系统,漫步其上,犹如在一个完整校园中行走,消除了学生“学习++生活”两点一线的乏味感受。
经多方努力,跨河平台的构想终于落成,整合了校园东西两岸的地块。校园山水相傍,设计依据景观资源引入多条景观轴线,取景、引景入园,使主校园两个地块被优美的山水整合起来。
The cross-river platform merges the two banks into a whole, creating a complete sequence of space, while taking advantage of the borrowed landscape to incorporate the urban water system into the campus landscape system. Through appropriate design, the river crossing platform creates a beautiful pedestrian experience system, where walking on it is like walking through a complete campus, eliminating the tedious feeling of “study + life” for students.
After much effort, the idea of a river-crossing platform was finally completed. The design introduces several landscape axes based on landscape resources, taking views into the campus so that the two plots of the main campus are integrated by the beautiful landscape.▼跨河平台与校内外环境浑然一体,The cross-river platform is integrated with the internal and external environment of the school©章鱼见筑
根,是一种记忆,是一种存在,是一种历史。
小城镇的肌理与城市不同,设计结合当地民居的建筑形式和材料,在校园中部植入两组 1、2 层高的小建筑,来呼应地块周边民居的肌理和体量。为避免学校成为突兀存在的庞然大物,简化的双坡屋顶与远处的层峦叠翠形成相互映衬的天际线,使得校园场景契合地嵌入山水之中。各教学楼、综合楼交织穿插,空间场景灵活转变,远近高低,收放自如,宛若一幅浓淡相宜的水墨山水画。这既是对场地的尊重,也是一种对记忆的延续。
▼西侧核心区校园爆炸图© 浙江大学建筑设计研究院有限公司 Exploded view of the campus in the west core area
▼名师工作室结构逻辑图©浙江大学建筑设计研究院有限公司 Logic diagram of famous teacher studio structure
Roots, is a memory, a presence and a history. As the texture of a small town is different from that of a city, the design incorporates the architectural forms and materials of the local dwellings, with two small groups of 1 and 2-storey buildings in the middle of the campus to echo the texture and massing of the dwellings around the site. In order to avoid the school becoming an overwhelming presence, the simplified double-sloped roofs form a skyline that reflects the distant greenery, making the campus scene fittingly embedded in the landscape. The teaching buildings and comprehensive buildings are intertwined and interspersed, and the space scenes are flexibly changed, just like a landscape painting. This is both a respect for the site and a continuation of memory.
▼隔河对望东侧地块,The plot on the east side across the river©章鱼见筑
▼错落有致的校园与周边山水犹如一幅长画卷,The scattered campus and surrounding landscapes are like a long scroll©章鱼见筑
名师工作室小体量嵌入让空间富有活力,The small size of the famous teacher’s studio is embedded to make the space full of vitality©章鱼见筑
▼低矮的名师工作室与庭院宛若一组江南民居,The low master studio and courtyard are like a group of Jiangnan houses©章鱼见筑
名师工作室的屋顶轮廓与远处的雁荡山脉相呼应,The roof profile of the famous teacher’s studio echoes the Yandang Mountains in the distance©章鱼见筑
探索当地文脉的过程中,乐清南阁古村的牌楼群也引起了设计的重视。作为当地文化历史的荣耀与闪光点,牌楼群不仅代表了当地建筑的营造匠艺,更体现了其德义双辉的君子遗风和崇文尚德的民风。
转译了牌楼建筑语言的主校门以铜为主材料,通过简约的线条累叠表达牌楼层层斗拱的结构,雄浑庄穆,奠定了荆山公学“立心为本,知行合一“的形象。
In the process of exploring the local cultural heritage, the archway group of Nange Ancient Village in Yueqing has also attracted the attention of design. As the glory and shining point of local cultural history, the archway group not only represents the craftsmanship of local architecture, but also reflects the traditional folk customs. The main school gate is made of copper as the main material, and the structure of the layers of arches is expressed through the simple lines, which establishes the image of Jingshan School of “heart-based, unity of knowledge and action”.
▼校训石与主校门间的开放式校前广场,The open square in front of the school between the school motto stone and the main school gate©章鱼见筑
纵横搭接的仿铜檩条演绎现代斗拱的形态,The imitation copper purlins lapped vertically and horizontally interpret the shape of modern bucket©章鱼见筑 arches
教学楼等建筑则以合院的形式存在,采用文化气息浓厚的灰瓦装饰缓坡屋顶,质朴的清水墙面与温暖的木色外墙和镂空陶土砖组合,营造独特的地域性氛围,回应当地的场所记忆,使其成为当地文脉历久弥新的一种表达。
The teaching building adopts the gray tiles with strong cultural atmosphere to decorate the gently sloped roof. The rustic concrete wall is combined with the warm wooden exterior wall and hollow clay bricks to create a unique regional atmosphere, responding to the memory of the local place, and making it a time-honored expression of the local context.
▼檩条与镂空陶土砖相呼应图©章鱼见筑 Correspondence between purlin and hollow clay brick
利用坡顶形成的复式阁楼图书阅览室©章鱼见筑 The double attic book reading room formed by the slope top
关于路易斯·康对树是学校起源的阐述是设计师耳熟能详的一则空间理论了,在中国教育理论体系中亦有“十年树木,百年树人”的理念映照。
大树成为庭院的主角,在每个庭院用不同的形式讲述不同的故事。在作为主要礼仪入口的第一进庭院,行列的榉树营造纵深感强烈的入口空间,亦是“中举”的美好祝愿;二进庭院则通过多棵大树,营造蒙络摇缀,参差披拂的自然树林氛围,给予低年级学生自由探索的空间条件;位于序列压轴的第三进庭院,以一株参天大树统领全局,复刻了创办人记忆中的儿时庭院,即回应了往昔记忆,又为后人延续那一片树荫清凉。未来属于荆山公学学子的场所记忆,或许就是承载了欢声笑语的庭院与树荫下的清谈阔论。
Louis Isadore Kahn’s statement about the tree as the origin of the school is a familiar piece of spatial theory to designers, and is also reflected in the Chinese educational theory system in the concept of ‘ten years of trees, one hundred years of people’.
The big trees become the main characters of the courtyard, telling different stories in different forms in each courtyard. In the first courtyard, which is the main ceremonial entrance, the rows of beech trees create an entrance space with a strong sense of depth and a good wish for “winning the imperial examinations”; in the second courtyard, a number of large trees create a natural wooded atmosphere with a variety of trees, giving the younger students the space to explore freely; The third courtyard, located at the end of the sequence, is dominated by a large tree that respond to the memories of the past and provide a cool shade for future generations. The future memory of the place belonging to the students of Jingshan School may be the courtyard with the sound of laughter and the shade of the trees.▼树与校史馆作前景,教学楼与远山为背景,The tree and the school history museum as the foreground, the teaching building and the distant mountains as the background©章鱼见筑
▼凭栏赏第二进庭院,Lean on a railing to reward the second entry into the courtyard©章鱼见筑
▼二层平台远眺东侧学生宿舍楼,The second floor platform overlooks the student dormitory building on the east side©章鱼见筑
▼第三进庭院的主角——大树,The protagonist of the third courtyard-the big tree©章鱼见筑
▼初中部与食堂之间形成的街巷空间,The street space formed between the junior middle school and the cafeteria©章鱼见筑
▼小学部组团,Primary school team group©章鱼见筑
▼二层活动平台灰空间深受学生喜爱,The gray space on the second floor activity platform is very popular among students©章鱼见筑
▼教学组团底层庭院,The courtyard on the ground floor of the teaching group©章鱼见筑
乌托邦式的教育理想像是创办人手中的火种,楔在荆山公学这座山水校园之中。不同的行业形成不同的立场与奇思妙想,如同萤火汇聚,为这座新生的校园照亮了前路。因土地规划等现实因素,荆山公学的主校区西侧预留了大量的二期建设用地,恰好为学校持续渐进式的发展建设创造了可能,从规正的主序列中引导出水木清华自由探索的氛围。渐进式发展恰恰又暗合了早期书院因时变迁的发展模式,教育不会是一蹴而就的,而校园作为承载教育的物质空间,势必也会随着时间悄然发生改变。整体实施的校园固然有其优势,渐进式发展的校园却更能适应时光的雕琢。
The utopian ideals of education are wedged in the landscape campus of Jingshan School like a spark in the hands of its founder. Different Professions have formed different positions and whims, illuminating the way forward for this new campus like fireflies. Due to land planning and other practical factors, a large amount of land has been reserved for the second phase of construction on the western side of the main campus of Jingshan School, which has created the possibility for the school to continue its progressive development and construction. The gradual development is in line with the earlier development model of the academy, where education does not change overnight and the campus, as the physical space for education, is bound to change quietly over time. While a holistic campus has its advantages, a progressive campus is more adaptable to the time.
▼华灯初上的校园,The campus with light©章鱼见筑
这是一次酣畅淋漓的设计实践,更是一次惺惺相惜的设计体验,当投入设计中的情意被更好地感知、回应时,设计想要表达的空间与细节都以一种理想的状态实现。也正因这种理想的碰撞,情感的交织,创造的物理空间不再是冰冷的墙体,而是承载着温度的场所,它落于纸面时是空的,立于地面时又是满的,它已经记载了很多故事,也将开启后来人更多的精彩故事。
This is a best ever design experience. When the affection invested in the design is better perceived and responded to, the space and details that the design wants to express are realized in an ideal state. It is because of this collision of ideals and interweaving of emotions that the physical space created is no longer a cold wall, but a place that carries temperature, which is empty when it falls on paper and full when it stands on the ground. It has recorded various memories and will open up more wonderful stories for later generations.
▼总图,Master plan© 浙江大学建筑设计研究院有限公司
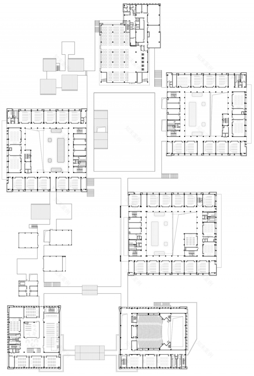
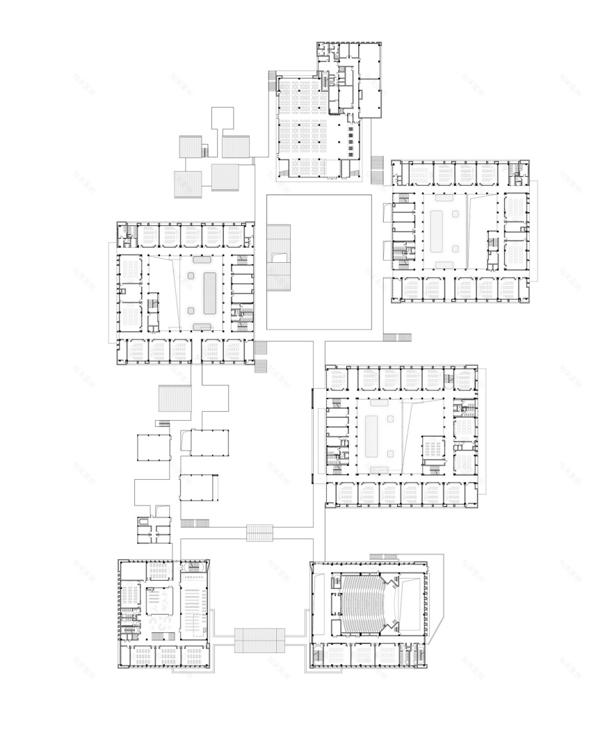
核心区校园一层平面,Capmus core area plan – level 1© 浙江大学建筑设计研究院有限公司
核心区校园二层平面,Capmus core area plan – level 2© 浙江大学建筑设计研究院有限公司
▼核心区校园立面,Capmus core area elevation© 浙江大学建筑设计研究院有限公司
核心区校园剖面,Capmus core area section© 浙江大学建筑设计研究院有限公司
项目名称:乐清市荆山公学
设计单位:浙江大学建筑设计研究院有限公司
设计时间:2018 年 01 月—2019 年 06 月;完成时间:2020 年 12 月
总建筑面积:100499 平方米
摄影版权:章鱼见筑
客户:乐清市荆山教育投资有限公司
材料品牌:面砖:爱克陶、多彩真石漆:三棵树、low-e 玻璃:南玻
设计团队
主创建筑师:范须壮
建筑设计团队:范须壮、陈瑜、施明化、林肯、徐荪、刘佳、徐高婷、裘嘉珺
室内方案设计:范须壮、施明化、林肯、刘佳、徐高婷
景观方案设计:范须壮、林肯、姚浩军
幕墙设计:杭飞
声学设计:张三明、周飞
照明设计:宋洛颖
室外综合管线设计:陈飞、陈激
智能化设计:杨国忠、林华、叶敏捷、袁晓男
标识设计:杭州美高品牌设计有限公司
施工图设计:浙江新宇建筑设计有限公司
施工单位:浙江金城建设集团有限公司
Project name: Jingshan Public School, Yueqing City
Design: The Architectural Design & Research Institute of Zhejiang University Co, Ltd (UAD)
Design year: 2018.Jan – 2019.Jun
Completion Year: 2020.Dec
Gross Built Area (square meters): 10499
Photo Credits: zystudio
Clients: Hangzhou Educational Asset Management Center
Brands / Products Used in the Project: inorganic facing mortar, clay bricks, terracotta tiles, copper plates
Design Team
Lead Architect: Fan Xuzhuang
Architectural design: Fan Xuzhuang, Chen Yu, Shi Minghua, Lincoln, Xu Sun, Liu Jia, Xu Gaoting, Qiu Jiajun
Interior design: Fan Xuzhuang, Shi Minghua, Lincoln, Liu Jia, Xu Gaoting
Landscape design: Fan Xuzhuang, Lincoln, Yao Haojun
Curtain wall design: Hang Fei
Acoustic design: Zhang Sanming, Zhou Fei
Lighting Design: Song Luoying
Outdoor integrated pipeline design: Chen Fei, Chen Ji
Intelligent design: Yang Guozhong, Lin Hua, Ye Minjian, Yuan Xiaonan
Logo Design: Hangzhou Meigao Brand Design Co., Ltd.
Construction drawing design: Zhejiang Xinyu Architectural Design Co., Ltd.
Construction unit: Zhejiang Jincheng Construction Group Co., Ltd.
▼项目更多图片
客服
消息
收藏
下载
最近










































