查看完整案例

收藏

下载
每个女人心中都怀揣着一个公主梦,希望自己便是影片中的主角。幻想着穿上一袭曼妙飘逸的公主裙,坐在南瓜车里等待英俊的王子骑着白马,手捧水晶鞋款款而来,从此过上幸福的生活。无论外面的世界多么的纷乱复杂,她始终保持那一份优雅。她,便是本期的女主人,一个浪漫精致的“小公举”。
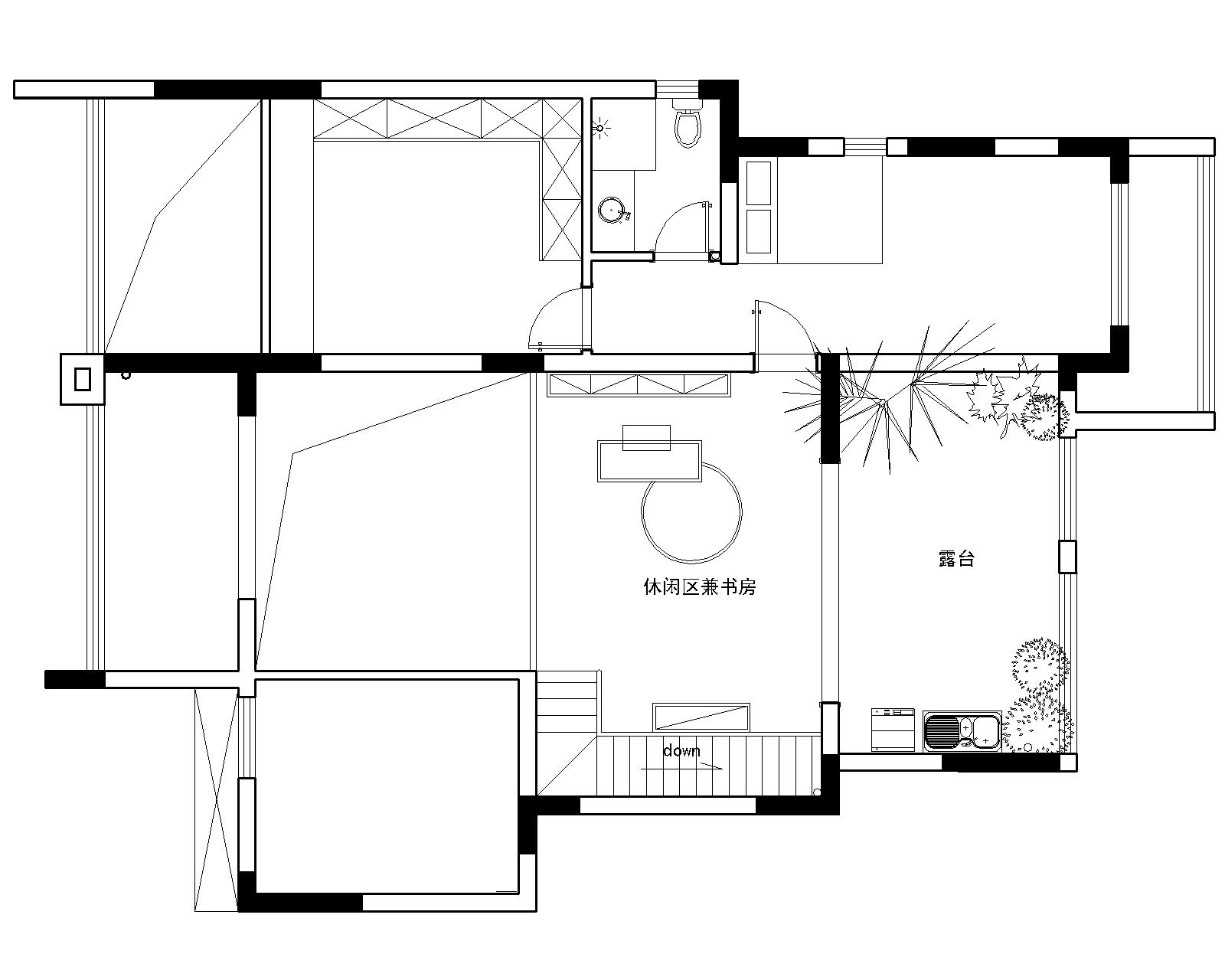
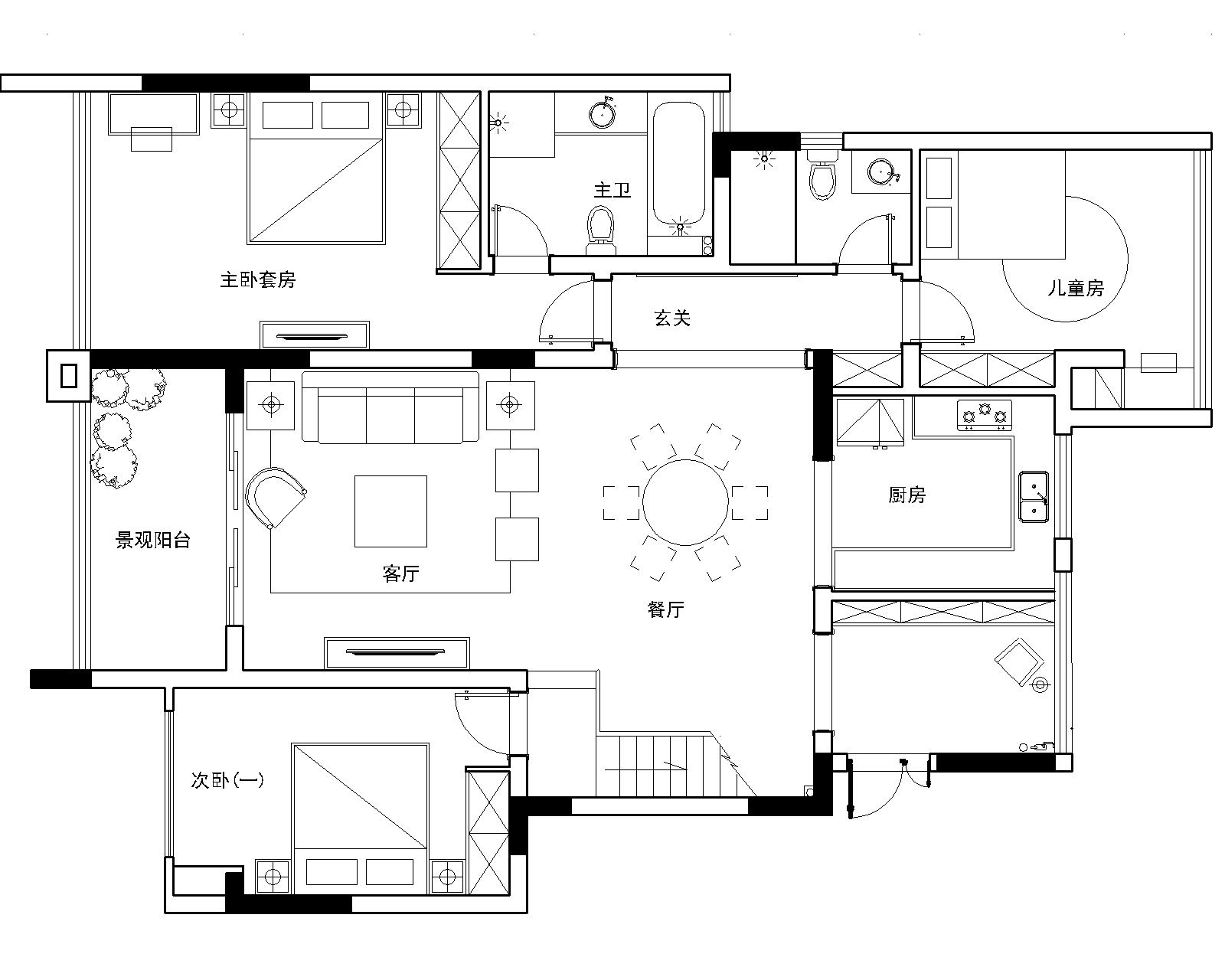
原始图&平面图
家里只有三个人,需要的居住空间不多,所以客厅保留了挑空,这样显得简单大气。原始楼梯的位置在现代餐厅的位置,动线上很堵,因此把楼梯的位置移到了厨房,厨房改到了院馆的位置,这样厨房、餐厅、客厅动线上好用很多。主卧的空间往外延展了 2 米,增加了室内的使用面积,也让整个空间看起来宽阔舒适。
色彩
以白色、水蓝为主色调。在视觉感知上,白色是最为柔和、舒适的色调,而水蓝,则同时兼具知性高雅与时尚的特征;二者结合,使空间在和谐统一的基础上更具视觉层次感。再加上樱花粉与木色的点缀,营造出充满梦幻与流动感的氛围。
客 厅
浪漫邂逅开场
如同故事的序章
在法式格调的低吟浅唱里
静诉美好时光
男女主人的故事
就在这方小小空间里诞生
客厅空间摒弃了
传统法式中
繁复冗杂的装饰造型
与甜腻的色泽
转而在通透方正的空间格局中
用经典轴线、对称布局的方式
结合淡雅的空间色调
蜡烛水晶吊灯
淡蓝色沙发
蓝色石膏雕花背景墙
密切配合,互相衬托
不仅贴合整体空间的设计主题
也让整个客厅
温馨而不失格调
加上金色几何线条
与典雅时尚的陈设软装
打造出了一个
法式轻奢主义的空间格调
既承袭了最具法国特色的典雅
同时让空间也更为轻盈、时尚
餐 厅
蜡烛吊灯,小巧精致
木制餐桌椅,清新淳朴
加上花卉的点缀
散发出大自然的韵味
整个餐厅
充满了浪漫优雅的气息
精美的餐具
是品味,也是温暖
更是对生活的追求
三口之家的美好
想想都无比的甜蜜
主 卧
一推开门,映入眼帘的是一个浅蓝色的寝殿,典型的法式中轴对称布置,优雅平和的色调,营造完美舒适的卧房空间。法式复古双人床与浅蓝色花纹相互映衬,主人不凡的品味在空间中娓娓道来,此刻放松心情,一起去寻觅幸福的踪迹。老人房。
老人房运用原木与清新床品相结合,渲染了整个空间的调性。素雅中也不乏惊艳,静谧中又能窥探到内心的活力。金色夕阳下,父母脸上扬起了亲切的笑容,让生活来诠释天伦之乐的含义。儿童房。
粉嫩的儿童房满屋子的少女心粉色的窗幔既有公主风的梦幻也能给孩子带来足够的安全感粉色窗帘搭配浅蓝色鸵鸟挂画清爽舒适,俏皮可爱在这里生活的小公主终有一天也将破茧成蝶开启华丽的人生书房
身处书房空间即刻便能体会到主人阳光般明媚的心情。恬静的午后,翻开书的扉页,一光一景中,让人仿佛又找回了在书店中邂逅一本心爱之书的喜悦。厨卫。
一个干净利落的白色空间
柔和,沉稳、安静
呈现宁静雅致的氛围
象牙白的橱柜
精致的金属走边
增添了厨房的气质与品味
夫妻二人
一同于厨房里忙活
在锅碗瓢盆的碰撞声中
将一堆食材原料
变成香喷喷的美食
是何其幸福的事
灰色系的卫生间给人的感觉圣洁高贵,充满了法式特有的贵气。大浴缸必须要有一个,泡个美人浴才能舒解一天的疲劳。安上一面触摸感应镜,分分钟给你打光。“大小公举”大概会在这里开启疯狂自拍模式吧。
客服
消息
收藏
下载
最近




























