查看完整案例


收藏

下载
凡高首席设计师范淼(Rain)作品:《深圳湾星空之夜》
项目名称: 深圳湾红树西岸滨海豪宅设计
开 发 商: 深圳红树西岸地产发展有限公司
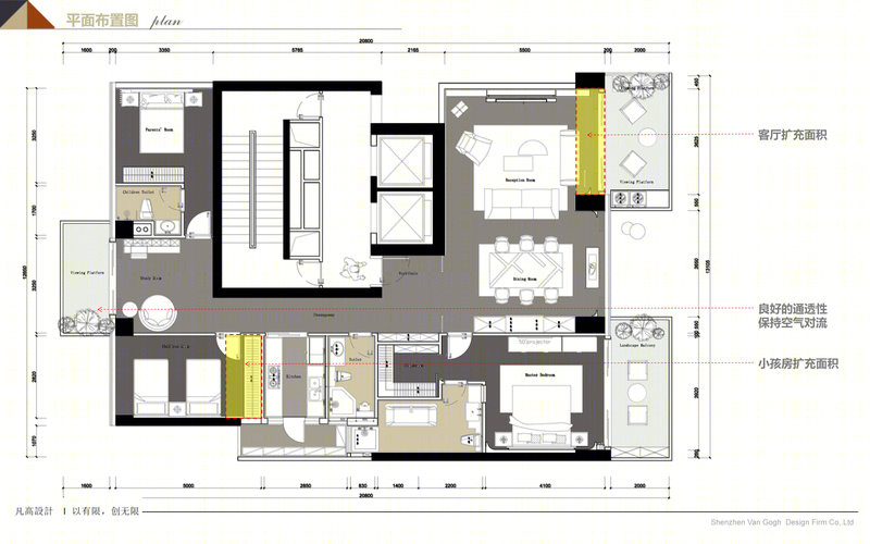
户型面积: 200平米
销售单价: 16.8万/ 平米
设计机构 :深圳市凡高设计事务所
儿童房色彩较为活泼,蓝色的静谧与黄色的跳跃,运用色彩、图案打造出丰富多彩的儿童世界。
软装设计: 深圳市凡高装饰设计工程有限公司
家私品牌: Fendi(意大利芬迪)、Poliform
洁具品牌: Villeroy&Boch(德国唯宝)、Hansgrohe(汉斯格雅)
首席设计师: 范淼(Rain Van)
主卧运用了经典的黑白灰,静谧的氛围将疲惫拭去,得到身心的放松与惬意。色调统一的装饰画与优雅的摆件、抱枕、地毯以及床头吊灯的色彩为空间增添了浪漫与温馨之感。
设计师团队: 朱昧 王小丽(Lily Wong) 王梦真(Dream Wong) 张艳(Yanni Cheung)
效果图表现:黄佑强(Luck)
主卫整体的视觉和谐、美观。淋浴区采用马赛克肌理,增添了空间的活泼与生动气息。整个空间区域规划明了,布局合理,简洁但又不失设计感。
完成时间: 2020年7月
书房的设计打破常规手法,增添了灵动的气息,圆形沙发与圆形地毯交相呼应,捧上一本书,窝在沙发里,成为空间中惬意、舒适的一角。
次卧大面积的落地窗将清晨的一缕阳光洒进室内,拉开窗帘,望向窗外,便可与整个城市交流......
简洁优雅的设计风格,是对意大利奢侈品牌Fendi Casa最好的诠释。
红树西岸拥有绝佳的地理位置,推窗见海,红树林湿地与香港天水围尽收眼底,东西方向分别为中央主题公园和沙河高尔夫球场。起居室设置大面积落地窗将外景引入室内,丰富视觉体验。整体以灰色调为主搭配不同的肌理效果,营造出高级与趣味感。
餐桌置于落地窗旁,将自然风光与美丽景致引入眼帘,设计师巧 妙的将西厨与装饰酒柜置于餐厅背景,协调便捷的同时,味蕾也得到享受,尽享视觉盛宴。
客服
消息
收藏
下载
最近























