创作上传
VIP
收藏下载
登录 | 注册有礼
知末案例
/
Studio Toggle
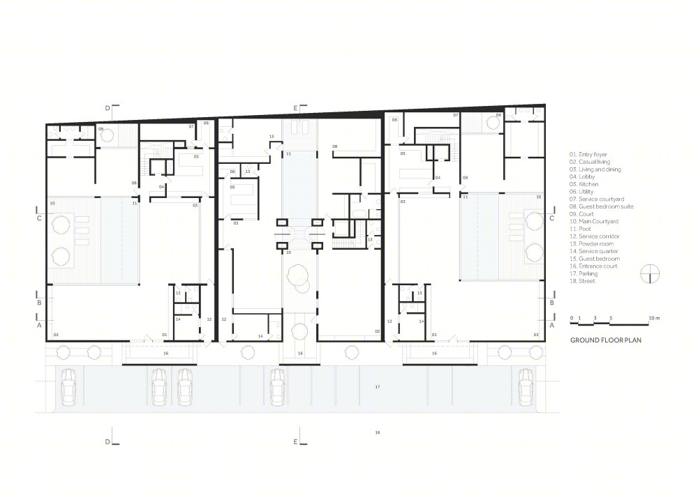
特尼恩住宅 | 现代简约风格的人居环境
2020/07/02 02:15:21
查看完整案例
微信扫一扫
收藏
下载
分享
你可能还喜欢
换一换
极简大宅 House in Sotogrande丨西班牙丨Fran Silvestre Arquitectos
湖泊亭阁丨加拿大丨Agence Spatiale
赖特 1911 年设计的 Taliesin 别墅 | 室内设计亮点与评价
柯布西耶的现代建筑杰作——普瓦西萨伏伊别墅
流水别墅
Gas Natural 巴塞罗那总部设计
米什雷夫的现代简约住宅设计
科威特 F·LOT 住宅
科威特 Toggle 工作室轻巧可伸缩户外空间设计
客服
消息
收藏
下载
最近