查看完整案例


收藏

下载
项目名称:唐山绿城蓝湾小镇生活体验馆
位置:河北 唐山
设计公司:GOA 大象设计
摄影师:赵奕龙
唐山蓝湾小镇项目位于唐山市乐亭县东南沿海,唐山湾国际旅游岛北侧陆域。小镇中心作为项目商业中心,位于项目基地西南角,祥迎路与海景大道呈70°交汇出一块狭长的三角形用地界定出用地范围,功能包括生活体验馆与社区配套。作为与城市界面沟通的第一门户,我们考虑如何使建筑形象有效且合理:1.契合场地;2.标志性的城市界面;3.有效衔接新中式的项目整体建筑风格;4.创造多层次公共空间与城市生活。面向城市道路的界面设置两个条形体量,并向道路交叉口打开,以开放的前场空间形成展示面,并以浅浅的镜面水池作为与城市环境的缓冲带,呈现静谧优雅的姿态。高达10m的现浇混凝土伞形柱无疑是整个建筑的主角。位于两个转角的伞形柱向上延伸成整片的“C”型平屋顶,将整个建筑的体量统筹于屋顶之下,形成统一、简洁的建筑形象。东侧平屋顶覆盖新中式立面风格的社区配套中心,使现代与新中式有机结合,形成城市界面与社区环境的良好过度。建筑由三个体量构成。面向西侧
城市道路
的体量为生活配套功能,主要设置了特色餐饮与活动中心等功能;南侧体量为生活体验馆,项目前期作为售楼部使用;东侧体量靠近小区主入口,主要功能为超市、餐厅、健身房、体检中心等便民设施。
唐山绿城蓝湾小镇生活体验馆外部实景图
唐山绿城蓝湾小镇生活体验馆外部夜景实景图
唐山绿城蓝湾小镇生活体验馆轴侧图
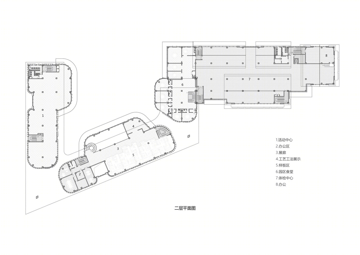
唐山绿城蓝湾小镇生活体验馆平面图
唐山绿城蓝湾小镇生活体验馆立面图
客服
消息
收藏
下载
最近























