创作上传
VIP
收藏下载
登录 | 注册有礼
知末案例
/
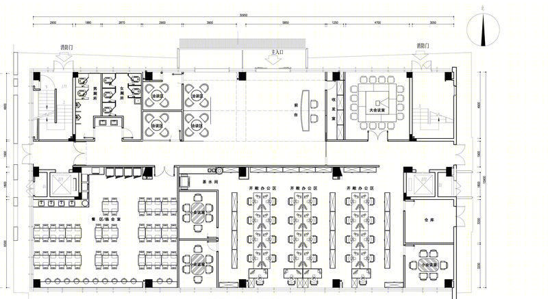
亦小雅
亦小雅办公建筑
2018/03/31 11:44:46
查看完整案例
微信扫一扫
收藏
下载
分享
你可能还喜欢
换一换
合肥翡翠天际社区中心
WT 别墅丨中国台湾丨宏为建设
深圳光明科学城启动区产业园丨中国深圳丨同济设计集团
伊朗人行道公寓丨Ashari 建筑师事务所
马德里网球学校后勤建筑 / BETA.ø architecture office
Puma萨尔瓦多能源总部 / RUIZ PARDO – NEBREDA
这是一家科技公司,但是甲方不是很重视大厅的效果,本来是做的一个比较偏科技和现代一个感觉的场景,后来改成一个LOFT简装的感觉
85m²复古混搭风,打造时光怀旧之旅
克制与宁静 | 170m²老房无主灯设计改造
现代轻奢的温馨家居,打造一家三口的幸福空间
上海九亭爱伦坡别墅
深圳“茶阅世界”新中式茶室
客服
消息
收藏
下载
最近