查看完整案例


收藏

下载
80 平米超大空间,4 房豪宅!50 平可达 100 平效果!只需 16.98 万,你可以完爆邻居 80 万效果!你是否听说过这样熟悉的广告?你是否曾经相信这个世界真有这么神奇?很多人以为,设计师就是魔法师。他可以将小变大,甚至无中生有~~所以曾经我一度很困惑,咋我学了那么多年,就还没有这样厉害的技能呢?难道是我对这个世界打开的方式不对?时间是一切真相或者谎言的明证,虽然时隔多年我还是没能学会这样经天纬地的无敌技能,但是所有的套路都已经烟消云散了。对于我来说,设计没有魔法,有的是枯燥的数据和身处其中的无尽体验。言归正传,我们看看这个特别的案例:两套建筑面积 57 平米的 LOFT 公寓,总高度 5270mm,、大梁高度 600mm,单面采光,4 个小窗,其中 2 个是空调机位。
我们需要达到的标准:一个大卧室、书房、衣帽间、儿童房、活动室、客房、保姆房和两个卫生间。那么,问题来了~~ 1+1+1+1=?我想这也许不是一个数学问题,而是一个物理、心理或者哲学问题了。对于这种多重小空间组合成的大空间,我们无法避开最直接的问题:楼梯位置尴尬,客厅尺度偏小,总高度偏低,采光窗严重不足,通风不好。经过反复反复又反复的研究++ 尝试,我们开始了这场征程。
▲ Survey Chart / 测量图
▲一层 Floor Plan / 平面布局
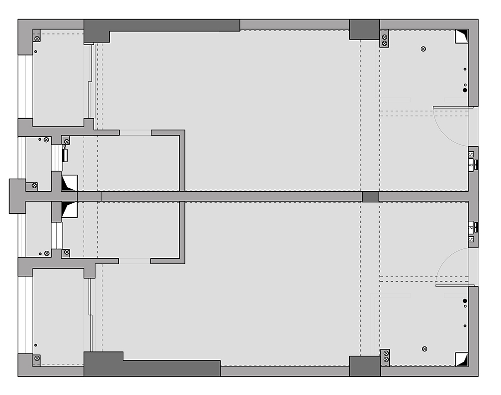
▲二层
Floor Plan / 平面布局
1.调整了入户门的位置,这样可以得到更好的入户感受和最佳的楼梯尺度。
2.在客厅使用中间部位挑空来破除空间的压抑和狭小感,同时解决了卫生间、卧室和书房的通风和采光。
3.客厅进行了可变动的布局模式,电视++ 投影不同方向摆放,会客模式和影视模式自由切换。
4.活动室和保姆房使用套房模式来增加空间的连贯性和通透性,后期也方便将保姆间改造成衣帽间,充分考虑了儿童的成长空间。
5.因为使用了中央空调,我们适度改造了空调机位,使房间有更好的采光和通风。
6.厨房也合理的利用了原有空调机位进行扩充,在保障每个使用空间的尺度时,兼顾了各空间的采光需求。
7.二楼主卧和书房采用了自由分离的布局方式,既解决了书房的采光问题,又增加了通透感。
8.二楼卫生间采用干湿分区,独立分离空间来解决多人同时使用的冲突。同时因为客厅顶面的镂空原因,各空间都具有相互独立又互相联系的特点。方案的事情也许是纸上谈兵,但落地到工地,我们更头疼的不是材料或者工艺,而是密密麻麻、错综复杂的管道布局。
消防、新风、空调、给排水、排烟、排风、强弱电~~
这些人们视而不见的东西才是我等技术流的战场。
以无法为有法,以无限为有限。
但看官大爷,吃瓜群众们其实不太关心这些问题,大家更在意的也许永远都是辣么的简单粗暴:你搞那么多事,好看吗?好用吗? 不多说,看图吧。
当年有位算命的高人对我说,小兄弟,我观你头角峥嵘,隐有霞光啊!我记住了,蛮准的。
不止霞光万丈,我还有一片赤橙~~
壶里有日月,洞中有天地。
我喜欢原木的自然,喜欢毛毯的柔软。
我喜欢墙布的细腻,喜欢石材的冰洁。
更喜欢有光,又有风。
左边开门保姆间,右边开门活动室。但其实绕回去,是一间大套房。三重门的游戏。
左边开门保姆间,右边开门活动室。但其实绕回去,是一间大套房。三重门的游戏。
楼上往下望,也挺不错。
玻璃栏杆少了点复古,多了些通透。
在这样狭小的空间中刚好合适。
你看到的是眼花缭乱的墙砖,我看到的是普通的顶面内暗藏的无数管道。
车边银镜、长虹玻璃、防水壁布、仿真地毯砖,合适的材质能缓解空间的局促,让卫生间也能温暖如春。
又见三重门。通透与私密有时候是朋友,有时候是敌人。设计没有魔法,永远不可能无中生有。但是解析数据,合理的运用材质和色彩,确实可以让冰冷的空间充满温度。设计更像是一场精心策划,令人期待的神秘魔术~
■ 项目地址 | Project Address:汉口新界广场
设计面积 | Design Area:(50㎡+50㎡)*2
设计风格 | Design Style:现代美式
设计公司 | Design Company:支点设计
主案设计 | Project Design:徐彪
软装搭配 | Soft Outfit Collocation:艺境 · 陈设软装
摄影机构 | Camera Mechanism:梵镜空间摄影
客服
消息
收藏
下载
最近


























