查看完整案例

收藏

下载
厦门红黄蓝中航城国际幼儿园属于高档小区配套园,周边环境优美,绿化率高。设计师本着“让孩子回归自然”的设计理念,充分利用地形优势和气候特点,融建筑与环境为一体,增强儿童与环境的互动性、趣味性和娱乐性,打造国际高端“花园式幼儿园”,让孩子们在大自然的怀抱里快乐成长。
教师休息室
庭院设计遵循儿童游戏的天性,设置了草坪、花树、戏水池、土山、树屋、伸缩式遮阳棚、喷雾等,孩子们可以在这里观察、游戏、休息,与大自然亲密接触。
在教室的设计中,选用原木等天然材料,色调淡雅,用简洁的方式营造温馨的儿童学习环境。天然材料的投放和使用,让儿童真正体验自然的味道。
音体教室采用新古典主义风格,改造二层回廊和看台,增强空间的趣味性、娱乐性,让孩子在建筑设计中完成审美的觉醒。音影器材、灯光组合、吸音材料的使用,为孩子打造震撼的视听效果。
操场一角的树屋
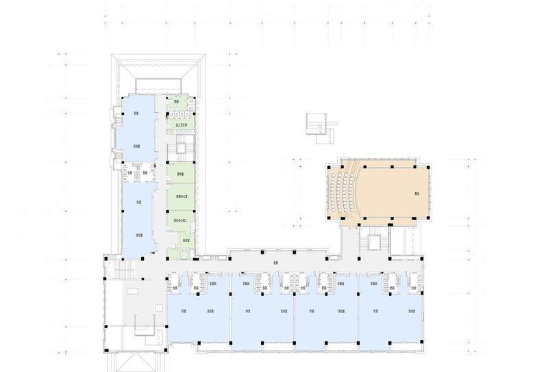
一层平面图
二层平面图
三层平面图
幼儿园门厅打破传统背景墙设计,以攀爬、滑梯、树屋、涂鸦墙等造型组合,为孩子打造自由探索的活动空间。
室内通往屋顶花园的露台
针对厦门湿润多雨的气候,为了给孩子们提供下雨天的活动场地,特别设计了一层架空的风雨操场,遮风挡雨、视线通透,孩子们可以在这里放心呼吸,自由玩耍。
客服
消息
收藏
下载
最近













