查看完整案例


收藏

下载
VIP 会员只需投稿可由小编代发帖。
所谓千古不朽的艺术作品特点就在不论时尚怎么改变它总是有办法满足任何时尚中的任何人——纪德
艺术勾画生活的框架
组织生活的模式
表达生活并提升生活
以别样情怀触动内心诗意的情感
缔造一个崭新的空间体验
▼门厅 /LOBBY
设计重现一种经典并不是一件难事但纯粹重现往往会显得过于厚重和呆板因此从古典到现代,从东方到西方将经典元素利用现代手法再现巧妙细思与形式搭配使整体空间做到难得轻盈更难能可贵的是能够将园林景色通过设计手法引入其中为空间带来了逐层递进艺术氛围
▼客厅 /LIVING ROOM
客厅空间气势透过纵横线条被有意的拉伸,简练清晰的空间递进关系不仅划分出流畅的动静区隔,更使彼此功能相对独立又有联接。整体稳而不重的色彩搭配醇美知性的古巴砂色皮革与沙发,精巧的邂逅在这里细细诉说。搭配简约的线条勾勒点睛,赋予生活温醇暖意,进一步诠释内在的丰富与安定。
楼梯/STAIRS
楼梯犹如一曲悠扬的旋律存在于空间之中
它已不再是单一的功能主义形式存在
优美的线条更像是连接空间的一种纽带
自上而下,贯穿其中,言有尽而意无穷
塑造出不可名状的宁静美
▼餐厅 /DINING ROOM
这平和之下显露出的浪漫
汇合成生活的真实感受
▼书房/STUDY ROOM
深色木质家具与墙面留白手法碰撞出纯粹经典的氛围。大面积的玻璃窗赋予美以戏剧性,意境体验透过玻璃窗被无限放大。书房更像是每个人自己的博物馆,透过情感的转换传达出独特的质感,缔造了优雅经典的韵味。
- ▼主卧 / MASTER BEDROOM
主卧是鲜明的绅士之居
没有过多浮夸的装饰和色彩
一切关于品味的态度却都已包含其中
东方的气质美学与欧洲的华美完美融合
展现出了全新的精致主义美学
给予居住者一种崭新的生活体验
空间独一无二的视觉感
除了整体气韵营造
便于细节处分晓
在辅厅的细节处理上
凹凸质感的顶面造型与楼梯
形成柔与刚的碰撞
又融化为火焰热烈摇曳
▼观景平台 /DECK
三楼的书房与天台连接,天台是一家人放松的"类度假"感受的营造。超广视觉体验是这个寸土寸金的都市难以感受到的别样体验。可以自由升降的天台栏杆是天台最大的特色,使居者每时每刻恣意享受绝佳风景。乐享生活中弥足珍贵的悠闲时光,生活的趣味被无限延伸,被转化和扩展成一望无际的水平风景线,一直延伸到湖面和不远处的高尔夫球场。这一切,都是为了让室内生活可以重新回到自然、感受自然。抬头仰望,纯净而唯美,随着时间的推移、云影的变化,以最基本的方式表达着人与自然的关系。▼茶室 /TEAROOM
茶室挟取古典园林移步借景手法,虚实相生俨然让室内形成一种“窗前有风景、茶中有天地”的视觉感受用空间意象和时间情境,演绎绵延不绝这则是赏尽城市霓虹,心归江南里。….东方安静力量里自由艺术时隐时现的东方哲学和空间气质
▼健身房/ GYM
别墅是一种生活方式
是一种承载着文化内涵的生活体现
▼庭院/COURTYARD
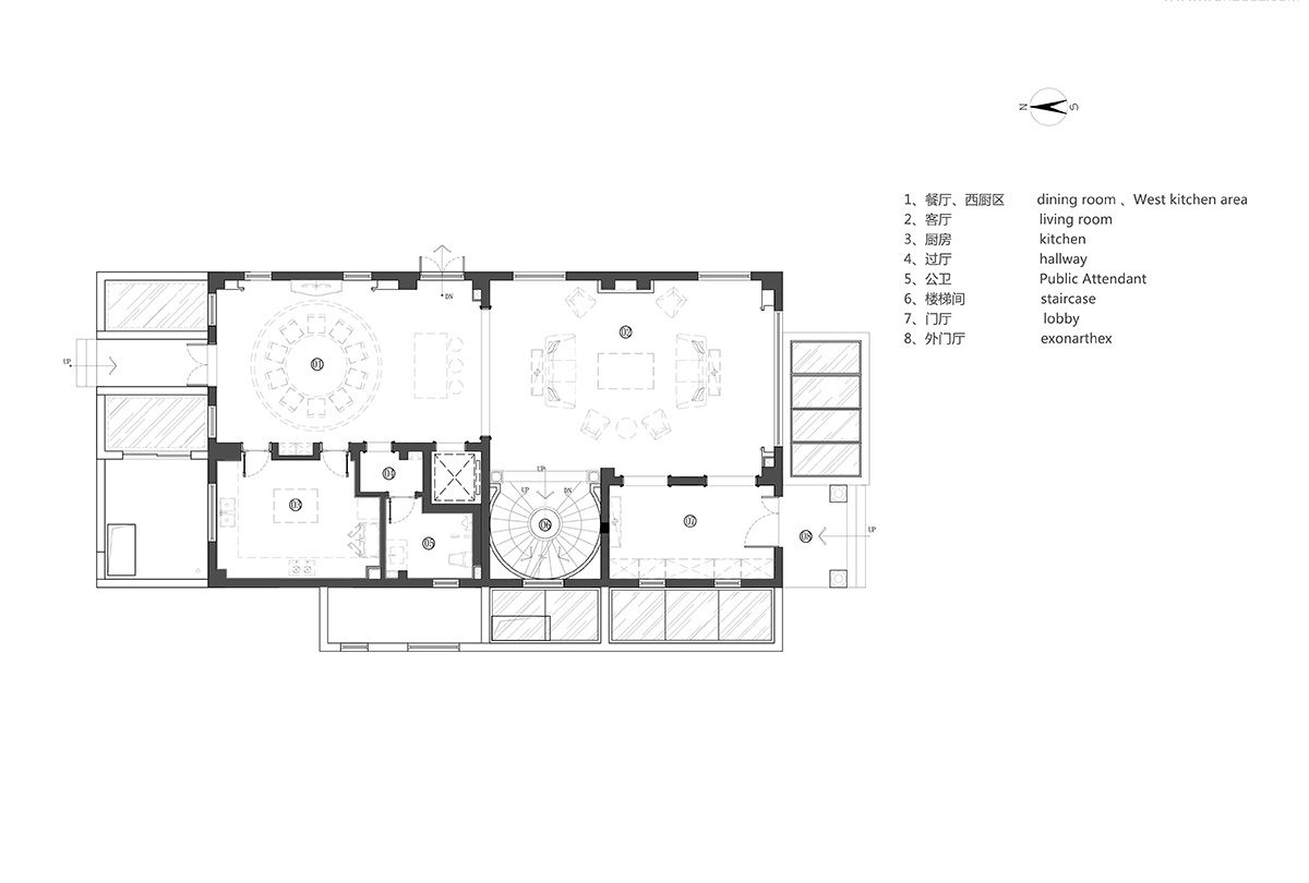
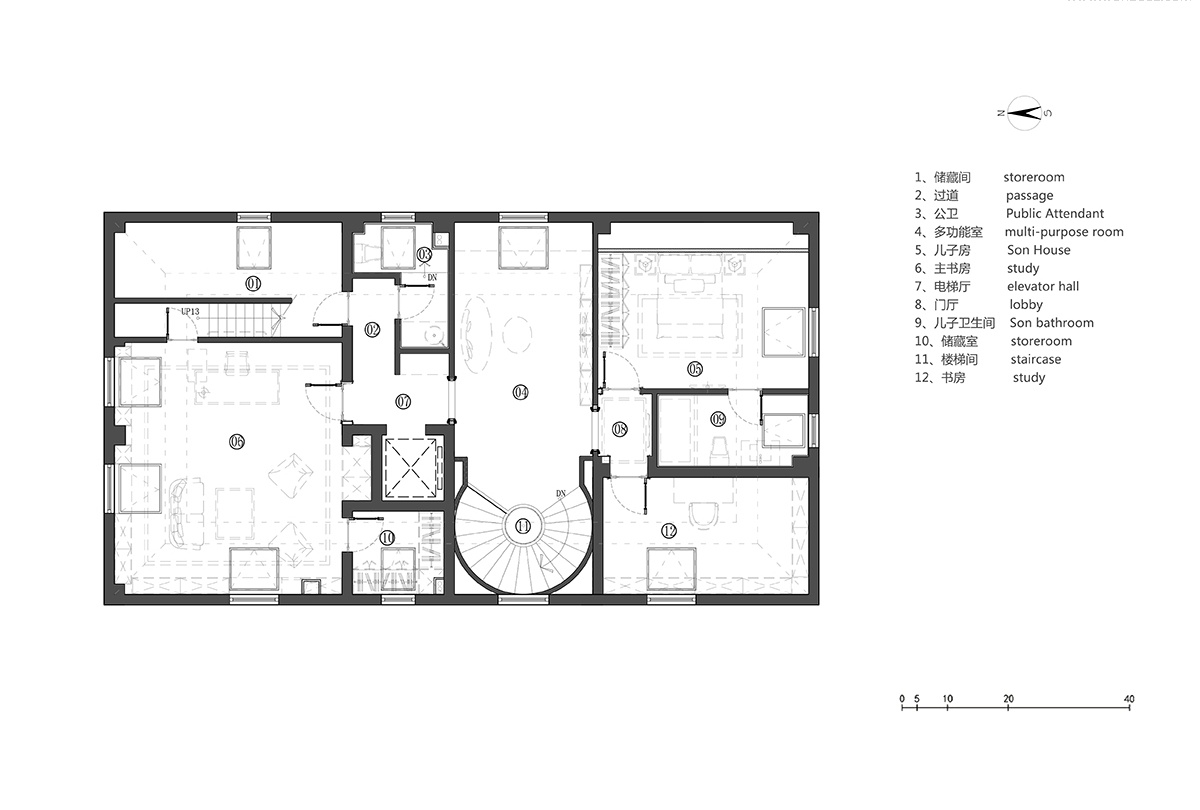
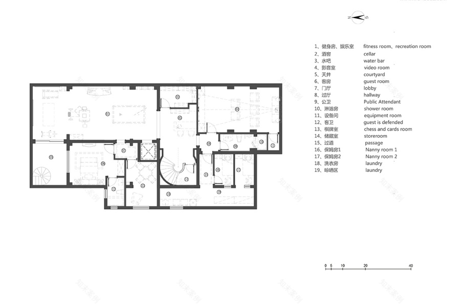
平面图
项目信息
项目名称|| 大都会高尔夫别墅
项目地址|| 上海。七宝
项目面积|700㎡
设计公司|| 布梵设计事务所
主创设计师|| 韦清华
设计团队|| 张迈 赵娇 钱辰宇 吴雨婷
摄影|| 林飞影像
完工时间 2019.10
ABOUT Wei Qinghua
韦清华
布梵建筑设计事务所创始人/设计总监
全球杰出华人设计师
中国建筑装饰协会 (院长联盟) 理事
注册国际高级室内设计师
国际装饰协会高级环境艺术设计师
美国 ADA 建筑设计师联盟设计师
MD 米德设计学院董事
设计本无界 需再造
2016 中国年度榜样设计奖
2017 香港设计师协会环球设计大奖优秀奖
2018 金堂奖年度优秀别墅设计奖
2018 年度 CIAD 别墅豪宅类设计金奖
2018 美国 TOP100 全球影响力华人设计师大奖
2019 国际建筑设计 CIDA 十大设计人物奖
2019 意大利 A’ Design Award IRON 设计大奖
2019 法国双面神 GPDAWARD 国际设计大奖 TOP10
客服
消息
收藏
下载
最近


























