查看完整案例


收藏

下载
项目名称 | 新长江 CBD 办公室
Project name |
xin chang jiang CBD
项目面积|| 约 500m
Area|about 500m
项目风格|| 现代简约
Project style Entry lux
设计团队|| 武汉品承空间设计有限公司
Designteam | Wuhan pincheng space design co. LTD
设计主材 | 水磨石、木饰面、岩板、硬包、长虹玻璃
DESIGN NOTES
共享与独立,是贯穿于整个办公空间的关键词。
基于原空间的特性,在功能逻辑和功能氛围两个层次的剖析之上,我们决定打破传统的办公规划流线,在空间布局中,保留最大限度的开放性与共享性。
依据功能布局,每个特征的空间既保持了独立性,又维护了整体的链接沟通。
于此之上,简洁与理性的美学,潜藏于设计师基因中的诗情艺术,又巧妙穿插于其间,在功能性与艺术性上,达成了最佳的和谐。
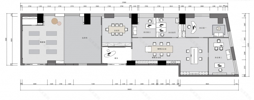
Layout hart
| 平面布置图
效果图展示
Foyer & Hall
接待厅及大厅
在这次设计中我们预构建出一个开放、社群、高效、感性的办公空间,我们运用体块的空间穿插来改变动线关系和空间关系,从而让空间之间相互交融又相对独立,这也是我们对当下办公空间设计中一些思考的呈现。前台区细节处点缀的简明,呼应整体气质的同时,又轻描淡写彰显出空间的艺术天分。
公区简洁、开放的形态,让空间时刻能成为人与人交流的场所,明确克制的设计语言,极简质朴的材料则构建出一种寂静有力的空间情绪。
开放式的空间,是创意思维活跃与交流的生发地,其每一个立面的经纬贯通,延展了空间的维度,更是最大限度将自然光线引入室内,可谓功能与艺术的一举两得。
自由无拘的沟通对于团队的创新至关重要。开放的办公区是有效获取信息和激发灵感的地方。百叶窗折射的光影,充足的自然光营造高效的工作环境。空间虽然有限,但发挥最大的性能。恰如贯穿于整个空间的调性,基于共同的简洁干练之上,一面是艺术,一面是理性。
空间序列感,赋予了整体更多的情感,使之承载艺术、通透性,并影响体验者的视觉与知觉体验等。这是空间设计中表达时间性的一种方式,是一种设计理念,统一也是一种非常重要的营造空间的设计手法。严谨有序、细节营造,设计的经典视觉,在这里充分体现。
Officel Room
| 办公室
每个空间的设定,都应该追溯到空间使用者的属性,及在其中未来可能发生的活动与关系。共享外的私密性办公室,正是基于此功能属性为核心的需求而设定。需要剥离出传统办公空间的感觉,有一个相对松弛舒适,具有艺术感又不丧失商务性的空间。
Yoga Room
| 瑜伽室
瑜伽,作为日常健身的方式之一,随着其文化的普及已不再仅仅是习练的一种,而是被更多人视为全新的生活方式,甚至是一种开启智慧的哲学。练瑜伽获得的是健康和美丽,踏进这里便能感受到轻松愉悦的氛围,瞬间让您卸下工作和生活的疲惫,放松心情。创造了这个瑜伽体验空间,希望把瑜伽的美好也带给大家,尽显精致生活。
ABOUT US
品承空间设计有限公司
武汉品承空间设计有限公司是一家专业从事住宅平层、洋房别墅、高级会所、房产样板间的室内设计、装饰施工以及整体配饰陈设为一体的设计公司。将“品质是我们的承诺”作为设计理念,以专业的设计水平,独特的个人品味,诚恳的工作态度服务于追求高品质生活空间的客户群体。团队提供室内硬装设计、软装家具饰品整体设计等服务。选择品承,将艺术融入到生活,体验不一样的私宅定制。
M: 18908640106T:027 - 87879499
武汉市洪山区三金雄楚天地 1-1413(地铁 2 号线杨家湾站 B 出口)
客服
消息
收藏
下载
最近
















