查看完整案例


收藏

下载
项目名称:丹麦哈博埃尔中心活动景观
位置:丹麦
设计公司:JAJA建筑师事务所
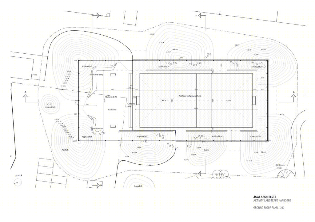
该活动景观是哈博埃尔中心的一个延伸,哈博埃尔中心是哈博埃尔当地社区的体育和文化中心。社区希望设施能够在室内和室外活动之间实现协调一致和轻松过渡,这些设施是户外活动的自然延伸,也为丹麦西海岸恶劣的气候中的市民提供避难。由于小城镇社区经常缺少吸引人气和活跃的公共空间,该活动景观引入了一个低成本的体育大厅模式,它提供了一个室外的和隐蔽的非正式空间,轻松的氛围鼓励着人们在这里进行全天和全年的活动和娱乐。首例活动景观已经成为丹麦哈尔博伊尔流行的焦点。与为正式运动量身定制的传统体育馆不同,活动景观创造了内部和外部空间之间的无缝过渡,为更广泛的非正式和正式使用开辟了道路。从室内和室外滑冰到足球、跳蚤市场或音乐会,活动景观提供了一种新型的公共空间,在这里活动可以延伸到遮蔽空间之外,直至户外。
丹麦哈博埃尔中心活动景观内部实景图
丹麦哈博埃尔中心活动景观外部实景图
丹麦哈博埃尔中心活动景观平面图
丹麦哈博埃尔中心活动景观剖面图
客服
消息
收藏
下载
最近

















