查看完整案例


收藏

下载
伊斯特伍德的电影中有一段非常经典的台词:“除非你已经抽了一口雪茄,并且喝了一口威士忌,否则你将错过生活中那些美好的事情。”从此,威士忌++ 雪茄,成了男人们的升仙之路。
关于威士忌,内行的人就这个话题,估计可以聊上三天三夜。而所有我们叫得出名字的威士忌好酒,在「麦乡」,基本都会得到解答和体验。这家 whisky bar 究竟有着什么样的魔力,让我们跟随设计师的步伐触摸空间的灵魂。
同玲
2012 年--2017 年独立设计师
2017 年成立彳亍美学空间设计事务所
红棉中国设计奖
CIID 中国室内设计大奖赛铜奖
金堂奖年度优秀住宅
2019 年作品入选并在 CCTV2 空间榜样栏目播出
Part 1
精神的寄托场所铺叙生活的艺术可能
在往常的印象里,酒吧是一个狂欢夜晚的代言,歌舞升平;又或者是一方清净的精神场域,疗愈人心。而在这里,它可以像音乐,又或者像诗歌,是一种氛围的营造,一种细腻的感情。
▲ 麦乡 Whisky 取舍居中,恰如在繁华都市中的惬意小歇。这是落址于厦门七星路的一家威士忌酒吧,区别于其他类型的酒吧,麦乡 Whisky 有着自己的风格和传统,没有头晕目眩的灯光,所有的关注都在酒本身。
麦乡,取意于制作威士忌的原料(大麦),它复杂,馥郁芬芳,品味之旅如同走在铺满各种鲜花和鲜果的苏格兰山坡上;它简单,简单到只需大麦制作就足矣,因为它所向往的极致。设计将思考的切面从生活中的社交场转至精神的寄托所,铺叙生活的艺术可能,这里是一个既可社交沙龙,又可会友酣谈、酌酒享乐的小资酒吧。一层的“会客厅”与二层的“私享”分时段经营,这里没有嗨吧那么喧嚣,也不似清吧那么寥淡,取舍居中,恰如在繁华都市中的惬意小歇。
▲ 麦乡 Whisky
厌倦了迪吧的声色犬马,厌倦了清吧的娇柔造作。他们更希望这里能从社交场转至精神的寄托所,铺叙生活的艺术可能。在红尘滚滚的闹市里,能取一认真品酒的地方,也称得上难得。
▲ 麦乡 Whisky
Part 2
直接与余韵在调和中平衡却有层次
空间以“黑色”为主要提炼元素,先由单一的自然形态到组合裂变形态,再由“繁”至“简”转换形态并植入到以酒吧中部为核心的主酒架区域,突出为之相联的主题。
▲ 麦乡 Whisky
深邃而强大的黑色成为了一层“会客厅”的主轴,庄重而神秘的主线,让取自 GUCCI 红白绿的经典配色能够糅合其间。这种勇敢而复古的配色,和威士忌的酒体不谋而合,传统与个性,简单与丰富,直接与余韵,在调和的过程中变得平衡却有层次。
营造出一种神秘的高贵感,为空间带来浓郁的怀旧韵味。阐释了鸡尾酒所代表的年轻随性,威士忌赋予的古典深远。
麦乡 Whisky
空间无需喧兵夺主
将最好的色彩与高光留给主角
泛金色的特殊质感融入到整体空间中,进一步体现威士忌的固有色,并在灯光的映射下显得流光溢彩,光影之间犹如半亩方塘一鉴开,天光云影共徘徊。地面射灯映射在黑色肌理墙上形成的光束,犹如时光隧道,带人一种具有想象空间的画面。舞台区域的纯灰色调与空间周边的暖色调形成一种鲜明的色彩对比,它的角色是扮演着这个舞台表演者的配角,它不需要喧兵夺主,它把最好的色彩与时光留给舞台的主角。
▲ 麦乡 Whisky
人们也许都知道,上海十里洋场的优雅与融合。却少有机会了解闽南城市的浪漫。麦乡砖红色的弧墙以一种从瓶中倾倒的姿态从空间流过,寓意时间像流水般从墙上游过,岁月的痕迹永远不刻在墙上,它只会刻在人们的心里,由此可以看出设计师的别出心裁。
▲ 麦乡 Whisky
Part 3
沉浸式体验
造出隔而不断的朦胧美
拾阶而上,二楼的“私享区”与一层的“会客厅”分时段经营,光线透过经典的压花玻璃浸润空间,有一种置身“瓶中”的微妙感觉。漆皮和天鹅绒的沙发规划更为紧密,人与人的距离被进一步拉近,疲惫的身体得到承托,内心的忧虑也在杯里寄放,似乎内心,也能在微醺下得到暂时的自由和释放。
▲ 麦乡 Whisky
沉浸式的体验和空间情绪的铺陈在这里达至极浓,即刻开启深夜的微醺与内心的自由释放。经典皮座的选择令空间的不羁艺术感更为浓郁,皮质与天鹅绒的搭配更显摩登优雅。压花玻璃和黑色金属框营造出隔而不断的朦胧美,高级和复古感扑面而来。
就座区的规划较一层更为紧密,配着爵士乐曲的氛围,空间将人与人之间的距离压缩,将人们内心的忧虑与疲惫弥散而开。空间在视觉上的迷人,听觉上的深情,给人带来内心的共振,从而发掘心底最真实的自我。
▲ 麦乡 Whisky
用空间营造出一种此处安心,便是吾乡的生活场景。
在进入私享区之前的过渡空间中,以低饱和色做旧色为元素的装饰墙并结合灯光,如同酝酿威士忌酒的“陈年时光”,在经过岁月中的洗礼、酝酿、成长、蜕变、成熟,最终惊艳地出现在人们的目光中,接受大家的赞美,同时也传达着一种自然生态的理念。
▲ 麦乡 Whisky
就连洗手间内的每一个造型,每一处细节,也无不体现出屋主人的品位与喜好,复古风的墙面、瓷砖为空间增色不少,设计感十足。摆在洗手间内的塑像也犹如一个装置,带来美好的视觉享受。
▲麦乡 Whisky 最自由的状态,就是倒一杯威士忌,点一份自己喜欢的下酒好菜,约上三两好友,听着驻场爵士女歌手,唱出城市的清冷与热闹。想聊天就聊几句,不想聊就举起手中杯。又是放松自在的一个舒服夜晚。
这周末,去麦乡喝两杯 whisky
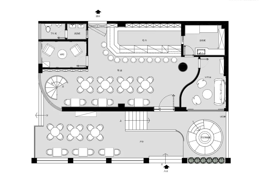
【项目图纸】▼一层平面图
二层平面图
项目名称:麦乡 Whisky
项目类型:威士忌酒吧
项目地址:福建厦门
项目面积:310m²
硬装设计:彳亍美学空间
软装设计:Walking Casa
摄影:杨耿亮
文案:IVA、美渐
客服
消息
收藏
下载
最近
























