查看完整案例


收藏

下载
眼前这套四室两厅的公寓,是一对家里有个可爱男宝的年轻夫妻的居所。
男主是一名航空公司机长,符合所有人对机长的印象,帅酷稳重。喜爱读书,艺术,数码和健身。平时工作精神高度紧张的他,极度在意家居的舒适度而且家中一定要有他最喜爱的 Jackson Pollock 的画。
女主是轻餐品牌<迷谷森林>的市场负责人,是一名时尚达人,喜欢有仪式感的搭配。对新家的要求是必须有高颜值,收纳做到位考虑好宝宝的活动娱乐学习空间。
他们购置的这套精装修的公寓,装标很好,但是整体气质很油腻
用了大量温馨 (chou) 的黄色木作,原本的墙面也有比较多的阳角和断开,不是很完整。
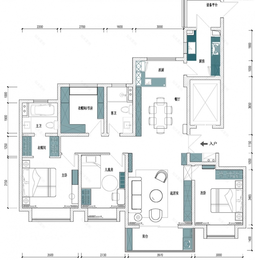
户型图,填色部分除厨房和主卧衣帽间均为新加入的收纳
LIVING ROOM 客厅
软装搭配图
客厅的灵感是从女主个人风格为灵感延展开的
空间暖灰打底,大片孔雀蓝/黄/粉橙点亮,细玫瑰金走线
再用大块地毯串联起各种彩色
使颜色层次十分丰富而融合
趣味小件为空间带来趣味和时尚的氛围
有大量收纳空间的简洁柜体++ 同色隐形门填起电视背景凹陷。背景用布和木不同比例竖向线条拉高,完美比例分色处理造出单独的玄关区。
带有建筑美感的玄关柜用来收纳宝宝的绘本,方便在客厅的亲子阅读,整个客厅的围合看起来轻松又活泼。
机长坐沙发不喜葛优躺,又要颈部支撑完美。常规的沙发根本不够高。设计师在市场上找了很久,才找到如此高颈肩支撑的三人位。满足男主的舒适度,也满足女主的颜值。
地毯的圆形部分是月球茶几在地面的趣味投影。
整个屋子的家具和软装配饰来自几十家供应商,为了保证全屋色彩的丰富统一性,设计师比对小样花了大功夫。
相信在这个有想象力的空间无论是独处、家庭生活、或招待朋友,定会有不一样的感受。
DINNING ROOM 餐厅
餐厅交付有组西厨,但上柜做得生硬,设计师没有盲目拆除或改造它,而是用做了一组同色哑光餐边柜与之接合,使餐厅西厨连接得更完整,同时增加大量收纳。
软装搭配图
左边的高柜里没做柜底板为的是让机长一进家就可以把飞行箱拖进柜子。全屋木门进行了改色处理,踢脚线也精心替换成一样的色号,全屋木作颜色整体和谐统一。
餐厅用复古的墨绿和酒红来减轻硬装的硬朗感配合男主专爱的抽象画,让就餐更有仪式感。
餐边柜的石材和灯光让就餐更有氛围和质感
PANORAMA 客餐厅全景
光影随着时间的推交通错变换丰富了空间的表情为轻松自在的空间塑造出独特气质
CHILDREN’S BEDROOM 儿童房
这里打造的是一个活泼可爱的橘子汽水的感觉
用白/木/黄/橘温暖的色彩呼应小男孩的活泼好动
同时利用卡通元素点缀
把空间变成孩子的记忆盒子与梦想乐园
地毯,高低床,飘窗上都是宝宝尽情玩乐的小天地这里还有一个小衣柜和一个玩具柜妈妈不再担心宝宝的物品溢出没地方收纳
HOST BEDROOM 主卧
暖灰的底色用有质感的蓝丝绒提亮床头两侧用吊灯和台灯来营造不对称感床尾是一个斗柜++ 梳妆台的设计
细致的竖向线条让空间更细腻温暖
配合同色系皮革和布艺
让主卧显得柔和沉静高雅
SECONDARY BEDROOM 次卧
这个空间是老人居住,暗红色地板保留了交付时的状态床头背景用复古自然的植物纹理壁纸来打造使这个空间有暗调的温暖氛围配合做旧的木质家具看起来融合而美好
配电箱用画画来装饰
隐形门外移,留了一个空间放置斗柜
我们给这对夫妻设计的这个家自始至终不曾刻意考虑过风格的问题,更希望带来是精致、有趣、全方位舒适的家以及给予更多的放松享乐感受。我们最爱的地方就是家庭的所在地,那与地点无关,而是我们家庭所营造的氛围。无论我们身在何方,那里才是我们的归属和最终愿意回到的地方。项目名称/《锦。色》项目地址/南京。旭辉铂悦秦淮项目面积/143M² 四室两厅项目类别/精装修软装+硬装改造设计单位/南京.大筑演绎摄影/ingallery
本案设计师:王璠
南京大筑演绎 联合创始人/设计总监
擅长将丰富的空间细节、细腻的色彩搭配、趣味的产品造型和完善的功能性
与使用者的的气质、爱好、审美和生活方式相结合
为空间赋予其应有的状态
客服
消息
收藏
下载
最近































