查看完整案例


收藏

下载
【工程地址】:浙江杭州【设计风格】:混搭【测量面积】:1000【全案设计】:SC 设计事务所【设计主材】:进口瓷砖、成品木作、原木地暖地板、硬包、定制家具
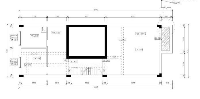
负二层,车库一进门就是型的空间,若除去楼梯井位置显然不能满足大容量储物的需求,平时业主都是开车进出门,更换当季的鞋子和杂物主要是放在这一层。我们和公司结构工程师勘察现场发现地下可以通过土建扩建,把原有的型空间变成了方块型化缺为正,通过设计规划得到一大一小的储物空间以及一个大的换鞋区,业主不同体量的杂物都有了自己规定的位置。
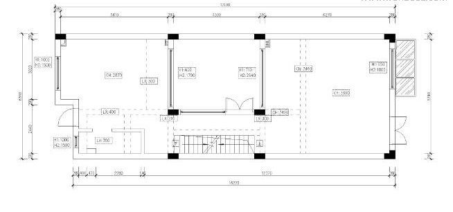
负一层,空间呈长条形进深不长,所以采用以中心区为枢纽过渡为左右各一个功能区,经和业主讨论得出以酒吧区为中心,左边影音厅以及右边较大的女儿舞蹈房较为合理。左区域一个够用的影音室以外;功能上我们进行区分深化人性化地增加一个卫生间,借用过道的宽度增加一排恒温酒柜便于储藏业主的美酒,中心区域的吧台区陈列一些好酒;三两好友聚在在这里欢声笑语品酒聊天,右边舞蹈房业主的公主和自己的小伙伴听着钢琴的伴奏,纷纷立起足尖从容而舞形舒意广。
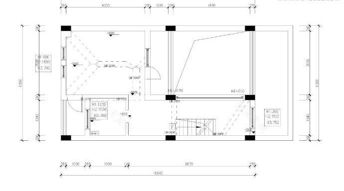
一层,不合理的中空井占用了室内有效面积使得动线非常的尴尬,使得业主心爱的旋转楼梯无法安分且破坏各区域的互动性。把中空井扩进来根据需求把空间规划成三大块空间,分别是北边的中厨和西储;中部的西餐厅;南边的接待客厅区。在南北各设置玄关,北玄关为次入口右边增加一个次卫和“储物间”(安防控制室也放到储物间;业主有半年的时间在国外,智能安防系统被采用业主放心财产安全),南玄关为主入口,放进接待客厅非常有仪式感增加空间的体验感,中部旋转楼梯上下后,进入眼帘是餐厅,往右走就是高挑的客厅,其中的体验妙不可言。
(请欣赏下边空间的美照帮我想一个形容词,哈哈
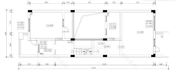
二楼和三楼的问题差不多,主要是出在楼梯和中控井上,目前空间的畸零角落有很多,生活动线很不方便,且卧室空间在很大程度上都被二者影响了。尽管更改成旋转楼梯会占用一些过道的空间,但是设计中想要得到合理的更好的生活体验感,就必须加法和减法一起运用。三楼原本天井的位置被做成了阅读区,挑空至四层的阅读区不仅开阔舒适,光照也十分充足;可以看到每个房间都设计了一些储物空间,因为随着时间的推移,家里的杂物一定会越来越多,良好的收纳储物空间,就是保证生活精致的重要条件之一。
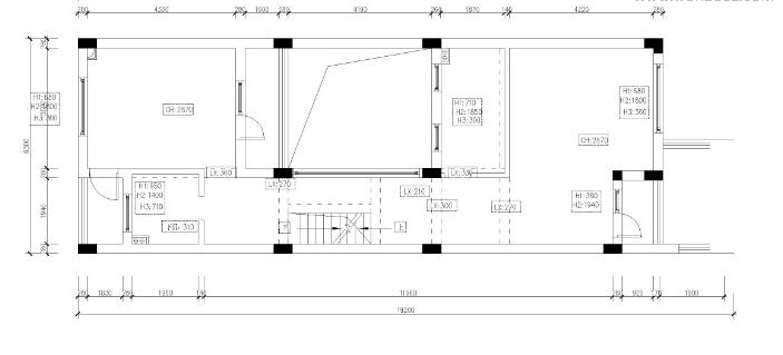
四楼的空间显得很杂乱,被分割成好多块后缺失了空间的连贯性,因此在使用功能上会略显乏力。四楼将隔墙拆除后重新规划,将书房做成男主人的独立空间,因为该空间只是定义为阅读、办公和私密会客的功能,因此减去淋浴房从而增大书房面积,增加书房的使用体验感。
入客厅轻松舒适的布置方式,明朗的色调,个性的水晶灯投下淡淡的光,为整个空间定下浪漫时尚基调。浅色的皮质长沙发,与香槟金属物件有了明亮的色彩对比。长沙发巧妙地融入灰色背景,美杜莎的金色头像不甘寂寞的闪烁着光芒。阳橙的画丰富空间的层次。精致有故事的摆件、蓝色胜利女神雕塑、熠熠生辉的水晶灯,散发着暖光,一层一层地向外发散着整个客厅精致浪漫前卫的西式氛围。
转身,一幕盛宴映入眼帘,线条优雅别致的吊灯映照着烛台、水晶花瓶、山水玄关柜以及那淡色百合花绽放着永不凋谢的纯洁,细节处静显优雅融合时尚。
软装陈设,选取了奢侈品牌
VERSACER
的家具及饰品系列进行搭配,整体色调高贵典雅,精致柔软的面料以及高级定制工艺使整个空间奢华而不失优雅。同时延续建筑及室内细腻的西式氛围,讲究、精致、细腻避免堆砌,沉稳大方的灰与白,优雅热烈的阳橙贯穿整个空间,再以香槟金属来提亮空间质感,形成现代西式精致与细腻讲究并存的空间氛围。
设计师精心挑选的布艺更是匠心独具,光影变幻与细致肌理令每一个访客都不禁触摸体验,精美绝伦。
用虔诚的匠心去反复打磨用心雕琢,把执念和一丝不苟贯穿每一个角落,细微处见真章。
蓝色是空间的提亮色,占比小而精。书上的胜利女神、茶几上的玛瑙石、烛台上的蓝色蜡烛、台灯边的玛瑙水晶,结合在一起让这个空间多了一丝静谧感,充满魔力。
收集的潮流新品与复古饰品,形成更具冲击力的搭配形式,于简洁灵动的空间轮廓中...
陈列各国精选挑选的家居艺术,体现其不凡的艺术修养,使设计与艺术潮流无处不在。
电视柜的门板特别挑选了贝壳定制饰面,配以几何感十足的金色拉手,极具个性的材质对比,融于精致浪漫前卫的客厅氛围。
这是当时在比对材质小样。
这是在现场核对与确认每一个细节。
设计师正在摆场调整
设计师正在摆场调整
设计师正在摆场调整
这是我们的设计方案完成稿之一。由此可以看出本案的落地性和完成度极高!
餐厅中不同材料的运用和叠加,弧线背复古餐椅与圆形天然水晶吊灯相呼应,圆餐桌上的酒具仿佛在等待
party
的开始,极具情调。
也许你在很多欧洲古典电影会看到这样的镜头:女主人公伯爵夫人身着欧式古典纱裙,一步一步从楼梯走下,那一刻简直是美得令人窒息。我们把电影这一幕镜头停留在这副定制油画上。
在设计中,找到最能表达他们过往故事的情节,通过一个空间,一个角落,一个器物。每当有客人到来时,主人有酒且有故事。
料理是一场原地的旅行,谁不眷恋一茶一饭的光辉
厨有女初长成
带着烤箱践行梦想
闲时,一杯茶,一本书,一曲琴弦拨弄人生几何,守得红尘流年潺潺。
茶养壶,壶养茶,砂养人,人养砂,清茶静心,一壶冲古意,千秋有同心。
主卧中,色彩有着明快的间奏,阳橙色与和各层次的木色经典搭配,点缀着富有质感的金色,以简洁的线条分割空间,麻质的壁布色调沉稳和富有肌理,映衬一丝低调的涵雅。挺括中带柔美,舒适在前,奢华在后。
通过柔和的色调来缓解一天的疲劳与压力,随意且轻松的氛围似乎让我们感受到女业主的精致中带点慵懒的可爱,脱下高跟鞋,踩着柔软的地毯,翻阅着最爱的读物,真实而自由。
灵感来自建筑轮廓的黑色灯罩水晶台灯,带来一种个性而不失优雅的感觉。整体氛围是舒适,丰富的金属细节创造了轻松自然而又活泼的氛围。
天然矿石鎏金镶边茶托是业主从欧洲淘来的哦~
择一闲暇午后,泡一壶茶,捧一本书,缩起脚尖慵懒的躺在沙发上。
沐浴,流水如丝,疲劳抛云天,享受沐浴的诗情画意
工人正在铺地板,我们正在讨论地板和大理石的收口问题。摄影记录
通过铜条来衔接大理石和地板,完工后细节棒棒哒
老人房的温文尔雅的米色调在深浅之间互相转换,偶有一抹灰蓝的点缀带给人宁静淡然的舒适感受,台灯金色的装饰纹样提亮了整个空间的活力。
分子魔豆灯龙飞凤舞,尽显姿态
Tiffany
少量的金属元素提升空间质感,加之在颜色上与之呼应的床席,赋予了原本静谧优雅的空间一丝喜悦和正能量。
Tiffany
蓝作为主要色彩,蓝色本身代表海洋与天空,带给人无穷的想象空间,而
Tiffany
蓝的优雅浪漫,更是为这个空间增添了优雅与浪漫气息,很符合公主的气质。
几何元素在视觉上延展空间。
当蓝色遇上白色,所营造出清凉优雅的舒适感,是其他色块相撞所不能达到一种境界。
淋浴房的这面墙运用了定制夹绢画玻璃,如影如幻。
钻石切割的浴室镜和浴室小物件,讲究、精致、细腻是对生活方式的一种宣告。
工地记录照片
三楼客卧。
墙纸的线性元素能有效拉伸空间感。
书房是男业主的天地,女业主只需橘红色的美人榻,偶尔在书卷里缱绻后小憩。使得富有"违和感"的戏剧性在这空间里显得很和谐。作为主色调的"樱桃红"与庄重而雅致的蓝绿"谱写着和谐旋律,不同层次或深或浅的蓝与绿色椅子自外而内导入,使得室内装置与材质建构的辞藻间,产生一种与经典华丽、摩登共鸣的对话形式。
蓝色的胜利天使摆件和戏剧性的绿椅子,将色彩玩转到底
OK
,顺着楼梯下来我们就到了负一层,首先映入眼帘的是酒吧区,地下室有智能控制的除湿器,所以阴凉干燥适合存酒。酒吧台的功能其实很丰富,无论是三俩好友相聚,还是夫妻对饮,都是惬意舒适的。
南面是小公主的舞蹈房,珊瑚粉在辅助光源的映衬下,仿佛是一处梦幻花园。
舞蹈房全景。
影音室上空流星划过,回忆约会时仰望星空浪漫的时光。或是听着古典音乐的二人世界,或是看着好莱坞大片的家庭互动,或是...
停车一进门,置身于一片茫茫的花海中,换上合脚的拖鞋,卸下一天的疲惫。
女业主一直对旋转楼梯情有独钟。原始户型的楼梯仅是上下楼的通道而已,它并不符合别墅豪宅该有的气场,也缺失了承上启下行云流水般地体验感。
有一种美叫旋转楼梯。从下往上看,楼梯的结构一圈一圈向上蔓延,仿似看不见尽头,如仙境般魔幻。似梦。
不同的角度才会诞生不同的风景,立于此处俯望,旋转楼梯好似盛开的花朵,优雅的绽放在室内空间里,永不熄灭。似醒。
壁龛内的胜利女神摆件近景
行于楼梯上,胜利女神仿佛变成了欧洲街道旁的雕塑,诉说着艺术之美。
客服
消息
收藏
下载
最近

















































































