查看完整案例


收藏

下载
引言
空间因为有光而有了生命
影子是光和空间谱写的旋律
弧线的应用,减少整体的体积感,左边的大柱子用镜面包裹,通过镜子与周围环境融合弱化了柱子的存在,流动的光与影,静谧内敛,很简单纯粹,却成了整条街最吸引人的存在。
光是有生命的,它让婆娑的树影落在外观上,仿佛跳动的精灵,不断变化。
柱子用长虹玻璃结合灯光做成岛台功能区
由于空间不大,整体动线其实是比较单一的,但我们同时照顾到店内与店外的展示面,有足够的位置展示产品,并作出了主次分类。
橱窗具有很特殊的商业价值,我们把他放在了临街的一面,与外观形成特殊对比之下,无论开车还是路过的行人,都能很快被吸引到。
在另外一面,我们也留了可以窥视一隅的“缝隙”,以此来勾起路人对于店内的好奇。
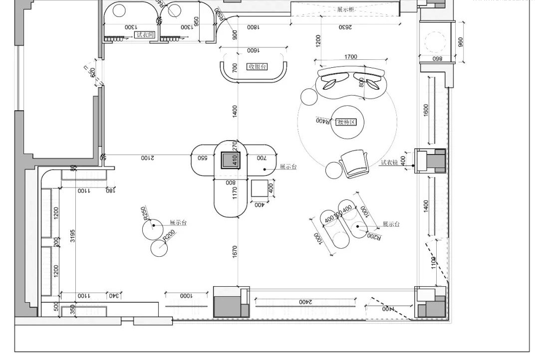
项目平面图
项目信息
Project Name | 项目名称
《 Warm Black》|《光与四季》
Project Type | 项目类别
Residential spaceProject | 商业空间
location | 项目地点
Guangdong Puning | 广东·普宁
Design Unit | 设计单位
ShenZhen ChenHaoPeng Interior Design Co.,Ltd. | 深圳市陈浩鹏室内设计事务所
Designer | 设计师
HP.Wang Xun.Linhong | 陈浩鹏、王珣、林宏
Construction plans | 施工图
Xuhaofeng.Zhang Zihao.Lai Jiawei. Huang Yuhua.Chen Jiemin | 许浩锋、张梓豪、赖嘉伟、黄玉华、陈洁敏
Construction unit | 施工单位
Good construction of Golden | 金手艺施工
handSoft fitting | 软装
HP | 陈浩鹏
Lighting design | 灯光
Hao Bin | 浩彬灯饰全案灯光设计
Photographer | 摄影师
Yu Rongli | 余荣力
DESIGNER
设计师介绍
陈浩鹏
中国室内设计师协会会员
深圳室内设计师协会会员
2019年CBDA设计奖商业空间银奖
2019年CBDA设计奖酒店空间铜奖
2020年深圳40周年纪念“设计100”十大住宅设计奖
2021年中国新生代设计精英大赛商业空间银奖
陈浩鹏(深圳)室内设计有限公司,由陈浩鹏先生创立于2017年6月,是一家集商业综合体、酒店空间、餐饮空间、办公空间、别墅、高端私宅于一体的综合设计机构。
设计是一门解决问题的学科,我们时常思考如何为甲方提供更适合的空间,而不是单纯追求效果。为甲方提供有效的设计服务,做出更好的全案管控是我们的愿景。
去风格化是我们的主张,多元化的尝试让我们对空间设计保持热情。在我看来,私宅不应该被风格所定义。比起风格,更重要的是这个空间是否适合您,我们更重视设计的本质,真正与使用者一起成长的空间。
客服
消息
收藏
下载
最近























