查看完整案例


收藏

下载
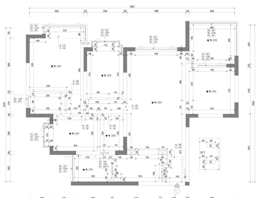
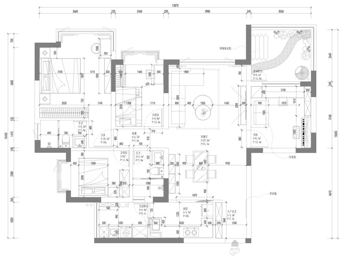
整体的格局上没有太大的改变,因为原始户型在整体格局上就比较完善,所以只是进行局部微调
在入户玄关处增加了玄关鞋柜的储物面积增强储物功能性,前期沟通下来我和屋主都一致觉得现在的房屋结构能够满足屋主一家的使用需求。
首先进门的入户玄关就确立了全屋的主基调,墙面油漆的浅蓝色能让人进入比较放松的状态,地面的水磨石地砖让玄关区更加有设计感
全身镜能够让屋主在出门前整理好仪容,大幅的鞋柜合理分区增强收纳的功能性
从玄关进来是客餐厅,首先看客厅,在玄关区域延伸过来的蓝色乳胶漆承担了客厅墙面装饰的任务,它的出现让客厅的色彩不再单调;地面采用温润的木地板作为材料,它不像瓷砖那般冰冷
沙发背景采用小幅不对称挂画的方式作为装点,配合深色的沙发形成色彩反差的美感,抱枕又能起到点缀的效果
北欧风格的空间中,自然采光显得十分重要,作为本案这种低楼层的空间来说透过窗口有这种采光量十分难得,外面的树木郁郁葱葱绿意盎然让人心情不自觉就变得很好
单边吊顶在放置了中央空调的同时,结合其他三边的单眼皮吊顶也在视觉上保存了客厅的层高,视野上不显得压抑,空间感更加好
和屋主拍个合照吧!祝福你俩以后越来越幸福,生活更加愉快!其实装修也没有你想象的那么多困难,每次在对接工程觉得累的时候我就想起屋主们满意和喜悦的表情,再累也值得呀!
客厅电视柜和之前看到的沙发一样,都选用了高脚的款式,一方面方便日常扫地机器人清扫,另一反面也显得空间更加轻盈,顶面的洗墙射灯布置能通过灯光制造出空间的层次感
餐厅空间中木制元素和植物的装点成为主调,胡桃木的餐桌椅和储物的餐边矮柜透露出更加复古的气息,三扇的推拉门能够很好的保证进出厨房的空间
其实从玄关进入客厅的位置我们做了地面材质的拼接处理,用过金属收边线将水磨石瓷砖和木地板的拼接处进行收口,美观又有质感
客餐厅一体的空间往往更有沟通互动感,在设计的时候我们往往会强调家人沟通互动,特别是有小孩的家庭,客餐厅的一体会在细节上增加家庭的互动性
在夜间用餐的时候通过一盏吊灯,可以很好的烘托出整个餐厅空间的氛围,利用餐桌和餐边斗柜营造出的年代感,甚至让我有种梦回八九十年代的感觉
厨房地面贴哑光地砖,考虑防滑的同时也更显质感,墙面则是能让空间更加轻松愉悦的小白砖,橱柜配色也是上浅下深和瓷砖一起形成上下配色的关系,7字橱柜在很大程度上满足了厨房操作和储物的需求
主卧室背景通过上下乳胶漆分色结合白色的单眼皮吊顶来营造设计感,衣柜通过巧妙的设计避开了床头柜位置打不开的情况,床头的吊灯和壁灯也能增强空间氛围感和方便日常阅读,我发现屋主酷爱不对称的设计,挂画也挂到一边,个性十足啊!
在黑暗的环境下,床头吊灯简直就是烘托环境氛围的利器,通过和环境营造出的明暗对比来强调重点照明区域的灯光
公区卫生间看似布置普通,实际上有很多小心思,干湿分离就不提了大家都懂,在卫生间淋浴区的墙上安装了自动装置,整合了沐浴露、洗发露、护发素的三合一皂液盒,洗澡再也不用大瓶小瓶放满窗台了。
主卧卫生间则更注重设计感,墙面地面通铺水磨石瓷砖,浴室柜的镜后灯也能很好营造氛围,淋浴区做长条形隐藏式下水口整体性更好,后期在挂上ins风的浴帘,妥妥的设计模板!
儿童房的设计上,我们以绿色为色调,相比大白墙能更好的让孩子产生对色彩的感知;放置带围挡的小床来保障孩子休息时候的安全
门后这面墙刷半高的黑板漆,释放孩子爱玩的天性,能够在这里用粉笔涂写然后随意擦除,宽敞的空间适合孩子在这里游玩和休息
长达2米有余的书桌能供2人同时学习和临时办公,定制柜子把钢琴的位置也考虑进去了,书房空间外面就是阳台和小区的绿化在学习之余抬头便可以借绿化来放松视觉
书房小贴士:
①书柜就要结合一般书籍的尺寸来设计,一般情况下30~35cm的深度即可
②需要考虑承重性能,为了避免压弯层板左右竖版的跨度一般在80cm左右,层板的厚度最小为1.5cm,跨度在120cm的可以选择2.5cm厚度的
③书籍较多的可以做成一门到顶的柜子,不建议做太多开放式的层板,会积灰增加清洁难度
通过百叶帘的开关能够很好的营造适合学习的重点照明氛围,通过桌面学习台灯的亮度就足以让整个空间达到舒适的学习环境标准
客服
消息
收藏
下载
最近



























