查看完整案例


收藏

下载
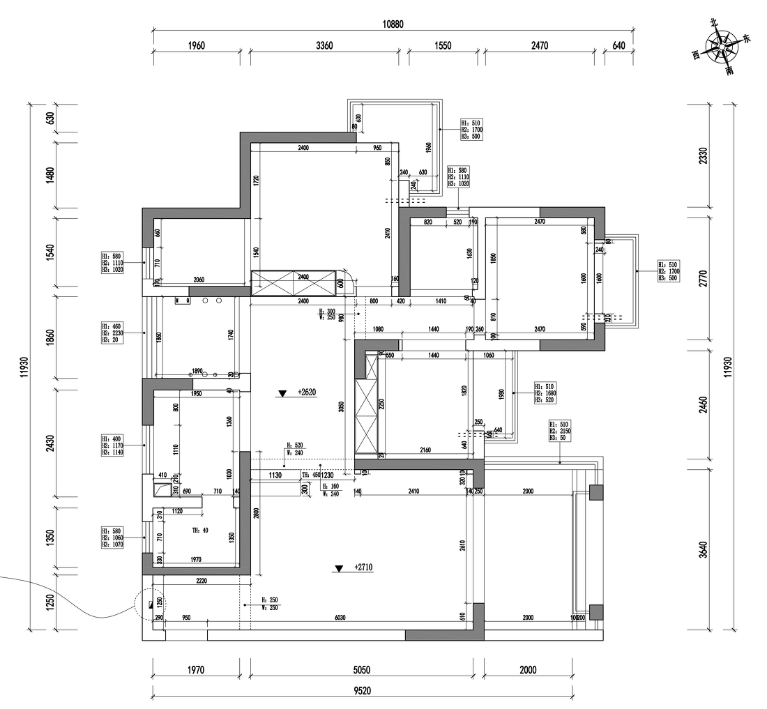
原始户型在餐厅和客厅之间有错层的楼梯,存在的问题有:餐厅没什么采光基本属于暗室,阳台也占用了很大的空间,厨房空间不足
①拆除客厅到阳台的推拉门,把阳台纳入进来,增加采光面积和室内活动面积
②次卧室、厨房、生活阳台的门改换成推拉门增加餐厅采光
③厨房外扩,充分利用现有空间
入户玄关设计了通顶鞋柜,造型非常简约,采用了无拉手按压弹出式的设计
下方留空方便放鞋,中部留空可以放置装饰和日常携带的钥匙皮包等等
玄关望向客厅,在拆除了阳台推拉门+外部封窗后大量的光线涌入室内,为居家提供了更多的采光
电视背景和收纳相结合,柜体在注重收纳的同时也考虑到日常清理的便利性,大部分柜体都有做柜门,同时也做了无拉手设计
电视下方的隔层能储藏很多屋主的游戏机、手办等物品
客厅区域吊顶采用无主灯设计,磁吸轨道灯+防眩筒灯都提供了不错的照明方式,台灯和台阶下的暗藏灯带提供了更多的辅助照明
客厅的落地灯散发出温润的灯光,平时在沙发上看书也是不错的休闲方式
墙边增加了一组木格栅配合落地的艺术画作增添了沙发背景的艺术感
整体客厅给人的感觉都非常大气,简洁的意式风格给人带来舒适的居住体验
客餐厅中间虽然有台阶,但是通过地面、墙面、顶面的设计视觉延伸给人感觉
装修过的应该都知道,最难能可贵的是我们在装修完还能一起坐下聊聊过程中的趣事
阳台在封窗纳入室内后作为亲子活动区,可以放置小女孩的玩具和绘本,日常在这里陪伴孩子十分温馨
小女孩的书桌和椅子很可爱~
在得到了次卧室、厨房、生活阳台的采光加持之后,餐厅不再是一个暗室
餐厅虽然位于家里的中心,但是丝毫不影响大家日常的走动
屋主偏爱现代意式的简约风,餐厅不做过多的装饰,吊灯、餐桌、矮柜形成了餐厅的一景
厨房在扩容之后空间变得十分宽敞
从冰箱-水槽-灶台的动线也十分明朗,加上合理的规划储物分区和厨房电器,让你爱上做饭!
为了不让空间显得压抑,我们采用了明装筒灯的无主灯设计,结合床头的吊灯作为整体的主光源
床头吊灯的暖光给冷色调的卧室增添了一丝暖意
主卧床头背景采用木饰面板和暗藏灯带的组合,提升整体艺术气息的同时也烘托了整个环境的氛围
灰色的衣柜门板+黑玻门板,门板和吊顶齐平,设计落地的难点往往体现在细节收口上。
利用墙体的折角区域设计出台盆区,陶瓷一体盆方便打理
内卫做干湿分离,哑光的瓷砖相比亮光的砖面更加有质感,淋浴区做拉槽石材防滑同时兼具质感!
儿童房是为家里小女儿未来成长定制的空间,粉色可爱的上下小床,下面将是她玩耍的小天地
书房是屋主用来读书藏书的空间,偶尔在这里小憩一下
客服
消息
收藏
下载
最近






























