查看完整案例


收藏

下载
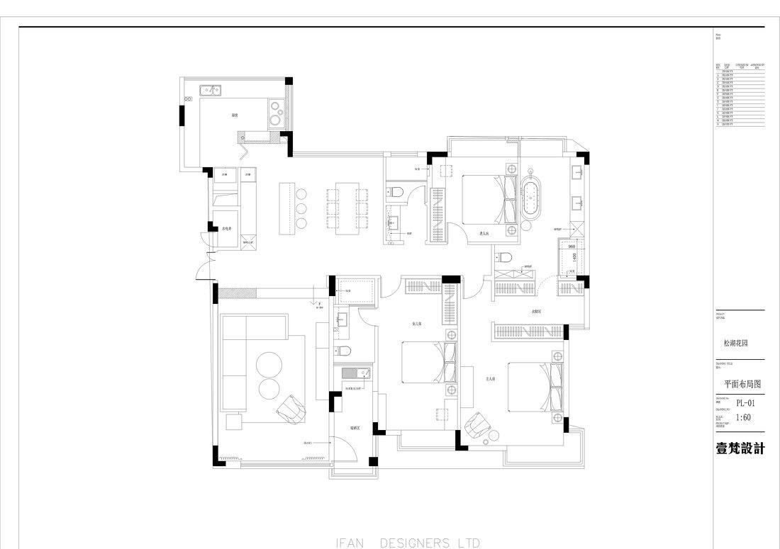
Ⅰ 将生活阳台改成中厨,扩大中厨面积,让烹饪更加得心应手;
Ⅱ 设计开放式西厨,增设冰箱摆放位置,提高鸡肋空间利用率;
Ⅲ 拓宽晾晒区空间,将墙体往女儿房卫生间移,提高生活便利性;
Ⅳ 改变女儿房开门位置,扩大卫生间面积,并借用主卧空间,设计衣柜;
Ⅴ 老人房“借”用卧室2空间,增设衣柜位置,解决收纳问题;
Ⅵ 主卧合并卧室2,将卧室2设计成大浴室,原来的主卫设计为步入式衣帽间。
以叠加不同的灰色调为底色,空间高级又有格调;开放无拘的尺度与格局,视野通透而敞亮,摒弃繁杂的装饰,以实用简约为主,家整洁而明亮,一笔一线,勾勒出随性而自由的模样。
叠堆可变形的几何立体壁灯,富含创意又灵活自由,既点题又吸睛。
叠堆可变形的几何立体壁灯,富含创意又灵活自由,既点题又吸睛。
将欧式大理石线条垂直拼贴,使古典元素变成现代感的“波浪”造型。电视背景的几个垂直的欧式线条,将背景墙面竖向等分,细看有欧式元素的雅致,整体却又是现代利落的简约风格。古典元素变成了这幅“现代画”的笔触。
优化空间格局,将生活阳台改成中厨,不仅扩大中厨面积,更让烹饪更加得心应手。
对于烹饪爱好者来说,同时拥有中西厨是一件非常快乐的事情。原中厨位置设计成开放式西厨空间,与餐厅互动更紧密;岛台的设计也实现了自由多样的用餐空间;
相较于客厅空间的轻柔,用餐空间更偏向低调奢华,金铜吊灯、丝绒座椅、大理石台面、高级的橄榄绿,恰到好处的精致,营造出低调温柔优雅的质感;
绚丽多彩的油画如四月花海,橄榄绿的座椅如一簇一簇草丛,就这样把春天搬进家里。
洗手台外置的客卫,大大提高生活便利性;木纹砖拼接水磨石瓷砖的墙面,与客厅的哑光岩板相呼应;
女儿房的卫生间墙壁铺满小而精致的粉色、白色瓷砖,淡雅又清新宜人,让人心情变得轻快愉悦;较为磨旧的地砖不仅防滑,也迎合了淡雅又不单调的调性。
女儿房的卫生间墙壁铺满小而精致的粉色、白色瓷砖,淡雅又清新宜人,让人心情变得轻快愉悦;较为磨旧的地砖不仅防滑,也迎合了淡雅又不单调的调性。
女儿房的卫生间墙壁铺满小而精致的粉色、白色瓷砖,淡雅又清新宜人,让人心情变得轻快愉悦;较为磨旧的地砖不仅防滑,也迎合了淡雅又不单调的调性。
简单纯净的卧室空间,选用低饱和度的莫兰迪色系,搭配低调奢华的金属、丝绒材质,塑造空间层次、温柔高级之感,同时给小主人带来安静。
客卧“借”用卧室2空间,增设衣柜位置,解决收纳问题;对称的设计平衡空间,内心也归于平和,更有助于老人家睡眠。
推门而入,清新的绿色犹如一缕春风,吹散笼罩身心的烦恼,轻松自在;
经典复古千鸟格单人椅搭配玫瑰金落地灯,小角落也显得从容不迫,优雅大方,关上房门,锁住浪漫,享受闲寂。
超大的衣帽间全部做成黑框+原木板的组合,简约又整齐,满足洁癖患者理工男业主的愿望。
客服
消息
收藏
下载
最近





























