查看完整案例


收藏

下载
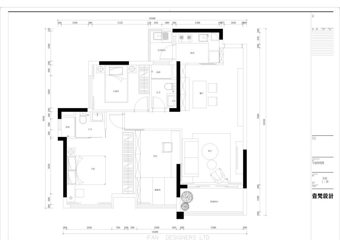
本案在空间改造上将书房的墙体拆除与客厅合并,并设计木质吊门,可以自由灵活的切换空间状态(封闭与开放);软装设计上主要以浅色系(木色和白色)为主,精挑细选的自然舒适的材质填满空间,打造一个宽阔通透、简约自然的居住空间。
设计师优化空间格局,拆除书房墙体后,大限度的引入自然光,客厅的视觉面积立刻变大,使得原来小三房有“大宅”的效果,没有多余的装饰,简约流畅的线条游走整屋,客厅内外通透、干净明朗。
借着客厅光线的穿透,餐厅在白天不开灯时也一如既往地明媚自然;卡座的设计节省空间又美观,搭配舒适的坐垫,营造出一种轻松惬意的用餐氛围。
在室内设计中能够自由灵活的使用某个空间,大概是最人性化的设计之一。书房平时是业主学习、工作、休闲的空间,榻榻米上可以惬意地读书、泡茶、发呆……,关上吊门时,这里是客卧也是独自的小天地,打开吊门时又能与家人互动。
富有创意的儿童房,不仅能给小孩一个有趣的小窝,还能激发孩子的潜能、散发思维,极具教育意义。
明亮的主卧以静谧的灰色为主色调,从踏进时起身体的所有感官便已感受到宁静、舒适。
▲次卫
▲主卫
活跃的几何瓷砖为干净素雅的卫生间添加时尚、精致的表情。
绿色与白色搭配,就像在拥抱大自然。
客服
消息
收藏
下载
最近




























