查看完整案例


收藏

下载
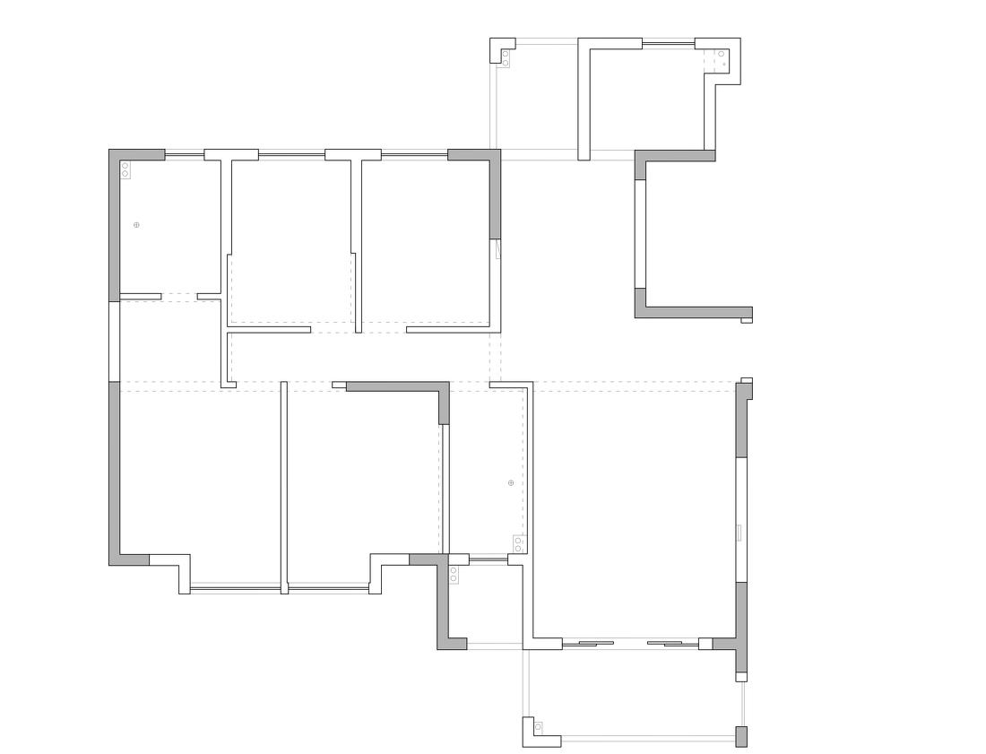
方案中最大的改动是将北面采光较差的两间客房墙体拆除,融合过道空间后形成宽敞方正的空间体量,同时通光量也大幅提升,我们将之与客厅位置的进行转换,很大程度上改变了原有空间关系和生活动线。此外,通过主次卧的转换为空间增设了独立的储物间,北阳台内包设置中西厨分区,公卫干湿分区等一系列措施将改善型住宅的配置进一步提升。
方案中最大的改动是将北面采光较差的两间客房墙体拆除,融合过道空间后形成宽敞方正的空间体量,同时通光量也大幅提升,我们将之与客厅位置的进行转换,很大程度上改变了原有空间关系和生活动线。此外,通过主次卧的转换为空间增设了独立的储物间,北阳台内包设置中西厨分区,公卫干湿分区等一系列措施将改善型住宅的配置进一步提升。
材质丰富的对立面,与之相反,是大面积的留白,为视线停留做缓和,也增强了空间对比度突出主次分明。
材质丰富的对立面,与之相反,是大面积的留白,为视线停留做缓和,也增强了空间对比度突出主次分明。
空间为表达简洁明快的视觉,材质的使用上追求连贯而分明。墙面温润的石材纹理,顶面天然的胡桃木纹,划分了空间主要的两个块面。
孩子的成长变化非常复杂,家具摆放也时常发生变化,在儿童房的设计上没有过多的去设计主题,而充足的阳光便是最好的颜色。
原有承重墙体阻隔了客、餐厅,产生了生硬的空间关系。为满足屋主的轻度办公使用,将书房置于客厅一侧,将水平面向餐桌延伸,起到整合多样功能、模糊空间界限的作用。
从客厅望去,视线停留之处,立面层叠了各个功能区。
以白色和木色两种简单的材质来表达整个卧室空间的安静、平和,加以强烈的线条感来进一步刻画细节轮廓。
以白色和木色两种简单的材质来表达整个卧室空间的安静、平和,加以强烈的线条感来进一步刻画细节轮廓。
原有承重墙体阻隔了客、餐厅,产生了生硬的空间关系。为满足屋主的轻度办公使用,将书房置于客厅一侧,将水平面向餐桌延伸,起到整合多样功能、模糊空间界限的作用。
以白色和木色两种简单的材质来表达整个卧室空间的安静、平和,加以强烈的线条感来进一步刻画细节轮廓。
原北面阳台被改造成西厨空间,承接了餐厅和厨房之间空间过渡,原本较小的厨房空间也得到极大的扩展。
孩子的成长变化非常复杂,家具摆放也时常发生变化,在儿童房的设计上没有过多的去设计主题,而充足的阳光便是最好的颜色。
客、餐、厨各区域交互连通却又不相互干扰。
空间为表达简洁明快的视觉,材质的使用上追求连贯而分明。墙面温润的石材纹理,顶面天然的胡桃木纹,划分了空间主要的两个块面。
客、餐、厨各区域交互连通却又不相互干扰。
客服
消息
收藏
下载
最近






























