知末
知末
创作上传
VIP
收藏下载
登录 | 注册有礼
知末案例   /   家装空间   /   样板间

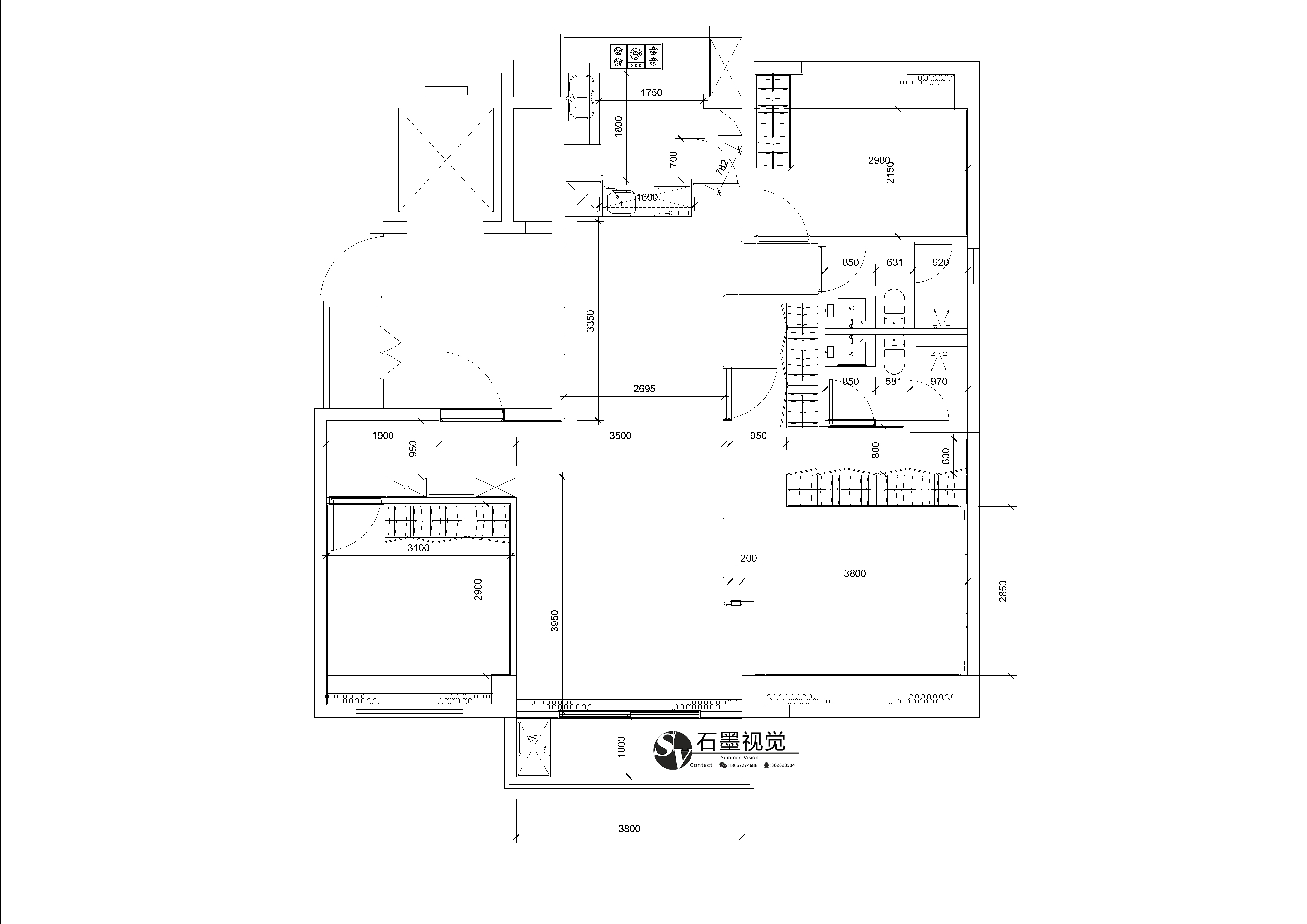
府系赛道 B115 户型 | 现代简约家居典范

2020/09/28 21:09:48
查看完整案例
微信扫一扫
收藏
下载
《居住在中国2020中国样板间设计大赛》入围作品
府系赛道 B115户型
方案设计及可视化表现均为自己完成
使用软件:AutoCAD2020、3Dsmax2020、Vray5.0、Photoshop
府系赛道 B115 户型 | 现代简约家居典范-4
府系赛道 B115 户型 | 现代简约家居典范-5
府系赛道 B115 户型 | 现代简约家居典范-6
府系赛道 B115 户型 | 现代简约家居典范-7
府系赛道 B115 户型 | 现代简约家居典范-8
府系赛道 B115 户型 | 现代简约家居典范-9
府系赛道 B115 户型 | 现代简约家居典范-10
府系赛道 B115 户型 | 现代简约家居典范-11
府系赛道 B115 户型 | 现代简约家居典范-12
府系赛道 B115 户型 | 现代简约家居典范-13
府系赛道 B115 户型 | 现代简约家居典范-14
府系赛道 B115 户型 | 现代简约家居典范-15
府系赛道 B115 户型 | 现代简约家居典范-16
南京喵熊网络科技有限公司 苏ICP备18050492号-4知末 © 2018—2020 . All photos and trademark graphics are copyrighted by their owners.增值电信业务经营许可证(ICP)苏B2-20201444苏公网安备 32011302321234号
客服
消息
收藏
下载
最近