查看完整案例


收藏

下载
项目名称:“克莱因蓝”
设计单位:杭州民舍制作室内设计工作室
设计团队:贺赞辉 陈佳峰 孙紫益
项目地址:杭州富春江畔
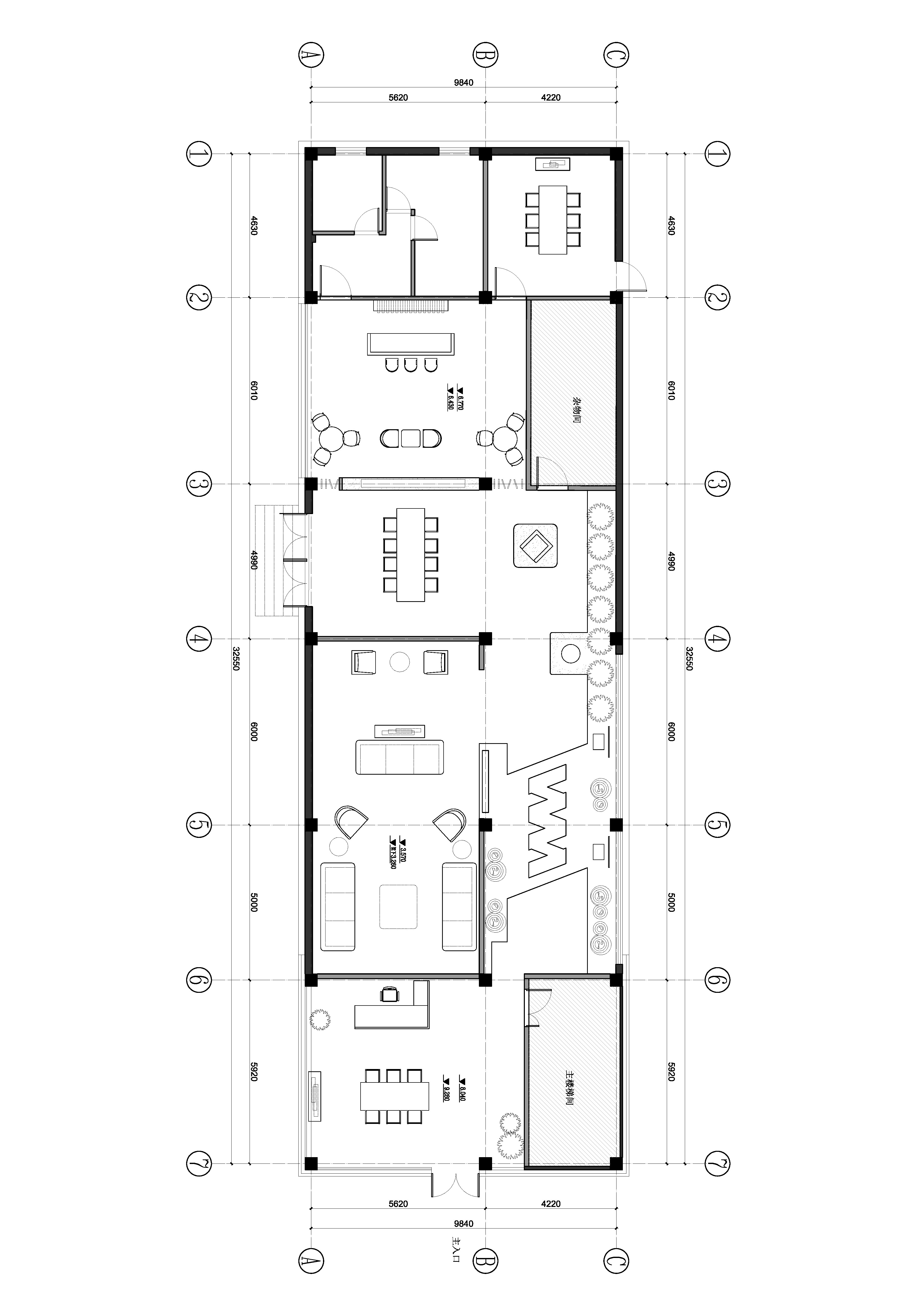
项目面积:300㎡
商业空间设计
“克莱因蓝”
蓝色象征着天空 / 海洋 / 无界限 / 抽象
蓝色没有维度,和其他颜色不同,它超越了维度
项目坐落于杭州 · 富春江畔
空间以克莱因蓝为颜色元素 ,也是空间的气质引现,它是沉稳且富于沉淀的,它决定了空间最重要的氛围感和气质属性。利用此空间原有层高结构优势,将蓝色延伸至顶部,传递一种被蓝色环绕且放松的情绪,希望体验者对于空间可以感到舒适.
项目名称:“克莱因蓝”<br>设计单位:杭州民舍制作室内设计工作室<br>设计团队:贺赞辉 陈佳峰 孙紫益<br>项目地址:杭州富春江畔<br>项目面积:300㎡<br>商业空间设计<br><br>“克莱因蓝”<br>蓝色象征着天空 / 海洋 / 无界限 / 抽象<br>蓝色没有维度,和其他颜色不同,它超越了维度<br>项目坐落于杭州 · 富春江畔<br>空间以克莱因蓝为颜色元素 ,也是空间的气质引现,它是沉稳且富于沉淀的,它决定了空间最重要的氛围感和气质属性。利用此空间原有层高结构优势,将蓝色延伸至顶部,传递一种被蓝色环绕且放松的情绪,希望体验者对于空间可以感到舒适.
客服
消息
收藏
下载
最近




























