查看完整案例


收藏

下载
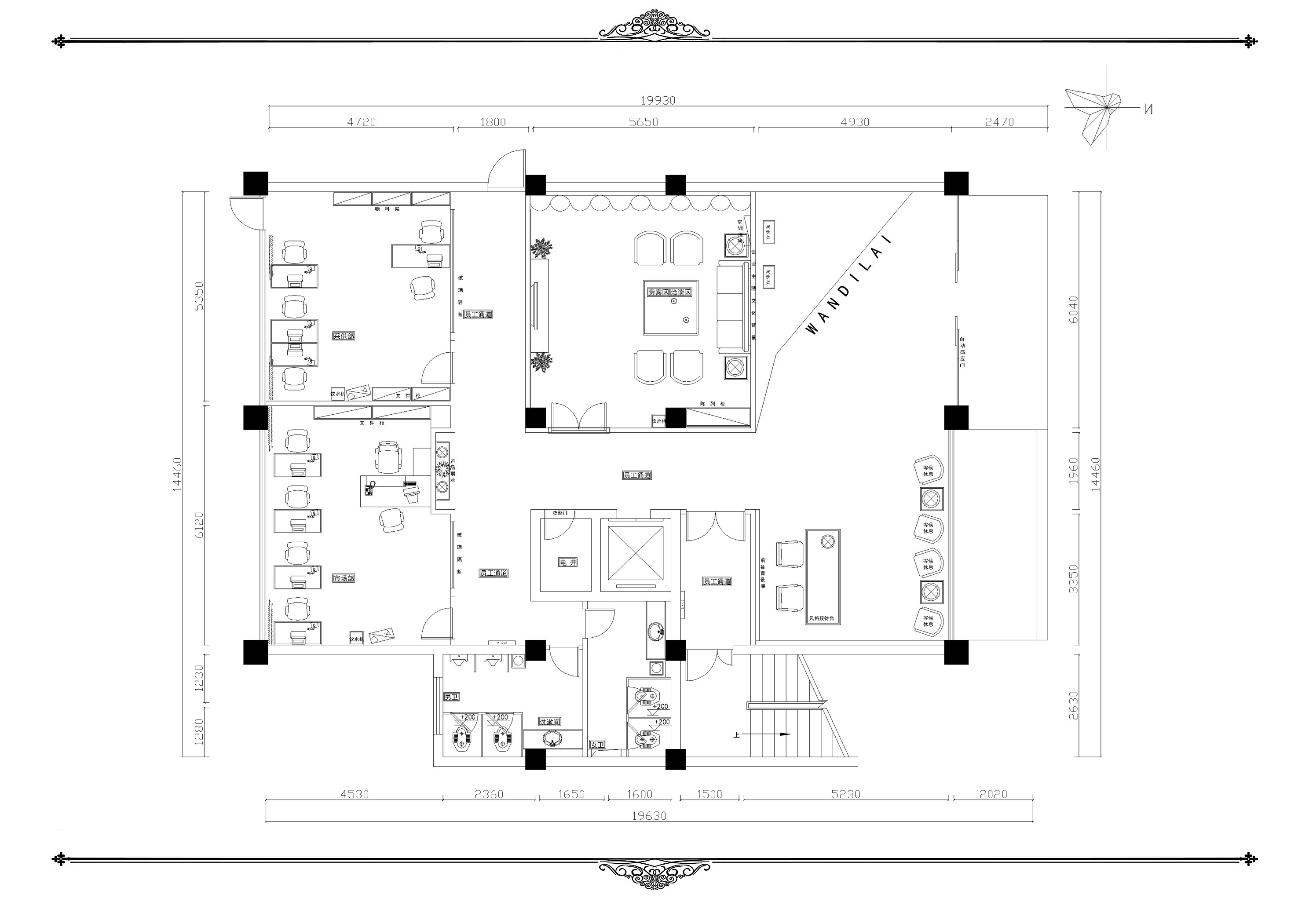
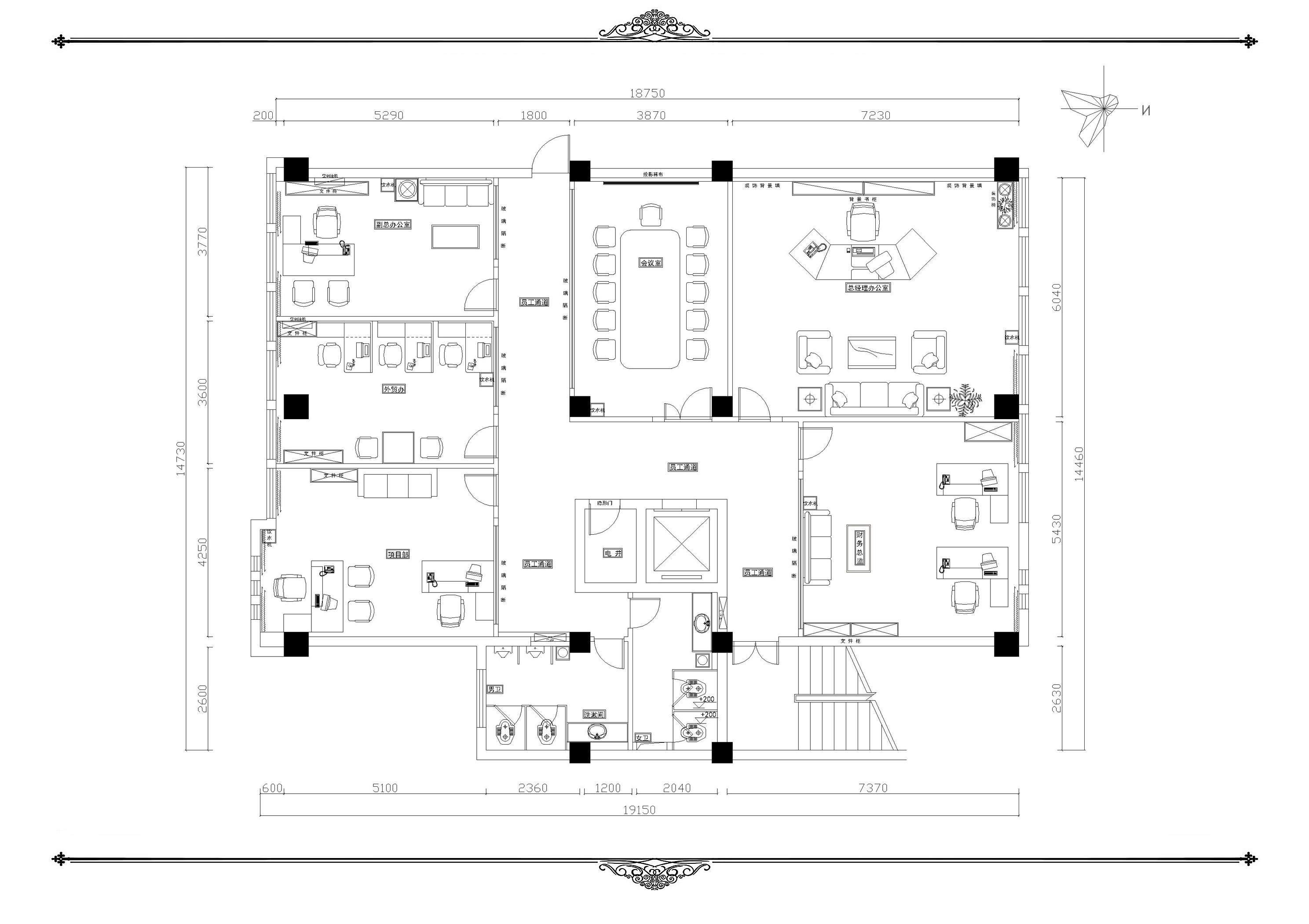
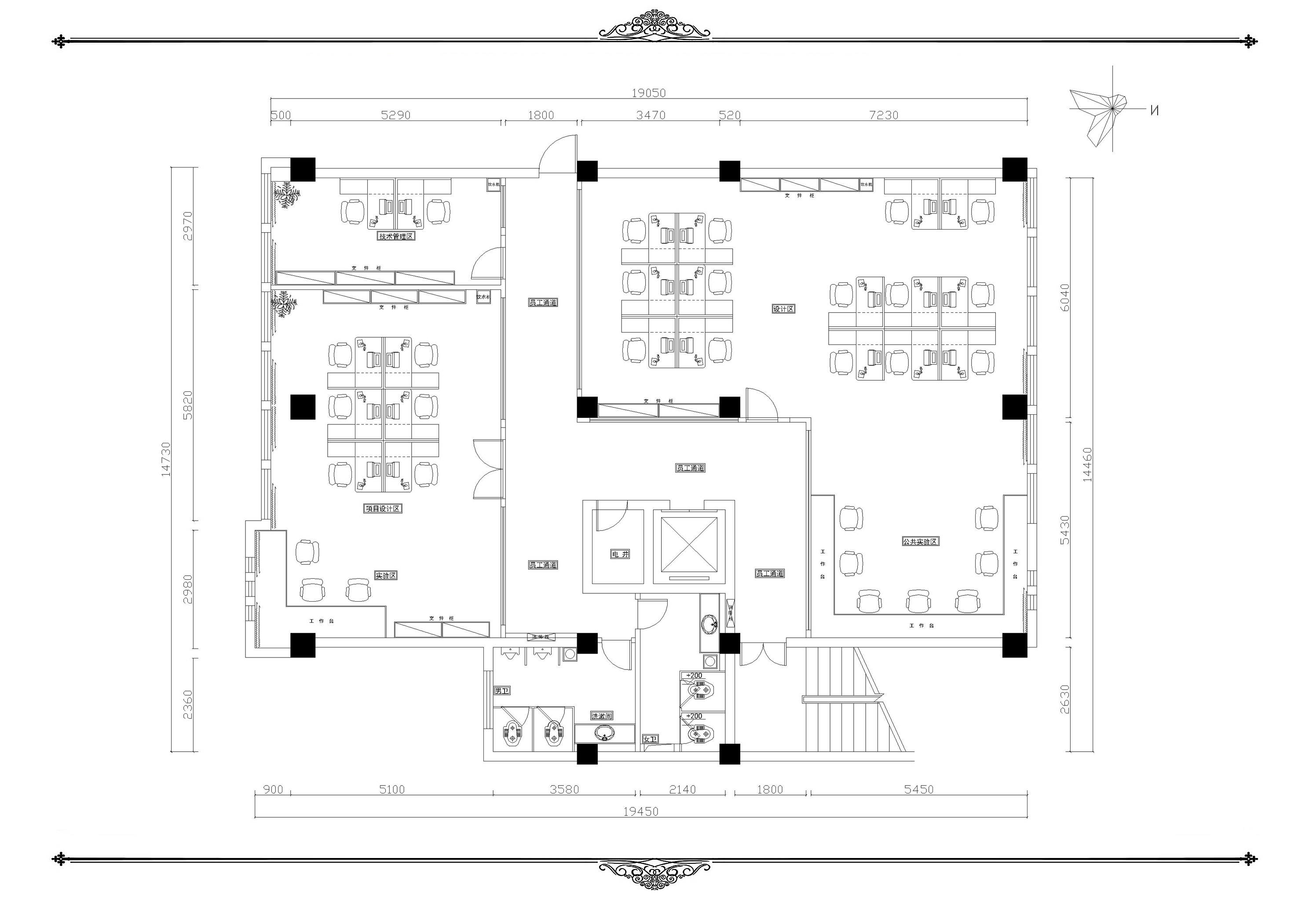
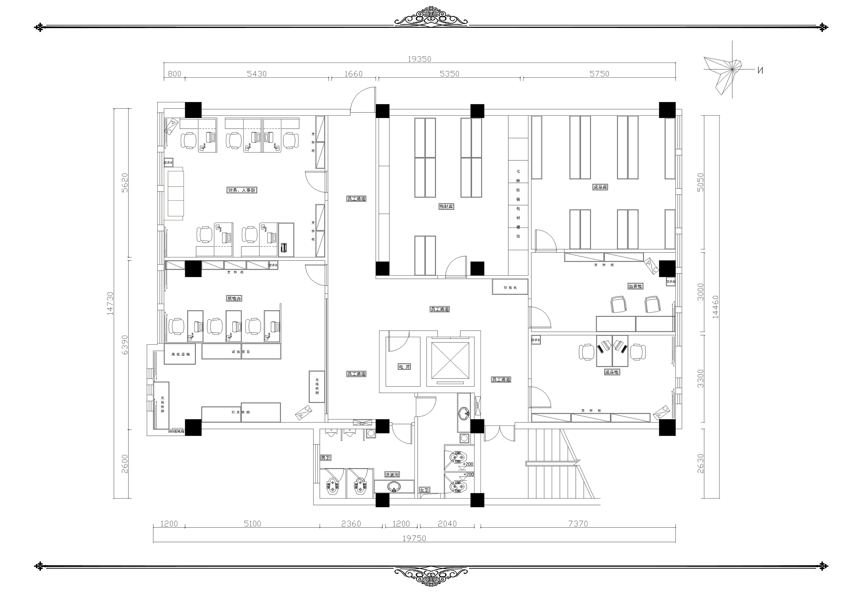
本案为办公楼的内部空间设计,办公空间设计因为其办公的性质不同,设计需求有其特殊性。
随着社会的发展,综合性办公空间的设计理念之源“人性化设计”,着重体现工作与生活的有机融合。“个性化设计”在企业整体形象上其独特的个性直接影响着每一个员工的行为举止,个性化办公空间非常重要的一点就是展现企业形象,满足企业精神和发展理念。随着各行业分工的进一步细化,各种新概念的办公空间还会不断出现。
员工的工作环境必须要有创意和人性化特点,以缓解他们的工作压力和激发他们的工作热情。
客服
消息
收藏
下载
最近



















