查看完整案例

收藏

下载
▲ 建成 / Finished product
▲ 在建 / construction
重建新生,凤凰涅槃!
“生长”就是除了生命本身,过去和未来都可以被囊括其中,好的不好的都将一并接受,并重新启程。
Rebuild a new life, the Phoenix Nirvana!
"Growth" means that in addition to life itself, both the past and the future can be included, and the good and the bad will be accepted together and the journey will start again.
项目信息
项目名称 | 艺枫木作
Project Name | Yifeng Kisaku
项目面积 | 255 平方米
Project Area | 255m²
设计公司 | 上海仓石设计有限公司
Designed by | Shanghai Cangshi Design Co., Ltd.
主创设计 | 邵龙
Master designer | Long Shao (Leo)
参与设计 | 林柯群
Participate Designer | Kequn Lin(Lynn)
项目类型 | 展示空间
Project Type | Exhibition space
灯光设计 | 第壹舍灯光
Light Design | First house lighting
摄影 | 金选民 丛林
Photographer | Xuanmin jin ,Jungle
▏涅槃重生
Nirvana rebirth
▲ 入口 / Entrance
现代主义大师柯布西耶,注重设计中的秩序,他提倡在建筑设计之中,从纵深排列的平面中,创造出一个可以走进去的延伸空间幻像,达到一种通透感。而室内设计中的通透感也源于这种从二维到三维的空间转化。
本案外建筑关系错落有致,多种组合拼接、相互呼应,空间层次有主有次,节奏分明。通透的落地玻璃是最为重要的设计元素,简简单单的软装陈列,将室内的产品充分展现。
Le Corbusier, a master of modernism, pays attention to the order in design. He advocates creating an extended space illusion that can be walked in from the planes arranged in depth in architectural design to achieve a sense of transparency. The transparency in interior design also stems from this spatial transformation from two-dimensional to three-dimensional.
▲ 动画演示 / Animation presentation
原有空间,墙体繁多,布局分散,动线关系凌乱而复杂,严重影响了展示体验。空间尚停留在二维的平面上,板滞而缺乏层次。设计师巧妙的将空间中不可拆除的墙体重新做了空间梳理,改变了原有的失序状态,最终确立了立体而通透的空间秩序。
The carpets and artistic singles spliced by Huang Lan place the entertainment space, and respond with curved walls to make the overall space more fashionable. The art chair is deliberately not in pairs, the asymmetrical arrangement and the blue contrast bring the finishing touch.
▲ 街景 / Street view
借助项目本身的品牌定位和特点,以及外界周边所获得的直觉和信息,设计师重新理解和构建新的存在。对于本案,并不单单是对废墟和新生的重新考量,亦有重塑和构架。生存、生长、新生,将当下的发展观念和功能需求置入其中,重新组织布局,功能业态、新生关系、打造一个全新的感官空间。
With the help of the project& s own brand positioning and characteristics, as well as the intuition and information obtained from the outside world, the designer re-understands and constructs a new existence. For this case, it is not only a reconsideration of ruins and new life, but also a remodeling and structure. To survive, grow, and rebirth, put the current development concepts and functional requirements into it, reorganize the layout, functional formats, and new relationships to create a brand new sensory space.
▲ 一楼区域 / Area 1F
一楼办公、洽谈、休息、茶歇,选取长卷打开的表达方式,照顾了实用功能的实现后,并兼顾审美情趣。
On the first floor, for office, negotiation, rest, and tea breaks, the expression of opening the long scroll is selected, taking care of the realization of practical functions and taking into account the aesthetic appeal.
▲ 软装美陈 / Beautify the display
非淡泊无以明志,非宁静无以致远。设计从返璞归真的东方哲学出发,将日本文化传统中的木、竹、枯山水等元素融入空间,寻求人与自然融合的诗意状态。置身其中,自然而然放下身心,平静的感受当下,一草一木、一杯一盏所蕴含的包容与承载。
The designer used bamboo weaving to create an art installation tailored to the space. The real intention is to wrap the showcase in it, which not only fulfills the functional requirements of the exhibition in the space, but also subtly resolves the abruptness of the display.
▲ 原木配色 / Log colour
空间选用原木配色,表述画幅的纯粹及诗意,在提供情感归属和文化认同的空间内,适当留白,来丰富空间的想象力,既温柔又有趣。
The space uses raw wood color and light to express the purity and poetry of the picture. In the space that provides emotional belonging and cultural identity, appropriate white space is used to enrich the imagination of the space, which is gentle and interesting.
▲ 软装美陈 / Beautify the display
会心不在远,得趣不在多,人文气息与艺术气息的交织,展现出空间的生活美学以及器物情境之美。
The knowing is not far away, and there is not much fun. The interweaving of humanistic and artistic flavors shows the aesthetics of life in the space and the beauty of the situation of utensils.
▲ 空间美陈 / Space Beauty
光衬着景为空间蒙上了一层滤镜,古今碰撞的同时,又呼应了场域感,“孤舟蓑笠翁,独钓寒江雪”。室内造景的每一处陈设,都有各自的生命。
The light sets off the scene and casts a filter on the space. While the ancient and modern collide, it also echoes the sense of place, "Lonely boat, fishing alone, cold river and snow." Every furnishing in the indoor landscaping has its own life.
▲ 自然融合 / Natural breath
被植物细细切分的光,投射在空间的物体上,光影感体现出专注和立体,凸显了其秀美的一面,光线穿过玻璃照射在墙体及地面上,每一束光,都极具生命力,不同时间,不同力度,不同感觉。
The light divided by plants is projected on objects in space. The sense of light and shadow reflects the focus and three-dimensionality, highlighting its beautiful side. The light passes through the glass and shines on the wall and the ground. Each beam of light is very vitality, different time, different intensity, different feeling.
▲ 自然融合 / Natural breath
“昔去雪如花,今来花似雪”,时间的流驶之美被古人说得格外动人。
而展示空间的白描,也恰恰总是着以艺术之笔,于神思之外,生出曼妙灵花。
Far from the hustle and bustle of the city, the space returns to the essence of elegance and tranquility. Deconstructing the inner needs of modern people is like the purity of light, enjoying the ideal life of comfort and slow rhythm, and purifying the soul.
▲ 线性建筑 / Linear building
通过材质的变幻构筑当代设计语境,软装的陈列分界空间的自然属性,过道或座席、线与形、虚与实,都是边界弹性而模糊的存在。
The contemporary design context is constructed through the change of materials. The natural attributes of the soft-furnished display space, the aisle or seats, the line and the shape, the virtual and the real, are all flexible and fuzzy boundaries.
▲ 茶艺 / Tea art
材质的运用极其考究,贯穿连续的项目特性,加之统一的“弱对比”色调,将亲近自然的精神融于雅致和谐的整体氛围,赋予从容安定的空间感受。
The use of materials is extremely sophisticated, running through the characteristics of the continuous project, combined with the unified "weak contrast" tone, blending the spirit of being close to nature into the elegant and harmonious overall atmosphere, giving a calm and stable space experience.
▲ 东方美学 / Oriental aesthetics
踱步而入,深色的胡桃木与橡木作为空间的主色调,纯净中潜藏无限生机,正是东方美学强调的平衡意境。
Walking in, the dark walnut and oak are the main colors of the space, and there is infinite vitality hidden in the purity, which is the balanced mood emphasized by the oriental aesthetics.
▲ 软装美陈 / Beautify the display
软装会为了空间牺牲装饰,硬装也会为软装舍弃许多技巧,但我们依旧会在力所能及的范围内,尽可能地保留对万物的平衡,让空间饶有趣味的不只是突如其来的感觉,更包含高层次的体会和理解。当这种思想浓缩,就成为了美学。
Soft decoration will sacrifice decoration for space, and hard decoration will abandon many techniques for soft decoration. However, we will still keep the balance of everything as much as possible within our ability. What makes the space interesting is not just the sudden feeling. It also contains high-level experience and understanding. When this kind of thought is condensed, it becomes aesthetics.
▲ 光线 / Light line
在享受光线的极致体验,以及空间情感带来乐趣的同时,从不同的界面,色彩,材质,氛围去传递美,以此来抵御世俗的缺憾。
While enjoying the ultimate experience of light and the fun of space emotions, the beauty is conveyed from different interfaces, colors, materials, and atmospheres, so as to resist worldly shortcomings.
▲ 二楼茶水区 / Tea area 2F
二楼入口茶水区,门洞处采用镜面不锈钢,通过材料自身的特性,营造出一种空间时机上的转换和切换。沿着楼梯拾级而上,楼道干净清雅,脚下的灯光伴君而行。
At the entrance tea area on the second floor, mirror stainless steel is used at the door opening, and through the characteristics of the material itself, a kind of spatial timing conversion and switching are created. Climbing up the stairs, the corridor is clean and elegant, and the lights at your feet accompany you.
▏线条的秩序与自由
Order and freedom of lines
▲ 二楼入口 / Entrance 2F
行至二楼,透过木栅背景的结构更能让人心生遐想,“山有木兮木有枝”,借用传统来打造出更具现代感的空间结构,把一切世俗隔绝在外。
Going to the second floor, through the structure of the wooden fence background, it is more convincing to people’s imagination. "Mountains have trees and trees have branches." Borrowing traditions to create a more modern spatial structure, isolating all the worldly.
▲ 二楼入口 / Entrance 2F
行至二楼,透过木栅背景的结构更能让人心生遐想,“山有木兮木有枝”,借用传统来打造出更具现代感的空间结构,把一切世俗隔绝在外。
Going to the second floor, through the structure of the wooden fence background, it is more convincing to people’s imagination. "Mountains have trees and trees have branches." Borrowing traditions to create a more modern spatial structure, isolating all the worldly.
▲ 顶面造型 / Wall modeling
空间的顶面造型延伸至墙面,层级依次降落。墙面层叠的灯光呼应红色的镀膜玻璃,给整个空间带来了艺术性灵动性。内敛有序的灯光,用自己的语言诠释着空间的可能性,无论是自然光还是灯光,都因为光的光明、希望寓意,而成为设计中最值得期待的部分。
The shape of the top surface of the space extends to the wall, and the levels descend sequentially. The stacked lights on the wall echo the red coated glass, bringing artistic agility to the entire space. The restrained and orderly lighting uses its own language to interpret the possibilities of the space. Whether it is natural light or lighting, it has become the most anticipated part of the design because of the brightness of light and the meaning of hope.
▲ 茶室 / Tea room
茶室通过立柱做了结构和视觉上的穿插,模拟出一个身处丛林的时空感,去表现独特又新颖的视觉体验。结合内部空间的功能特点,让人犹如时光的剪影,穿梭在这片丛林当中。纵深通透的茶室并非乏味得一览无余,而是在“似断非断”、“似隔非隔”的张力下独具魅力。
The tea room is structured and visually interspersed through the columns, simulating a sense of time and space in the jungle, to express a unique and novel visual experience. Combined with the functional characteristics of the internal space, it makes people travel through the jungle like the silhouette of time. The deep and transparent living room is not boring and unobstructed, but has a unique charm under the tension of "similarly broken but not broken" and "likely separated but not separated".
▲ 空间结构 / Spatial structure
设计师将传统材料重新定义,去建立一个人与环境的对话窗口。空间是可以灵活的,松散的,随性的,多变的,利用空间本身的结构特点做空间装置语言,体现其独特的精神气质,乍看不知何为,细细寻味,意远留长。
The designer redefines traditional materials to create a dialogue window between humans and the environment. Space can be flexible, loose, casual, and changeable. Using the structural characteristics of the space itself as the language of space installations, it reflects its unique spiritual temperament.
▲ 休息区 / Rest area
空间营造出静逸的休憩场景,去感受时间的生命力,在微弱和谐的对比中,细数每一寸斑驳的界面在时光里蔓延,去抒写恬静温暖的空间氛围,过去、未来、现在,连成一线,安静和谐。
这是一个值得静候的空间,在观点开放而具弹性的空间架构中,不仅当前的成果能表述观点品味,更期待随着时间的推移,在材质的呼吸演化过程中,抑或随生活、见闻所积累的个人变化中,能够覆写、包容未来的经验,寻得平静与心性的自由。
The space creates a peaceful rest scene, to feel the vitality of time, in the weak and harmonious contrast, every inch of mottled interface spreads in time, to express the peaceful and warm atmosphere of the space, the past, the future, the present are connected together First line, quiet and harmonious.
This is a space worth waiting for. In the open and flexible space structure of views, not only the current results can express the views and tastes, I can overwrite and tolerate future experiences, and find peace and freedom of mind.
▲ 选材展示 / Selection display
在本案的设计与实施过程中,为了最好地糅合东方哲学与生活美学,设计师经过反复推敲,精益求精,对体量、尺度、光线、色彩、肌理及空间的特性需求等进行精准的洞察及综合把握,延续仓石设计一贯强调的简约美学逻辑,并力求在当代的建筑秩序中寻求自由的精神传达。
In the process of designing and implementing this case, in order to best blend Eastern philosophy and life aesthetics, the designer, after repeated scrutiny, strives for perfection, and has precise insights into volume, scale, light, color, texture, and space characteristics. Comprehensively grasp, continue the simple aesthetic logic that Cangshi design has always emphasized, and strive to seek free spiritual transmission in the contemporary architectural order.
设计图纸
Design drawings
▲ 门头结构 / Facade structure
▲ 门头全貌 / Facade
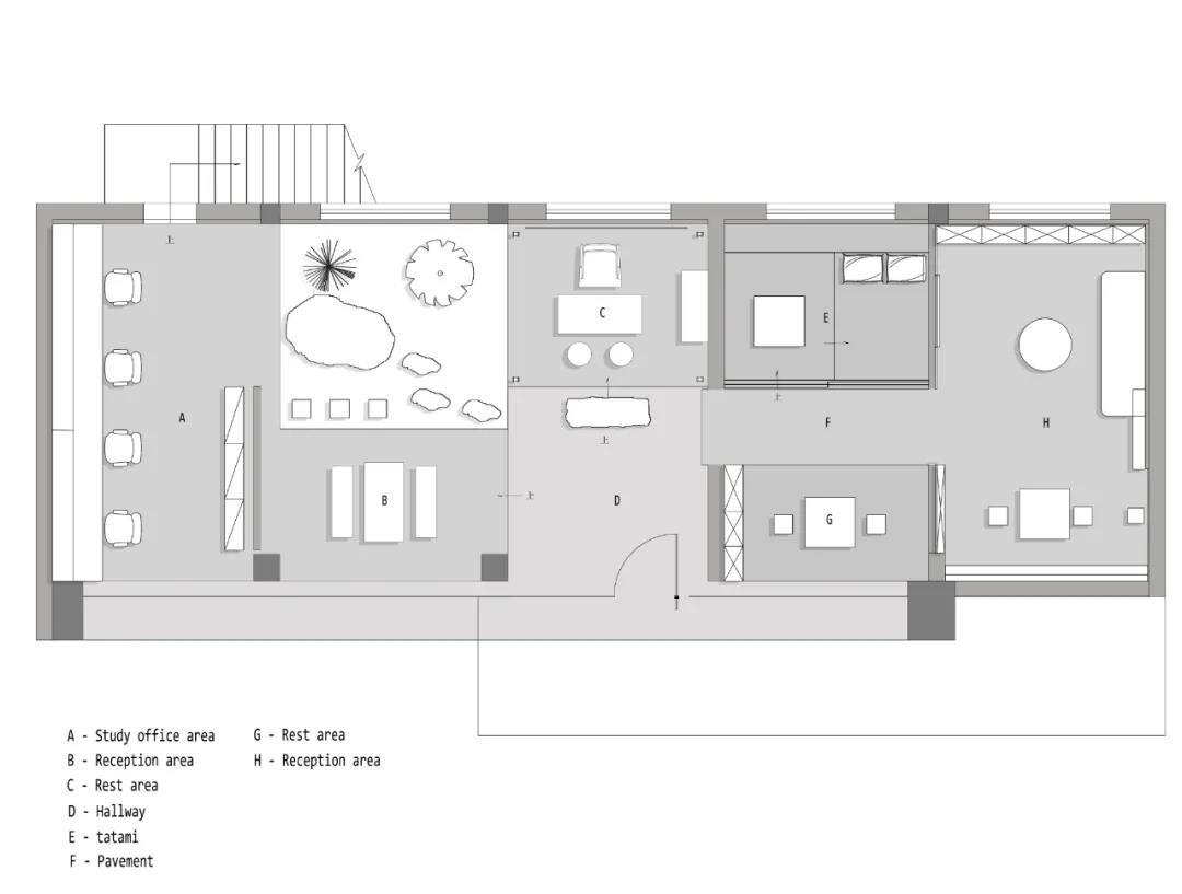
▲ 一层平面/ First floor
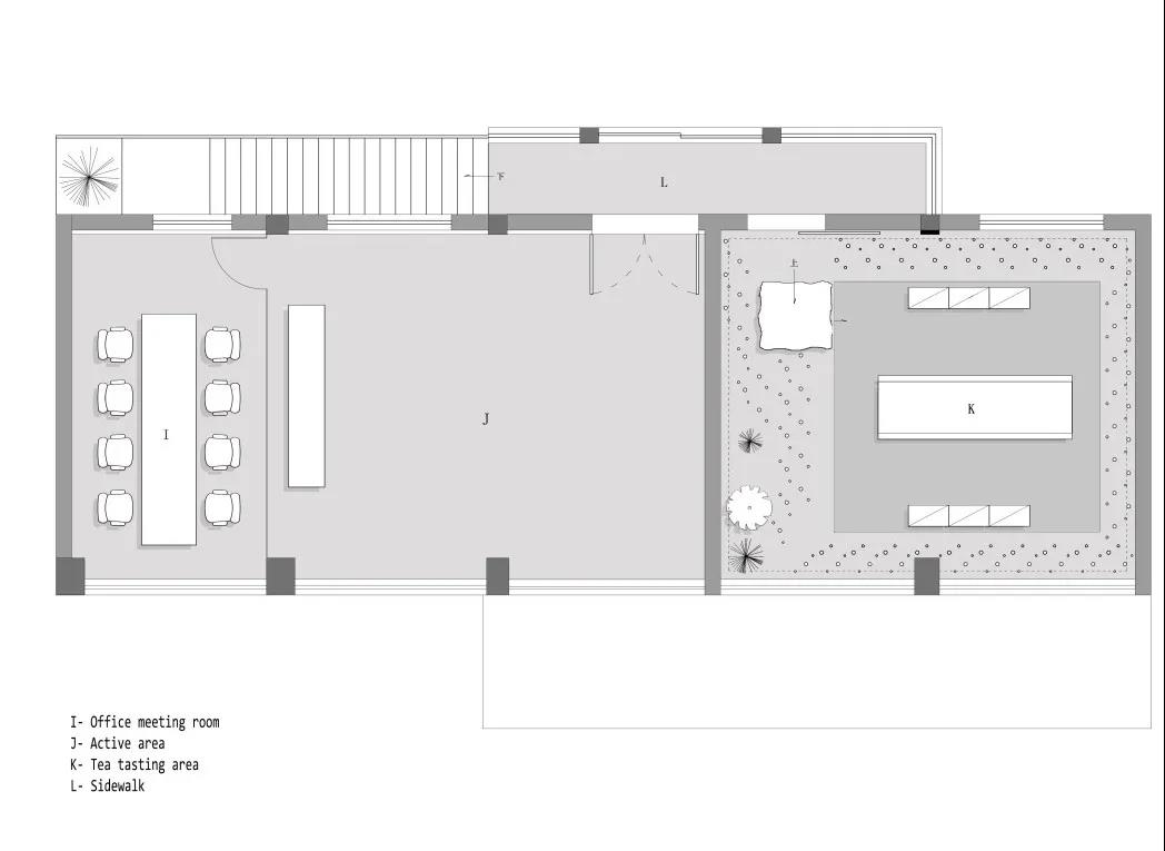
▲ 二楼平面 / Second floor
品牌创始人 / 邵龙
Founder / Long Shao (Leo)
殊荣 | Award
2019-最佳设计 BEST100 大奖
2019-IAI 全球设计大奖-商业空间优秀奖
2018-APDC 亚太室内设计精英邀请赛 会所大奖
2018-IDS 商业空间第一名 优胜奖
2018-香港 APDC 亚太室内设计师大赛会所最高奖 至尊奖
2018-华鼎奖商业空间最高奖 金钻奖
2018-红棉奖 商业空间大奖
2018-金堂奖 休闲娱乐 优秀奖
2018-艾特奖 南京赛区 优秀奖
2018-《新设榜》50*50 年度创新设计师
作品刊登《发现设计》,上海《精品家居》等媒体平台
资质 | Qualifications
亚洲装饰协会注册会员
中国建筑装饰协会高级室内建筑师
以上作品版权归仓石国际所有,我们乐于分享所有精彩创意,同时敬请您于我们一同保护知识产权。
常州:常州市/新北区/晋陵北路/天誉城市花园 25/2809
2809,Tianyu City Garden25, Jinling North Road, Xinbei District, Changzhou City
客服
消息
收藏
下载
最近

































































