查看完整案例


收藏

下载
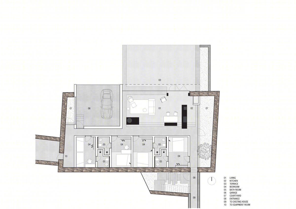
项目坐落在北京的北侧,长城脚下。项目现有结构最初建于上世纪中叶, 作为地下仓库使用,储藏该村出产的水果。仓库 完全由天然石材建造, 体积规模为21x11x4 米的长方形。业主在用地南侧拥有一栋房子, 地形高于本项目,可以俯瞰仓库屋顶。设计的委托范围是将该仓库改造成4间卧室的住宅,也可以被认为是旧宅的扩建。
仓库朝北,部分低于周围地形,部分嵌入地形。为了给新住宅创造一个宜居的环境,需要针对这些特殊条件提出一个解决方案。设计策略主要集中在主要方向: 增强储物空间和石墙的特征,将可能多的光线引入室内空间,并保留客户现有住宅的全景。
现有的天然石墙在很大程度上被保留, 设计充分暴露天然石墙以体现其自身不可取代的存在感,新的抛光混凝土结构和白色抹灰内墙与其产生强烈对比。只有在北侧, 原本的天然石墙被一个大的玻璃幕墙所取代, 土壤被拆除, 与主立面对应地形成了一个宽敞的露台, 延长了起居室与用餐区的长度。同样在北侧, 车库是一个木材包裹的体量,被镶嵌在整体的体量里。
在开放式起居室, 定制的开放式壁炉和黑色厨房柜台形成了2个视觉焦点, 而车库的木材完成面柔软了起居室的背景。
新屋顶的设计最大限度地引进了自然光。现有的屋顶被两个混凝土楼板取代, 这两个混凝土水平向的元素与石墙相互独立, 被设置在两个不同的高度。北部较低的屋顶覆盖客厅和车库, 同时也是屋顶露台。它短于现有的石墙长度, 因此房子的东部和西部自然形成了两个花园。这些花园从不同的角度增加了光线的自然。
南部较高的屋顶向西转移, 允许通过通往较低屋顶的露台, 避免向东院投射阴影。屋顶在不同的高度上对周边梯田式的地形做出回应。两个屋顶之间的缝隙使更多的自然光进入建筑的中心部分, 并在温暖的季节改善自然通风。
较高的屋顶下,南部是卧室。由于他们高高的天花板和高耸的窗户, 我们试图形成让使用者能产生享受沉思的感觉。每间客房均设有私人浴室。卧室由一条通道连接, 通过三个台阶与相邻的生活区相连。
在卧室的旁边,项目的东南角,一条隧道连接着新房子和现有的住宅建筑。由于新旧住宅被一条区间道路分隔开,因此这条连接新旧住宅的通道被转移到了地下。因此, 从业主现有住宅的露台上可以看到两个漂浮的绿色屋顶以及长城。
项目名称:长城下的住宅
设计单位:木答答木
设计团队:Margret Domko, Momo Andrea Destro, Amirlin Sunderiya
家具与地毯:Hay, Kvadrat
厨房岛台:北京巢居美家具有限公司
摄影:Jonathan Leijonhufvud
客服
消息
收藏
下载
最近






































