查看完整案例


收藏

下载

翻译
Architect:SAKUMAESHIMA
Location:Maebashi City, Gunma Prefecture, Japan
Project Year:2020
Category:Offices
This office is located on the fourth floor of a building that used to be a department store in front of Maebashi Station in Gunma Prefecture.
This building was typical of a department store with few windows to let in natural light and a deep floor plan. At first, I had the impression that the building was in disrepair as an environment for people to work and live in.
Kenta Hasegawa
However, at the same time, we thought that by accepting this building type and making use of the unique space of a department store. So we could build an office that was unique to CLIMB.
Kenta Hasegawa
This new work environment was a project that aimed to define teamwork, security, workplace flexibility, and well-being for the organization with a reasonable budget. There, it was important to create a flexible working space to express CLIMB's values and identity in a comfortable interior.
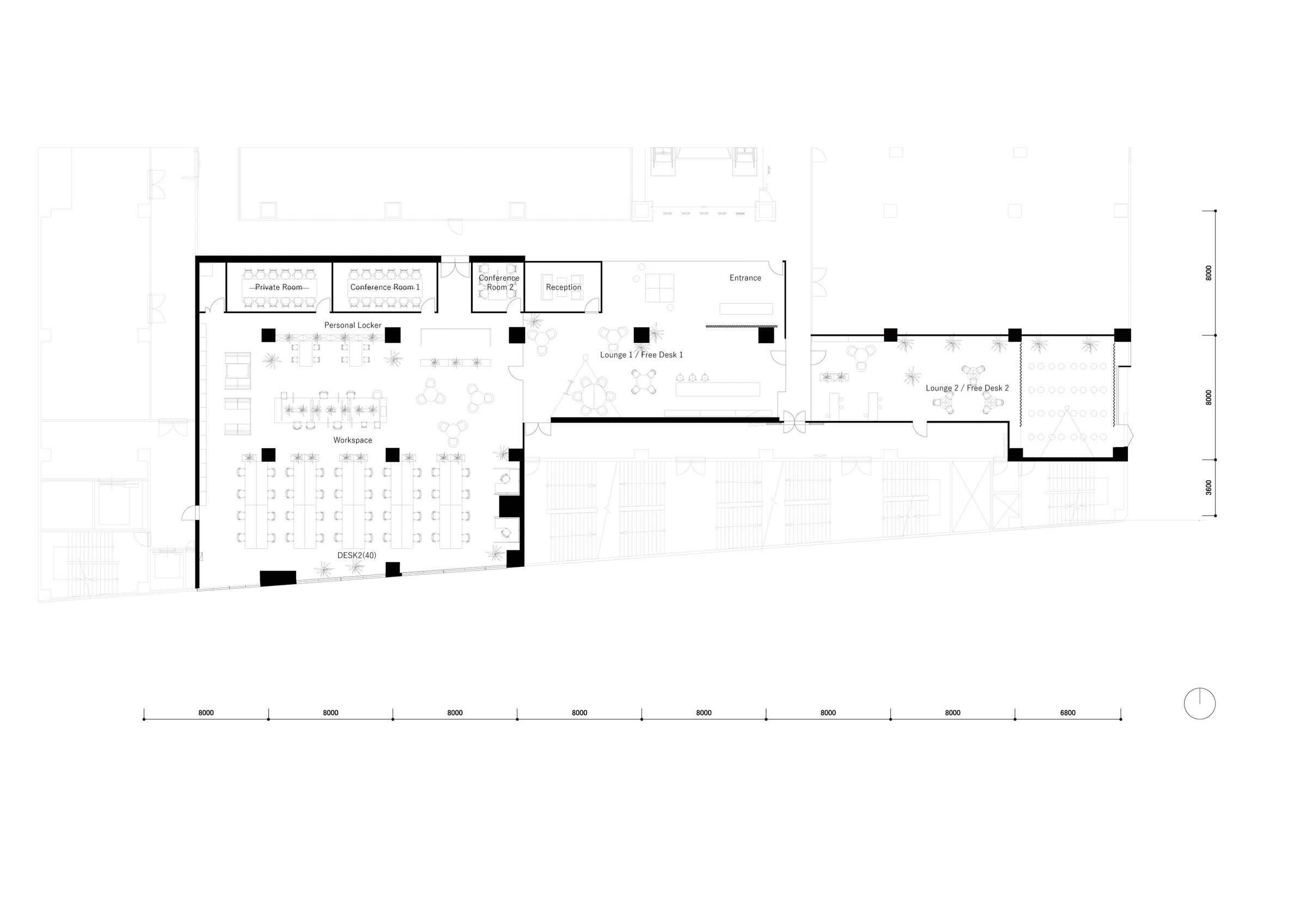
The layout zoning started with the creation of a single street in the center of the 60m long and narrow planning area.
Kenta Hasegawa
That main street is such as the "backbone" of the project, and the various spaces that emerge from it can be freely selected according to their work needs.
For the interior, the surface of the existing concrete frame is treated with a silver finish to balance the surroundings, and the ceiling is exposed as a skeleton for the equipment network, which is important for the office environment.
Kenta Hasegawa
This creates flexibility in the office environment and can be easily relocated with open cable channels and poles. Also this material is durable and easy to maintain.
In this project, we are attracted to the fact that we can use creative design solutions to contribute to the regeneration of the city and the community, instead of tearing down buildings and rebuilding them.
These design solutions allow us to unpack dedicated spaces that have fallen into disuse due to gaps in society in a different way.
Kenta Hasegawa
Kenta Hasegawa
Caption
Caption
Caption
Material Used :
1. COMANY INC. - Steel Partition
2. Panasonic - XLX460SENT
3. Panasonic - XLX459DEN
4. Panasonic - NNF26914C
▼项目更多图片
客服
消息
收藏
下载
最近









































