查看完整案例


收藏

下载
家的样板
不仅是调性的表达
更多的是要感受陪伴
因为陪伴
才会让空间显得格外温暖与珍贵
一个有包融感的居所
可以容纳生活的百种可能
可以有人间烟火的温度感
也可以有孤傲高冷的艺术范儿
我们在这空间里希望找寻一种语言诠释当下社会人们的生活状态和价值态度。所有艺术装饰的陈列并不是空洞的存在,而是现代人一种温暖的抚慰和情感释放的出口。在快节奏都市生活中,仍保有对生活的品味和创造力,以及那一份生活的初心。
在地下层设计的思考中,我们选择用温暖的木,一扫地下阴冷的常规印象。整层将居住者的兴趣功能铺开,迎合了当下人对紧张生活背后渴望片刻安宁的诉求。虽然生活充满了未知数,但总用一些小事能让人开心。这次设计旅程,希望展现家的多种可能性,更深层次的,希望呈现一个有爱的空间,有感受,有温度,有场景,有灵魂。
过去与未来在此相遇纯净的配色与未来感的线条处理给人预见之感
用开放陈列的方式将生活的艺术展现出来音乐的元素赋予生活律动就如空间也有其结构音乐、艺术、手作在同一个层面上又相对独立用相同的材料符号将不同的功能区域串联达到视觉上的和谐统一每一个微小的日常皆律动着对生活的热爱
知识和学识是你的安全感
在时光里积聚的力量
如精心打磨的珠串
也如列级酒庄出来的珍酿
爱生活,不是因为习惯了生活
而是因为习惯了爱
有爱的生活
正等着有趣的灵魂去享用
地下层我们摒弃了会客厅的概念,把大空间留给了亲子的区域。想表达让空间回归生活该有的状态,生活的理想状态应该是各自忙碌,有时想念,珍惜一朝一夕的时间,给生活,给家人一个专属的空间。
大开阔的落地窗如同一个通透的飞船驾驶舱突破观者视野局限的同时最大限度提升其艺术表现张力我在宇宙翱翔爸爸在我的身后为我护航成长的路上有你的陪伴一路乘风破浪飞向远方
大开阔的落地窗如同一个通透的飞船驾驶舱突破观者视野局限的同时最大限度提升其艺术表现张力
人们为了寻找想要的东西满世界奔跑回到家找到了艺术化的方式赋予空间全新的角度推演日常的多种可能空间带着生活的印记对生活的记录每一个人的空间都自有含义
这是一首蓝调音乐有其独特的语言和丰富的层次带着对现代人生活的思考出繁入静让生活回归应有的态度让生活回归居住的本质
餐厅的气质是带着四季的味道沉淀下来的人生保持自我的棱角记录着全家人共同的记忆空间时间交错着爱予彼此历久弥新
你始终保持着初心坚持自己家的梦想一步步都在实现愿你永远对生活充满热情时光于你一如从前热爱与创造有爱的家人有爱的自己
PEACE&LOVE
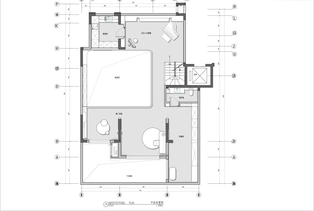
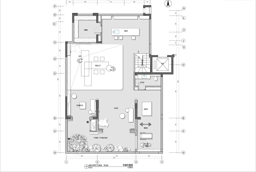
平面图
项目名称:金地江山风华。样板房
项目地址:长春
设计面积:445㎡
完成时间:2020 年 8 月
室内设计机构:曜年设计
设计团队:阚琦、费宇迪、唐红斌、解超
甲方团队:于海艳、郝家晨
摄 影:张嗣烨
N.DESIGN 曜年空间设计公司,由一支富有激情的年轻团队组建而成,是一个成长型和思考型的公司,具有很好的专业素质和服务意识,专业从事售楼处、样板房、会所等空间整体设计。是一家以空间设计及软装服务为主体的现代主流设计机构,为项目提供高品质的设计理念及专业化的设计服务,提供前瞻性且合理性创意方案,强调文化、品质的完美融合。
客服
消息
收藏
下载
最近









































