查看完整案例


收藏

下载
项目名称:日本Mi-chan的甜点工坊
位置:日本
设计公司:ALTS DESIGN OFFICE
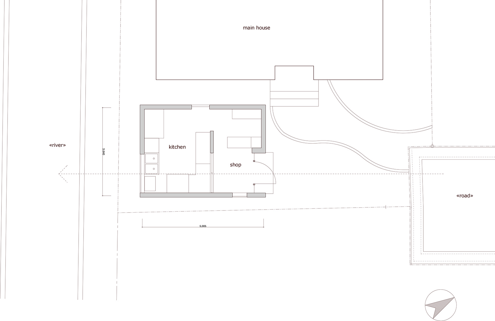
这座甜点工坊位于住宅区的一个16.5平方米的地块上。业主有一个12岁的患有精神障碍的女儿,她在甜点制作方面很有才华。该方案的设计旨在实现这位女孩拥有自己的店铺、用甜点为别人带来快乐的梦想。女孩从10岁起就开始自学糕点制作,并且有过经营流动餐车的经验。设计师的目标是为她打造一间温馨友好的甜品工坊,同时尽量将建造成本降至最低。建筑的一半以玻璃围合,为室内带来了良好的采光和通风,另一半则保持了私密性。室内外空间的无缝衔接为甜点工坊带来充满活力且具有吸引力的氛围。
日本Mi-chan的甜点工坊外部实景图
日本Mi-chan的甜点工坊内部实景图
日本Mi-chan的甜点工坊平面图
日本Mi-chan的甜点工坊立面图
客服
消息
收藏
下载
最近





















