查看完整案例


收藏

下载
项目名称:意大利筒仓空间修复
位置:意大利
设计公司:EnzoBerti
摄影师:Tobia Berti Photographer
筒仓空间是重建并修复建筑和增强特定文化遗产的一个有趣的例子。它一次通过Enzo Berti 设计师的眼睛,经验和个人风格对工业考古学的复兴。该项目始于2011年,于2013年完工,是技术先进建筑的完美典范。它不仅采用了符合节能和“生物相容性”需求的创新系统,也保留了建筑和地域的历史记忆。这两座存放和焚烧刨花的建筑最初代表了该建筑群的核心。修复工程包括将两座塔楼分成于过道相连的四层。空间在这样的方式的作用下填满“光叶片”和水镜。大窗户墙和全景屋顶使太空筒仓成为当代工业风景的完美典范。“筒仓空间-当代盒子”成为一种思想的锻造,营造出真正和谐的氛围。
意大利筒仓空间修复外部实景图
意大利筒仓空间修复外部夜景实景图
意大利筒仓空间修复内部实景图
意大利筒仓空间修复平面图
意大利筒仓空间修复剖面图
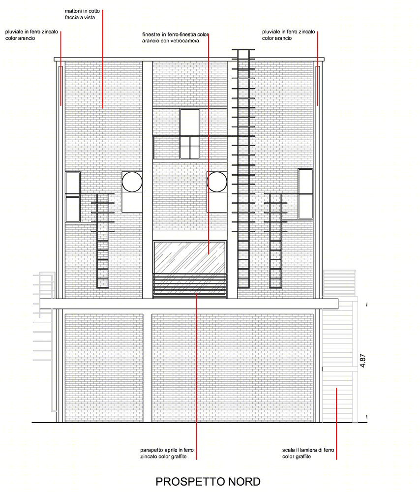
意大利筒仓空间修复立面图
客服
消息
收藏
下载
最近



















