查看完整案例


收藏

下载
艺术语境
艺术的伟大意义在于它能显示人的真正感情内心生活的奥秘和热情的世界——罗曼·罗兰△项目视频 1 空间梳理 Space carding
△中庭采光|摄影©视方摄影-- 翱翔
住宅和家庭的关系是一种适配并兼容拓展的关系,容纳着家庭成员的日常表情,且将伴随着时间延伸到这个家庭的未来生活。
△摄影©视方摄影-翱翔
△采光庭院|摄影©视方摄影-- 翱翔
在这个一共三层的下叠作品中,设计师准确地平衡这个家庭所需承载的日常性与互动性,依照不同空间的使用形态进行逐级分层,明确出每一层的空间场域与氛围。
△摄影©视方摄影-翱翔
△摄影©视方摄影-- 翱翔
在这里,我们可以清晰地感受到一种在垂直空间中向上和向下的生命张力:公共性与私密性的独立与共融。
△摄影©视方摄影-- 翱翔
设计师将面积最大的负一层的空间,从幽暗的地下室释放出来,借助阳光,植入绿植,以开放、流畅的设计方式,将其打造为家庭中最主要的公共空间,同时兼具对外社交的功能。
△中庭景观|摄影©视方摄影-- 翱翔
△艺术画背景|摄影©视方摄影-- 翱翔
一层是餐厨空间、家庭内部的互动区域,以及父母的套房,这样的安排与处理可以让老人的生活更加轻松便捷;
二层则是主卧室、孩子们的学习与睡眠空间,有效的让私密空间独立出来。
以此构建良好的生活常态,让家庭成员在独立中相互关照。
2 融洽关系
Rapport relationship
△摄影©视方摄影-- 翱翔
△摄影©视方摄影-- 翱翔
△摄影©视方摄影-翱翔
△摄影©视方摄影-- 翱翔负一层的处理是本案最核心也是最棘手的部分。在原来的结构中,负一层是一个相对封闭的空间,面积大而无用,仅有一个小小的天井,采光通风性差。为了打破这种空间的局限性,设计师把天井的开口提升到一层的顶面,形成一个跨度两层的挑高,同时也让负一层与一层形成互望的关系。
△摄影©视方摄影-翱翔
△摄影©视方摄影-- 翱翔在天井的上方,设计师采用可开启的电动天窗,实现了将阳光、空气、互动关系全部引入到负一层的理想状态,以此激活负一层的空间活力。
△摄影©视方摄影-- 翱翔
△摄影©视方摄影-- 翱翔
五恒系统的引入,给整个空间创造了一个非常宜居的恒温恒湿环境,再加上天井下方恣意生长的绿植,让生活多了几分惬意与从容。
△摄影©视方摄影-- 翱翔
△摄影©视方摄影-- 翱翔
△摄影©视方摄影-- 翱翔空间的流动性往往建立在空间交互之中,这种流动性不仅体现在空间视觉的流动与延续上,日常情感的流露也会在这种交互之中被慢慢建构起来,增加家庭成员之间的情感共鸣。
△摄影©视方摄影-- 翱翔
△摄影©视方摄影-- 翱翔
在本案的设计中,空间的交互性最直接体现在负一层的长颈鹿艺术装置上,与一层空间形成了完美的对话。它打破了空间的常规格局,在日常与空间所关联的间隙中获得生动而有趣的互动,成为陪伴孩子们成长的印记。
△摄影©视方摄影-- 翱翔
空间的层次与互动能带来很多感官上的趣味,这一点对孩子来说尤为重要,因为生活间隙里那些琐碎的片段,最终会成为他们完整人生中最具启蒙性的那一部分。
△摄影©视方摄影-- 翱翔
△摄影©视方摄影-- 翱翔
△摄影©视方摄影-- 翱翔
3 艺术滋养生活
Art nourishing life
△摄影©视方摄影-- 翱翔
△摄影©视方摄影-- 翱翔
△摄影©视方摄影-- 翱翔
△摄影©视方摄影-- 翱翔 ace 的住宅设计观,倡导在个性化的表达与长时间的居住之间,在理想主义和实用主义之间,建构并实现微妙的平衡,这也是每一个现代家庭在设计过程必须面对的问题。
△摄影©视方摄影-- 翱翔
△摄影©视方摄影-- 翱翔
△艺术陈设|摄影©视方摄影-- 翱翔
艺术性的表达与日常生活的平衡也是本案希望去探讨的,让艺术滋养生活,让生活在艺术的氛围中展开。
△摄影©视方摄影-- 翱翔
△摄影©视方摄影-翱翔
△摄影©视方摄影-- 翱翔空间陈列可以到处可见业主多年来的收藏品,著名艺术家沈小彤的超大幅艺术画作“竹”,为负一层素雅的空间带来惊艳一笔,而光的照顾让整个负一层空间脱离平淡,实为整个家庭空间的精神自留地。
△艺术家沈小彤作品《竹》摄影©视方摄影-- 翱翔
△艺术家沈小彤作品《果》摄影©视方摄影-- 翱翔
艺术家沈小彤不同时期的作品“果”“花”在空间的不同位置出现,艺术品的灵性光辉与自然环境的相互契合让整个空间的艺术性表达得到了释放,在这里艺术不是高高在上的奢侈表现,而是当代生活的品味表达。
△艺术家沈小彤作品《花》摄影©视方摄影-- 翱翔
4 留白,提炼诗意
Blank to refine poetry
△摄影©视方摄影--翱翔诗意生活,就藏在日常的细节里,不同尺度空间疏密关系的处理极为关键。设计师将大空间中的“高”留给了空间本身,而与生活相关的使用细节处理在与人身体更为亲近的“低”处,故意的留白赋予空间独特的灵动诗意。
△摄影©视方摄影-- 翱翔
△摄影©视方摄影-- 翱翔
△摄影©视方摄影-- 翱翔在这里,陈设细节以艺术化手法的渲染引出独立自由的生活语境,成为一种独属于这个空间的节奏。张弛有度的空间处理,给人带来一种充满仪式感的生活,拓展着家的居住体验,实现物质与精神的双重安放。
△艺术陈设|摄影©视方摄影-- 翱翔
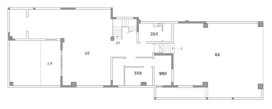
设计图纸
-1F 原始平面图
-1F 平面图
1F 原始平面图
1F 平面图
2F 原始平面图
2F 平面图
△负一层
夹层平面图
项目地址丨中国 成都
项目面积丨 550㎡
设计单位丨成都 ACE 谢辉室内设计
软装设计丨木上艺术
设计总监丨谢辉
设计团队丨谢辉、闫沙丽、唐茜、胡梦娇
设计时间丨 2017.12
完工时间丨 2020.12
项目摄影丨视方摄影-- 翱翔
谢辉
ACE 设计总监及创始人
ACE DESIGN 由谢辉女士于 2010 年成立,致力于打造有居住者自身气质的高品质生活空间。19 年的住宅设计经验让 ACE 在思考和实践中打磨形成了“健康住宅”的理念,设计需从身体的感知出发,赋予空间“健康、优雅、温暖”的气质体验,营造让人“身心”愉悦的居住空间。团队内部践行“一切以结果和客户的满意度为导向”的价值观,并以此打造了一套完善的服务流程体系。ACE 认为设计源于日常的积累和对生活的感悟,设计创造价值,服务决定落地,而正确的行业价值观与兴趣和热爱会让 ACE 在这条路上走的更远,让更多的业主享受到设计的价值!
部分案例
成都 260 m² 非凡气质大平层
成都 260 平层私宅
△蓝色晨光
△倚光而居
普罗旺斯百年建筑改造的精品酒店,建筑的时间感比薰衣草更迷人!
首发 | 里约设计 / 琉璃光院
希腊安缦今日重新开业|有一种精神,叫安缦!
首发|| 东半球最高豪宅地标 A-ONE,世界东方的云上会客厅!
客服
消息
收藏
下载
最近








































































