查看完整案例


收藏

下载
幸福时光
光,照亮生活 | 摄影©覃昭量
打开空间,让光照亮生活
晨起的第一缕阳光,洒在原木色的地板上,它给人希望,让人有重生般的勇气,它给人温暖,微小而满足的幸福感。
英国著名建筑师罗杰斯曾说:“建筑是捕捉光的容器,就如同乐器如何捕捉音乐一样,光需要可以使其展示的建筑。”而对于家来说,光的存在,包含了一种生命的温度,有“烟火气”,能在空间中自然的散发出来,直抵人的心灵深处。同时,光的存在,也为日常提供了一种神性,让生活其中的人,能借以汲取能量,获得安宁。
△景观廊道|| 摄影©覃昭量
设计师展小宁认为,住宅是使用者生活的容器,储存家庭成员全部的日常表情,并伴随家庭成长延伸到这个家庭的未来生活。光的介入,也让空间有了时间的维度。四季流转,晴雨风云所营造的不同光影,借由材质的抒发,篆刻在生活的细节当中。
这栋 500m²的别墅,业主是一位从事文玩生意且喜爱宠物的 80 后。展小宁对设计的理念,与业主所崇尚的简单生活一拍即合,基于业主的生活习惯与喜好,进一步梳理、提炼未来家的模样,于是设计便向着大家内心共识的方向逐渐成形。
△向自然借景|| 摄影©覃昭量
本项目共分为三层,利用地块高差,形成了双首层的建筑条件。一层定位为家庭的起居空间,打通客厅与餐厅;二层规划为家人的居住空间,由主卧和两个次卧组成;地下一层则主要作为承载家人朋友放松娱乐的美好时光的存在。
设计师试图拆掉阻碍室内采光的墙体,让风与光自由地流通,用大面积的落地玻璃,塑造空间的流畅度与通透感,并在此基础上将一层和负一层皆变成一个连结户外的交互式公共空间。建筑立面的解放让室内外空间相互渗透与融合,自然色调和特性的材料选择更充分的表达出场域特征和居住精神,让人在瞬息万变的时空之中,体验生活和自然之美。
△平面改造分析图
△明亮的室内,亲近自然|| 摄影©覃昭量
一层空间,设计师重新梳理了入户的动线,营造归家的仪式感,经由户外砖与鹅卵石铺就的过道,敞朗的空间逐渐敞开了它的全貌。客餐厅被完全打通,简单而有质感的材质连贯运用,使得整体空间纯粹、安静、不张扬,具有微妙的视觉感知力。设计师没有用墙体绝对地分隔空间,而是经由地面的材质作为指引,巧妙地区分出玄关、前厅、客厅、餐厅。
△悬空背景墙,轻盈的极简
|摄影©覃昭量
平缓的台阶向下,与隔而不断的墙体,共同包裹出客厅的区域,在这个区域中,家具的选择上也将“自由流动”的理念贯穿始终,低矮的沙发组合,顺从于沙发线条的茶几,打破了空间横平竖直既定规则,创造出新的层次。
客厅的黄铜板装饰面,是一次有趣的尝试。取整面的黄铜,经由火枪炙烤、手工的酸蚀,打造出丰富的肌理,为留白的墙体形成了浓淡交错的景致,在不同的光照条件下,其间的肌理变化将谱就不同的篇章。而时间的痕迹会再次打磨它,通过表面氧化呈现不同的细微变化,伴随家庭的生长。
△客厅
|摄影©覃昭量
自由生长的居住美学
关于居住和“生活美学”的话题从来没像今天这么频繁却又空洞,网络充斥着各种风格的家居图片撩拨着人们的视觉神经,古典、乡村、极简、美式、北欧、侘寂,各种标签都企图让人不再思考,迅速买单。
△餐厅 | 摄影©覃昭量
设计师展小宁认为,“家”是自然生长出来的,房间里的家具、饰品、绿植,无不在通过自身和主人的关照在讲述故事。门背后是无数质感的汇集之地,所有这些微妙的差异组成的空间,让疲惫的人得以滋养和修复。理想的居住形态,不是粘贴风格的标签,而是打开五感,审视内心。
△开放式厨房
|摄影©覃昭量
因此,在整个项目的家居选款基于业主对生活的精细追寻和性情爱好,将日常家居的趣味、审美与调性,呈现于这个干净温润的空间之中。
△室内外融合|| 摄影©覃昭量
业主非常喜欢“火”带来的最原初的温暖,因此,除了一层空间的酒精壁炉之外,在负一层的社交空间,还设置了一个燃木火炉。在冬日雨夜,三两好友围炉而坐,分享生活趣事,品一瓶珍藏的好酒,窗外是风入竹林,雨打芭蕉...这样一幕温暖的瞬间,共同构造了生活的意义。
△负一层|| 摄影©覃昭量
负一层的围炉区,墙面嵌入一条与一楼同材质的铜板,回应空间的线索,地板用两种不同的木材,拼出空间的层次,同色系的沙发柔软地安于一隅,互为依仗。设计师放弃了所谓的空间中心对称的设计范式,而是任由光线和材质的互相作用,一点一点滋养着空间的形成。功能与审美兼具、动静清晰,构筑这个空间的一体两面,这既是业主对生活本身的追寻,也是生活品质的自然流露。
负一层的入户,是室内外衔接的区域,在这里,设计师选择用自然劈裂面的岩石作为墙面的装饰,粗犷质朴的材质赋予了空间的厚重感,与锈面岩板、顶面黑色木纹波浪板,共同形成了一种有趣的空间氛围,在室内营造了一种室外的自然感。
△肌理对比|| 摄影©覃昭量
这些材料的选择,不是从装饰和风格出发,而是像电影画面,像一个个诗意的场景:有一片温暖的木头屋檐,穿过玻璃窗户的光影,斑斑驳驳的打在粗粝的岩石背景上,如同夜晚屋檐下的荧火。
△楼梯 | 摄影©覃昭量
设计是一项精密的工程,不单体现在处置形态上的一些问题,更重要的是其功能和用度,而在家宅之中,最终为空间注入生活气味的,是作为主角的人。
二层是业主与家人休憩的空间。设计师认为,作为家人休憩的空间,家具应该是低存在感的,家里面最重要的其实是人的角色,而不是物品。因此,在二层的家具选型中,形制和设计没有过分的突出,反而在材质上发力,通过材料的质感呈现空间的层次。
△主卧|| 摄影©覃昭量
秉持着空间的调性,开阔的主卧,大面积面向庭院开窗,去除装饰的灰色墙面,床品延续材质的调性,未经削切的厚牛皮,经过搓揉打磨,用色低哑却透露出不凡的品位。床头柜亦然,临窗的书桌与休闲椅,勾勒出落地玻璃窗前阳光倾洒时的慵懒状态。
△柔软的光
|摄影©覃昭量
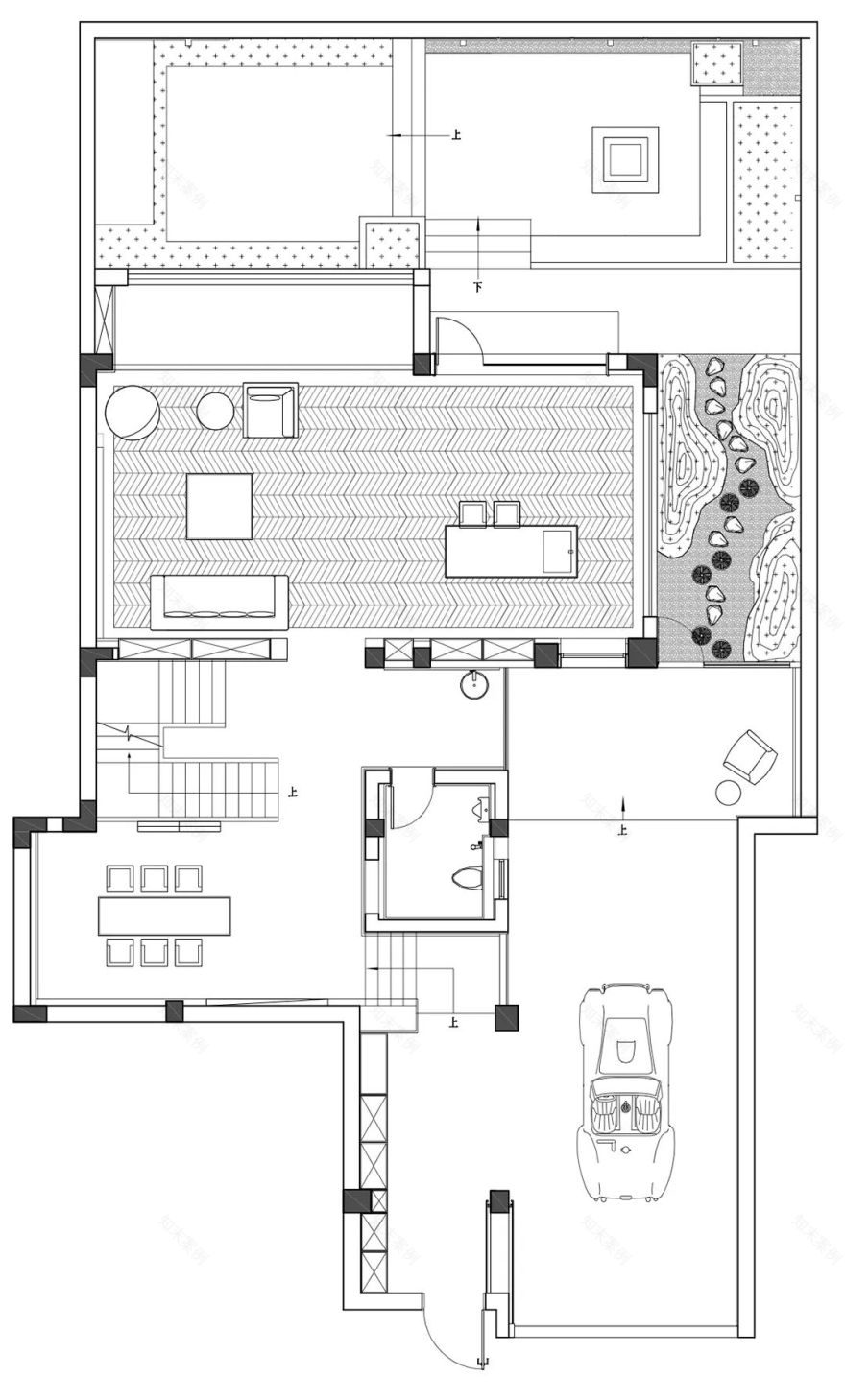
平面图
△-1 层平面图
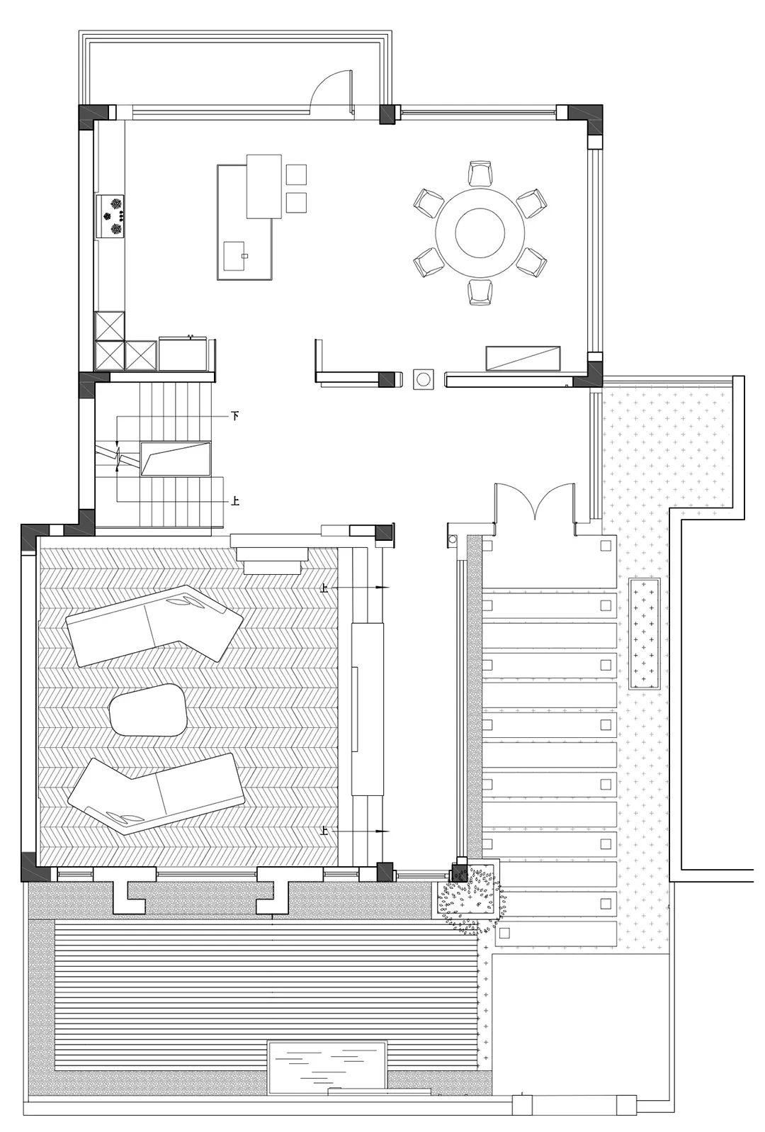
1 层平面图
二层平面图
项目名称 | 苏州森林湖别墅私宅
项目面积 | 500m²
竣工时间 | 2020.11
设计机构 | 苏州贝瑞空间设计事务所
主案设计 | 展小宁
空间摄影 | 覃昭量
主要材料 | MARAZZI 瓷砖、德赛斯岩板、CIVRO 系统门窗、HARO 汉诺地板、石材、氧化铜板
展小宁
贝瑞设计
创始人兼设计总监
贝瑞设计创办于苏州,坚信设计是一种理性的艺术表达,并在此理念框架内,探索建筑、空间、人与自然的关系。成立 12 年来,服务于高端豪宅的设计领域,拥有成熟的供应链体系和完善的服务流程。坚持以客户的需求为导向,做有依据的设计创新。
部分案例
△函园书院
海亮长桥府
首发 | 东半球最高豪宅地标 A-ONE,世界东方的云上会客厅!
首发 | 彭征/家的自述
首发|春山秋水 / 寿司之神嫡传弟子增田励中国内地首家!深圳植庭寿司
世界顶级定制厨房 Officine Gullo | 烹饪是一种创造!
客服
消息
收藏
下载
最近
















































