查看完整案例


收藏

下载
安静自在
家是能让人治愈和滋养的地方。——Wabi-sabi 大师 Axel Vervoordt 语录。△项目视频。1.老宅新生。‘环境、精神、肉体、融合、给予/馈赠、工具’是勒。柯布西耶《直角之诗》的几个章节,也是理解其建筑、思想、造型艺术的路途。家的设计是创造,也是设计师本人个性的真实反映。
《意大利风景挂画》欧阳金桥个人摄影作品
老宅新生:老在环境、建筑、气味,新在居住者的思想、身体上,对室内空间功能的需求。而设计师需要把环境、思想需求和功能需求融合,让新旧共存,保留回忆,制造能给我们生活带来滋养、启迪的空间设计。空间最终应是一个智能机器,是认识自我、启迪自我和家人的一个重要途径。
太阳不断将光线馈赠给建筑,阳光透过玻璃窗户将光线馈赠给室内,人、植物、其它一切,都在接受光的滋养。反过来,设计住宅空间时需要从给予和快乐出发,让空间带给人舒适、平和、回忆以及顿悟。一切的平衡都来自新旧的碰撞与对话,不光需要光鲜亮丽,也需要质朴温润。
△《Moon》Davidee Groppi
△《Serie Up 2000》B&B Italia
有的物件,只是夸张。
但是夸张背后充满神秘和故事的,却很少。
脚是平凡又深刻的象征。
△陶瓷摆件 B&B Italia 艺术家签名珍藏品
有秩序、有温度
人的比例,就是最好的‘秩序’。对比例的喜好,简洁必要的功能。生活需要秩序,设计需要章法。设计师热衷于直角和横平竖直,但在软装上也会对弧形的物体稍微妥协。这也照应了上文提到的‘对峙和平衡’。
《谜鹿》画家侯俊杰
若非是对生活的热爱,设计师恐怕很难做出这样的设计。不高估自己,而是设计就是内心最真实的反映。如果没有积极地参与到家务活、柴米油盐中,厨房和餐厅的设计,应当只能作为观赏。
△油画《谜鹿》画家侯俊杰
Cappellini 粗陶罐,像是从混凝土墙里跑出来的。和谐、呼应;破败,但是真实。众人都能品繁华,但极少数人懂的品物哀。要说这套设计有一点侘寂的味道,也是非常赞同的。但设计应当符合年龄,因为经历和岁月,决定了味道。
△陶瓷摆件 B&B Italia 艺术家签名珍藏品
3 予人启迪繁华其实犹如云朵,内心的纯粹才是那背后的恒久星辰。
童年是对人生影响最大的一个阶段,无论如何,我是这样认为。
出身在 1988 年,设计师的童年,是清水混凝土的辉煌。
随着不断长大,都曾被各种繁复的装饰物所叨扰,但设计师内心始终认为:欣赏事物的本质,培养领悟事物本身的美的能力,才是设计师应有的修为。
《意大利视觉挂画》欧阳金桥个人摄影作品
昌迪加尔椅堆砌在昌迪加尔议会大楼的废墟,仅仅六七卢币一把,被法国古董收藏家回收修复后,反手拍卖就是巨额资本。而如今,复古、自然之美,已深入人心。
混凝土、清漆,原始土建的立柱,这些都是童年的映射,是实物本质的存在。
当从城市回到家,脱掉鞋子,光脚踩在清凉的地砖上,闻到植物从后院传来的气息,看见厨房已经富有岁月痕迹的木纹砖,这一切都不断让我们热爱生活,热爱我们的家人。
干净、纯粹
结构,是最简单的美学之一。它如同你站在阿尔卑斯山脉顶峰,向下眺望,下面是横竖交错的河流与山脉。这就是自然之美。自然与生活中,这样的美很多。一切的设计,其实都源于自然,源于对生活的观察。
《意大利视觉挂画》欧阳金桥个人摄影作品
设计师在设计家里所有的结构和造型时,内心没有太多波澜,尽量从必要性、完整性出发。不为了造型而造型,不为了美而美。旋转楼梯之所以存在,是因为没有别的选择可以满足空间尺度和功能性。原本要将梯步做成木头或岩板,后来发现原始的钢板更符合设计的整体气质。
5 知行合一做真实的自己,对事物怀有谦逊的态度,少言,多看多学多思。室内和建筑,都是服务于人的工具,它享受自然的馈赠,也给予人生活的必须场所、感物之地。在空间中发掘更好的自我,给予一个私密温暖的舒适空间给居住者,让他们能安静下来,带给他们温度、平和。
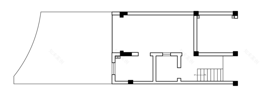
△负一层原始结构
△负一层平面布置
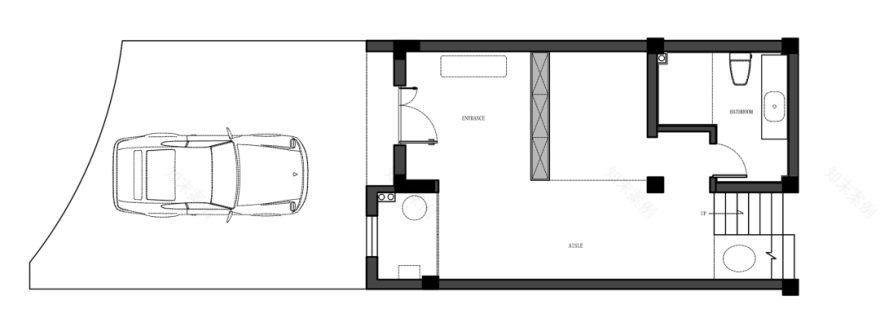
△一层原始结构
△一层平面布置
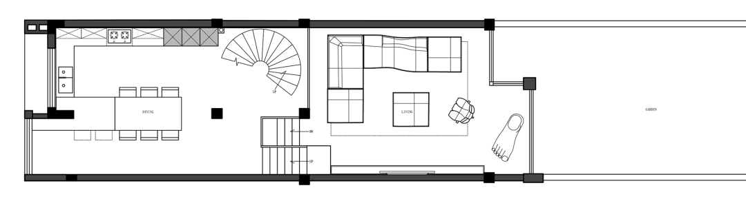
△二层原始结构
△二层平面布置
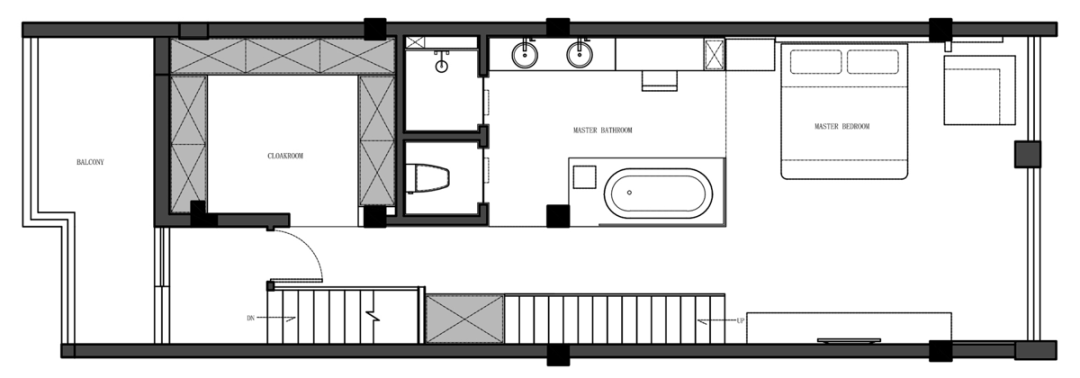
△三层原始结构
△三层平面布置
项目名称|CASAMIA 欧阳金桥自宅
项目地点|中国成都
项目面积|400m²
主创设计|欧阳金桥
参与设计|欧阳钰茜
设计范围|室内、软装、建筑
室内设计|成都乔玺空间设计有限公司
软装设计|成都乔玺空间设计有限公司
项目管理|成都乔玺空间设计有限公司
设计时间|2019 年 2 月
完成时间|2020 年 3 月
项目摄影|聿空间摄影-刘伟
项目视频|聿空间摄影-刘思遥
硬装品牌|德国海格橱柜、德赛斯岩板、德国帕诺地板、纳莱瓷砖、洛玛诺瓷砖、恩士、贝朗等
软装品牌|B&B Italia, Viabizzuno, Davide Groppi, Baxter, Bonaldo, Ligne Roset, Cappellini, Catellan, 等
乔玺设计(Qiaoxi Space Design)由青年新锐设计师欧阳金桥及其合伙人欧阳钰茜于 2017 年共同创立于成都,是一家深信“设计随缘”的跨界设计工作室。工作室主张做不限地域的设计,面向全球提供独特富有前瞻性的室内设计服务,包括但不限于空间设计、老宅改造、商业空间创意策划、建筑概念提案、软装陈设等。主张艺术无界线、去风格化,从外在和内在需求出发,做出予人启迪、予人温度的空间设计。深信设计之美应基于事物本真之貌,通过造型艺术将功能和形状有秩序地排列,从而设计出气质协调的空间。
欧阳金桥先生曾供职于知名地产设计品牌,主案过数个精品地产售楼部、精装房、样板间及办公空间设计。
欧阳钰茜女士,美国纽约 Hofstra University HRM 硕士毕业,曾供职于纽约联合国总部、曼哈顿 Tekserve Corp.及成都 Tap4fun 手机游戏公司。
2017 年二人共同创立设计工作室,以二人姓名命名为:乔玺。
团队成员均为 95 后,是一只非常年轻的设计团队。
部分案例
△乔玺办公室
△蕴载文儒德
△落日余晖待你而归
首发.JSD 简璞设计 文超|新隐士:南山脚下克制而细腻的烟火!
首发.泛域设计 朱啸尘|杭州新开一家神秘酒吧,如时空穿梭!
首发.Some Thoughts|成都好利来 1992 概念店,宽窄巷子里的传统与再造!
首发.王鹏|TECHNOGYM 泰诺健广州体验中心:理性建构,极致之诗!
首发丨融创普洱国际健康城/空谷跫音,天外之境!
客服
消息
收藏
下载
最近
















































































