查看完整案例


收藏

下载
建 E 室内设计网东方卫视《梦想改造家》战略合作媒体《梦想改造家》第三期来到了湖南长沙,委托人喻教授和丈夫龚老师都即将退休,从事文物研究和文字工作几十年的他们,一门心思扎在了工作上,错过了享受家庭生活的最好阶段,等真正可以闲下来却发现,房子和他们一起慢慢变老了,开始不再适合居住了。
喻女士的家有着 30 多年房龄,原本只有 75 平方米,中途加盖过一次,形成一半是砖混结构、一半是框架结构的“奇怪组合”。加盖后,采光和通风极大受影响,女儿以前的房间成为常年昏暗的“小黑屋”,而喻女士的书房更是一个四面都是墙、密不透风的“大黑屋”。
采光、潮湿、储物、多代同堂,这期委托人碰到的问题,也是很多家庭面临的共性问题。赖旭东老师再挑战棘手难题,他能否找到一个一劳永逸的方法,让这个“拼凑的家”焕然一新呢?
#改造前#
改造痛点:
1. 老房加建,结构混乱,空间布局不合理;
2. 房屋潮湿、漏水、发霉;
3. 房屋采光通风效果差;
4. 储物空间不足,大量书籍无法收纳
客厅
左右滑动查看更多
改造前客厅拥挤,两边都是书柜,有以前闲置的茶几,基本上就是储物的功能,一些不适合的大家具让这个家里显得非常得拥挤不堪。
餐厅
这个区域是餐厅兼客厅,业主一家基本只在这一个空间活动,包括吃饭、聊天等,相当于是一个集体活动空间。厨房
左右滑动查看更多
由于采用了直排的方式,厨房和餐厅是一墙之隔,所以说炒菜的油烟全部都绕回到餐厅里了,并且厨房渗水问题严重。空间也很狭小,只能站两个人,活动不开。
卧室
左右滑动查看更多
加建之后,原本的卧室窗户被封闭,所以出现了没有任何采光的卧室和储物间,变成了“小黑屋”,不利于对有工作需求的业主的健康。
阳台
阳台功能也比较多,一边是储物,上面是晾晒,一边是爸爸的办公区。
#改造中 #
出发点:重焕年轻,让房屋基础功能减龄重拾健康,改变不健康的生活方式重视品质,提升生活品质重组场景,打造生活场景巧改格局。
采光难题是亟待解决的最大问题,设计师赖旭东在设计中通过巧改格局,去掉了不必要的墙体间隔,改造后的空间动静分离,餐厅、客厅、茶室与阳台形成一个动态区域,委托人的卧室与书房是另一半的静态区域。
把现有的书房、卧室之间的隔墙取掉,恢复了原始的客厅、卧室、阳台和加建部分的原始平面布局。把原来到阳台的门带窗完全推掉,扩成了一个很大的门洞,把原来的卧室当作客厅使用。
合理的空间需要动静分开,就像洗手间需要干湿分离一样,所以我们就把餐厅、客厅加上阳台,一下贯通这条直线,就拉成一个动态区域。然后我们把这边功能分好以后,会把现有的客厅,然后女儿房和阳台就规划为静区,就改成了爸爸的房间,妈妈的房间和书房。
壁龛的发现对整个餐厅客卫厨房区域的功能规划都有着极大的提升,所以设计师决定将其打通,扩大成一个门洞,这样一来,餐厅与厨房的动线关系便更加合理,而原本厨房的房门也可以作为隔墙封堵起来,让狭小的客卫利用过道位置做到干湿分离,油烟机也有了安装位置,不会再出现油烟蔓延到客厅的问题。
漏水、发霉问题。拆除后发现漏水问题根源在于楼上漏水、外墙和洗手间,设计师通过高质量防水技术改善房顶和墙体,再经过沟通,修复楼上的问题,终于解决了长久以来困扰业主的房屋漏水问题。
考虑到房屋潮湿发霉问题,并且业主衣物很多,设计师决定安装新风系统,包含有制冷制热、加湿除湿、去 pm2.5 去甲醛的功能,并增加了负氧离子,很大程度上改善了生活环境,有利于业主的身体健康。
中式风格设计
打造适合一家子居住的中式空间是这次设计师整体风格的重点,所以除了颜色和纹理,设计师还将给这个家赋予更多传统的美好寓意,分别是豆角、月亮、山水和贡石。
传统的中式风格可能会用灯笼之类或者是比较中式的一些灯具,但设计师想的是用常见的中国的一些食品,比如福豆、扁豆等等,通过它的形体,经过整理抽象形成最终的豆角灯,寓意丰收、吉祥、和谐、热闹等等。
根据“月有阴晴圆缺”,用纯实木做出月亮茶几,寓意乐观、从容、坦荡。
用 0.1mm 的针管笔手工画出山水元素的画,再将其概念化,有着自然、想象和连绵不断的寓意,作为客厅墙上的一幅装饰画。
中式园林常见贡石,寓意着时来运转,设计师通过一个泡沫来构成形体关系,使其具备艺术感,材料的更换可以让设计师按自己的想象来塑造作品,撕好海绵后,浸染到兑好的颜料中,然后自然的阴干。
#改造后#
客厅
房屋原本昏暗的书房变成了明亮通透的客厅,山水画、茶几、茶杯等中式象征兼具实用功能与美好寓意,整体暖色调的配色温馨又舒适,移动木门后是男业主喜欢的电视,两边的书柜是女业主几千本藏书的栖息之所。厨房、餐厅
厨餐厅中间打通,延伸了空间的视觉效果。设计师贴心地将厨房物品放置在较低的位置,完美解决了取物不易的问题。
用餐区的大窗户可以充分自然光,墙上嵌入的镜子通过反射作用让室内更加透亮,窗外之前被嫌弃碍眼的大树现在也成了一道亮丽的风景。卧室
爸爸的卧室集娱乐、工作、收纳等功能于一体,再也不用挤在阳台晾晒区读书写字了。
考虑到妈妈的眼睛问题,赖老师将采光最好的一间房设计成妈妈的卧室和书房,近 3000 本书的收纳书架,还有靠窗的书写区,满足了喻教授在家做研究的需求。
茶室
茶室是龚爸爸最期待的区域,卷轴灯的设计让空间更具中式风格特色。除了茶室,这里也可以做喻教授的临时书房。茶室与休息区为会客提供了又一个舒适空间,更能够通过移门变成一间临时客房。阳台
原来龚爸爸的洗手间变成了小型阳台,洗烘套装解决了衣物潮湿发霉的问题,同时也可以作为外孙女玩耍的地方。
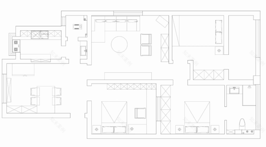
平面图
DESIGN PLAN
改造前:
改造后:
写在最后:房子和人一样是有生命的,也会慢慢老去,忙碌操劳一生的父母错过了房子的最好时期,在该享受的年纪却面临着问题重重的老房子。花甲之年正是应该享受的时候,不要让黑暗的屋子挡住父母内心的美好。
本期改造费用:
- 硬装(含人工):25 万
- 软装(含家电):13.6 万
- 总计花费:38.6 万
INTERVIEW WITH DESIGER
作为一个“老梦改人”,相比于之前的项目,此次终于得到了充足的预算,请问这是您个人争取到的吗?得知这个消息时您是怎样的心情呢?
A:这应该是节目组安排的,也有可能是广大粉丝的反映,能让我这次有一个充足的预算。得知这个消息时我是非常开心的,因为费用预算充足的话,能够表达的东西会更多,从材质上、空间上、软装上,我都能做的比其他预算紧张的房子充分很多。
Q:在此次项目中,业主的藏书数量极大,相信有许多设计师都会遇到同类型的问题,请问针对这类有特殊要求的收纳您有哪些建议呢?
A:其实像针对这种面积不大的房子,我的建议是尽量做收纳空间,不论是藏书、收纳装饰品还是收纳衣物、杂物等,我基本上都是以柜体的方式来营造整个空间,用很多柜子来组装,通过它的比例关系来装饰整个室内空间,所以我基本考虑的是收纳的问题和美观的问题。
Q:在这期节目中看到,您为业主设计了新风系统、衣物护理系统,请问对于这些技术您有什么看法呢?
A:就所谓的智能家居来说,我觉得这种对人的亲身感受的东西是最好的,比如新风、衣物护理这些,对个人健康是有直接关系的,我认为这种智能化才是真正有意义的智能化。其它比如灯光开关、空调开关等都是举手之劳的事情,这些设置成智能不是特别吸引我,但反而是对空气、音乐、衣物护理等对人身体健康的东西,才是真正的智能。
Q:在此次项目中,您为业主设计了一些中式物件,有豆角灯、月亮茶几、山水壁画、贡石摆件等等,能否请您谈谈中式空间设计如何做得更有新意呢?
A:从小就生长在我们这个国家里,周边的环境、个人的生活习惯、民风民俗,这其实都潜移默化地让你做的设计本身带有中国的味道。我觉得不要刻意去做一些中式的东西在空间内,更多的是结合当下做一些有意义的,这样做出来肯定是带有东方特征的。如果我们把老一辈做的中式直接搬进空间,就会失去设计的提炼过程,空间看起来就是一个常规普通的中式。我们从小就听说“大象无形,大音希声”,其实就是要把表象的东西掩藏起来,从精神层面做设计,这是高手设计师该做的事情。
Q:作为一名在商业空间设计领域里颇具影响力的设计师,却参加了这么多年的《梦改》且很受欢迎,您是如何把握并实现生活的需求与设计的关系的呢?
A:商业空间设计和家居空间设计都属于室内设计,在这个大范畴里,商业空间表达个人设计师的行为要多一些,私宅更多表达的是业主的需求,但实际上都还是一个设计。我们都在说设计师是解决问题,商业空间是解决问题,私宅也是解决问题,只要把问题解决好那就可以了。而且我多年参加梦改,清楚它是可以向大众明确地表达,设计是有力量的、是能带来价值的、是能带给人美好生活的,其实商业空间设计同样也有这些东西在里面。
关于设计师:ABOUT DESIGNERS
赖旭东
重庆高等学校室内设计专业副教授
中国建筑学会室内设计学会副会长
中国建筑学会室内设计学会注册高级室内建筑师
亚太酒店设计协会常务理事
上海大木酒店设计顾问有限公司合伙人、首席酒店设计
重庆年代营创室内设计有限公司设计总监
建 E 室内设计网
东方卫视《梦想改造家》战略合作媒体
# 投稿&商务
肥橘/小越/1900/叮当
客服
消息
收藏
下载
最近




















































