查看完整案例


收藏

下载
连绵起伏的山,一望无际的海,奔腾不息的江,融合成就一座新城。让“山海一色,山水交融”的生态之美渗透进居住者的生活体验中,重新定义未来健康住宅新标准。展望未来社区新规划,打造一个以人为本的全配套生活体验中心,融创翡翠海岸城让美好时光停留在这里。
Emerald Coast is a residential community developed by the real estate company Sunac, which hopes to incorporate the beauty of mountain and water landscape into the living environment for the occupants and set the standard for future healthy residences. DSC • DESIGN was entrusted to conceive this human-oriented experience center, to bring brand new and enjoyable living experiences to visitors and the community.
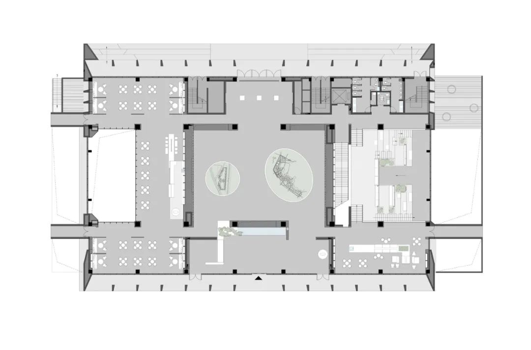
踏入空间,前厅项目标志就以绝对的版面占据视野范围,质朴石材铺底点缀海洋动物装置更突显项目主题。将沙盘展示与宣传区位放置于中轴线上,主动线彰显体验中心的重点。留白艺术让空间呈现“疏而不空”,让进入者畅游其中而想象自由。
The foyer is characterized by a large backdrop wall that showcases the logo of the residential development, austere stone floorings and a marine animal art installation. The property model display area and publicity area are set on the central axis. The main circulation links up the key functional spaces. There are large areas of blank surfaces, which leave space for the imagination of visitors.
细细体验从沙盘区到达项目宣传区的过程,契合由浅入深、动静结合的现代观赏习惯,而生动的模型全貌展示和动画宣传先入为主。以轻盈的海洋动物装置点亮沙盘区上空,减轻空洞感,光影流动间犹如置身于漂浮的洋流中,昭示着海岸城优越的自然环境。
The visiting route from the model display area to the property publicity area combines the dynamic and static. The models and the promotional video played on the screen give visitors an overview of the development. The floating art installation draws on the form of marine animals, adding flexibility to the space and enriching its layering. Under the soft light, it seems to bring people into the ocean, and indicates the superior natural environment of the community.
移步洽谈空间,感受中央开放式水吧带来的场景互动,更多的可能性在这里发生。去除掉多余的修饰,最大程度地减轻了空间拥挤度,简洁舒适的观感油然而生。落座于两侧相对私密的洽谈区,序列的手工艺术玻璃隔断营造朦胧美,隐约呈现空间的趣味性。
At the middle of the negotiation area is an open bar counter, which evokes interaction and brings more possibilities to the space. Through cutting out the superfluous, the designers created a space featuring openness, simplicity and coziness. Negotiation zones are set at the two sides, with translucent and artistic handmade glass partitions offering privacy and generating a hazy aesthetic.
让生活的气息弥漫二层空间,驻足于温暖的阳光中,远眺大桥江水青山,近看儿童嬉戏玩耍,真实的幸福感在这个空间发酵。挑选一个时刻,在乐活区来一场桌球,品一壶好茶;在烘焙厨房,体验手工的魅力,解答生活的疑惑,获取快乐的秘诀,生活有时很简单。
The second floor is awash with a pleasant living atmosphere. It embraces warm sunshine, the river, bridge and mountains in the distance. The leisure area allows people to play snooker or enjoy a cup of tea, while the baking kitchen is a perfect place to feel the charm of handwork. This space is where people can find fun in daily life.
打造小方格式天花,足够的高度为长线型灯饰提供条件,将绿植和动物装置放置其中,每一个角落都散发出自然和艺术的气息,整体形成趣味性的交流和阅读场景。
On the underground floor, the shared reading & communication area stretches upwards to the ceiling of 1F. This area is characterized by several step-like structures, which are placed at stagger heights. People can either sit around chatting, or stay alone to drink a cup of tea and read a book. The grid ceiling is high, with linear lighting fixtures hanging on it. Green plants and animal art installations throughout the space produce a natural and artistic ambience, and contribute to forming playful communication and reading scenes.
将儿童乐园布局在图书洽谈区及儿童绘本区邻侧,书本与玩乐成为最好的伙伴,让儿童的世界充满想象。同时为亲子互动打造一个共享空间,让每一次陪伴和每一个微笑都为场景注入独一无二的画面。
Next to the reading & communication area is kids’ play area, a space full of imagination. It’s a place where the parents and kids can spend joyful time together.
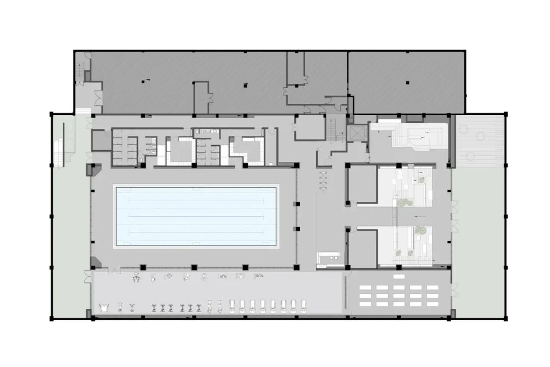
用健身会所锁定地下一层空间,不同场景的切换都在这里留下痕迹。健康成为空间的隐形内核,肆意驰骋于用心建造的泳池中,让世界安静得只听见自己的呼吸声,在游动中与自己对话;挥散汗水于健身空间中,释放全新的细胞活力。
The fitness club is also set under the ground, with health as its core. The expansive pool enables people to swim freely in a calming atmosphere, while the gym offers a perfect place for regaining energy.
焕新时代人居新篇章,自然底蕴成就下的品质生活在这里不断拓展。体验中心由此成为未来社区规划中具有前沿性的聚焦点,捕捉不同动向的理想生活体验,为美好的生活构筑新场景,唤醒居住者内心最纯粹的幸福感。
The project showcases a quality lifestyle with closeness to nature, captures diverse ideal living experiences, and creates novel scenes for a better life. It will set a model for the future planning of the residential community and evoke pure happiness of the residents.
负一层平面布置图
一层平面布置图
二层平面布置图
项目名称 | 融创翡翠海岸城体验中心
项目地点 | 浙江省温州市平阳县
业 主 方 | 融创·中国 东南区域
项目类型 | 售楼处
设计面积 |
3983
完工时间 |
2020.05
设计内容 | 室内精装
设计公司 | 北京栋三尺设计有限公司
精装设计团队 | 李子兆 夏朋君 张弓发 吴丹丹 尹嘉妮 徐磊 王星运 赵阳阳
机电设计团队 | 王艳丰 朱剑辉 张月峰
摄 影 | 成都镜上文化传媒有限公司
栋三尺设计(DSC • DESIGN)是一支坚持以国际化思想处理实际设计问题的机构。团队创始人在大型设计机构共事多年,形成了默契的工作方法和共同认可的价值观,机构设立以来,希望以新锐的设计理念、严谨的创作思维、负责的配合精神,执着并务实地专注于设计工作本身,通过专业且高效的服务为业主解决客观问题,并以此体现团队价值。
Based in Beijing, DSC • DESIGN insists on approaching projects from an international perspective. The founders boast years of working experience in large design firms, and have established shared working methods and values. Based on novel design ideas, creative thinking and a responsible attitude, they are committed to delivering professional and effective design solutions to clients.
团队以构建一个具有领先意识的专业设计服务平台为目标,从运营策划、空间创造、建筑机电室内一体化、软装配饰、艺术装置定制设计以及工程把控等环节,为地产及文化机构、酒店、总部办公、品牌连锁等企业提供相关的整体服务。
Bearing in mind the goal of growing into a professional forward-looking design service provider, the team strives to offer integrated solutions ranging from operation plan, spatial creation, electrical design, interior furnishings & decoration to art installation customization and engineering, to a wide range of clients including real estate developers, cultural organizations, hotels, corporations and retail brands, etc.
GND 设计集团 / 视觉美学先行者
G&K 桂睿诗/不失经典的优雅
DOMANI 东仓建设 / 艺术近在咫尺
GRANDRAW 观筑/品牌形象新定位
客服
消息
收藏
下载
最近








































