查看完整案例


收藏

下载
“家”不仅是一套房子是一个有温度的媒介也是居住者的个性和品味的表达空间。
以艺术造家
作为精神与物质并重的栖居之所,家不只需要单纯的形式美,更需要阐发着一种优雅的美学力量。相融而独立的艺术美感,才能予人无尽的生活想象。
空间与美的连接,是艺术与家的融合。首层入户玄关采用半透明玻璃隔断,伫目而立,便可将通透之美一览而尽。
现代简约风格所采用黑白色,给室内装饰艺术引入新意,营造了室内和谐的秩序美感,在黑白之间过渡开来的棕色也柔化了空间的利落分明。
当纯白布艺窗帘引领着室外的光线洒入眼前,让家沐浴在艺术氛围里,整个下午的阳光变得慵懒而美好。
从木质的醇厚温润中,触摸柔和细腻,从石材和金属的张力中,感受利落质感,艺术与空间从来相辅相成。
主卧作为一个家格调的基垫,肉桂粉和古铜色组合的色调细腻雅致,床头皮雕和氛围灯的结合也增加了休憩空间的品质感。冰裂纹面的挂画展现着陶瓷艺术带来的高级之美。
摄影主题的书房与主卧相衔,以多变形态造空间灵动感。书房的各式相机模型和儿童房跳动的背景装饰表现出独特的艺术美感,满足了居住者对品质的精神追求。
一层平面布置图
空间有界,艺术无界
室内陈设设计与住在里面的人的生活爱好密不可分。
好的设计,常把非凡的联想植入最日常的风景里,以无界艺术来写意精神与格调共存的人居空间。
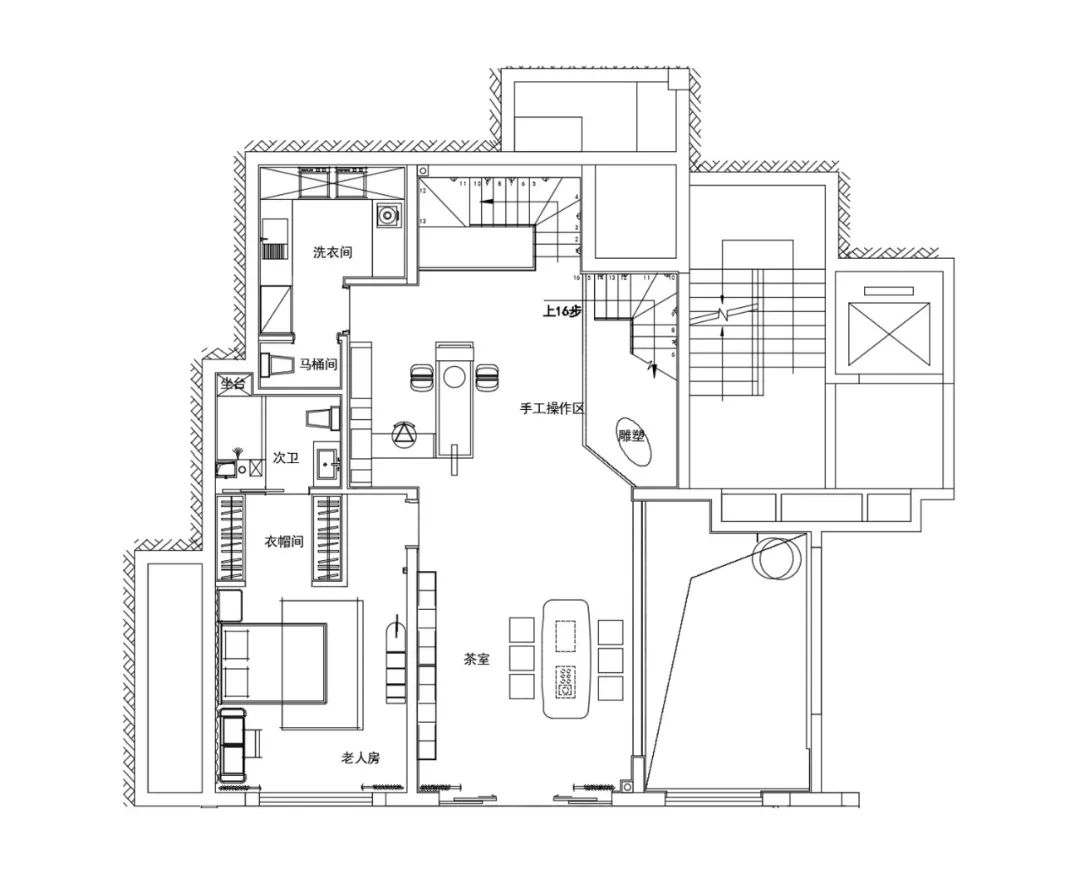
顺阶而下,首先映入眼帘的是陶艺室。干净的橡木色吟唱着简单的温柔小调,在这一层里,陶泥清新,手目之所及皆是最自然的味道,除了内心所感什么都不重要。
茶室古铜色的金属书架简约别致,自带一分干净利落的美感。造型独特的靠椅,书架上简单的瓷器藏品,盛着香茗的陶器,与手作区独立而融合,将艺术气质弥漫。
长辈房棉麻布艺织就的安谧氛围,与床头的舞者艺术品动静结合。墙上挂画采用书籍一角作为装裱元素,与夹层的文化气息相衔接,也传达着艺术无界的深刻寓意。
墙上挂画采用书籍一角作为装裱元素。
夹层布置图
把生活唱成歌
陈设设计用颜色、光、材质把建筑谱就的妙曲娓娓唱出。
吧台旁喇叭状椅背的绅士黑金属高脚椅简约精致,延展了顺石阶而下的艺术美感。
静坐在这里,觥筹交错间,耳旁似乎响起音乐餐吧里的轻歌慢奏,空间设计营造出的张弛有度的音律之美,我们唯有在聆听中感受与体会。
吧台区吊顶采用镜面不锈钢材质,调整了挑空范围,又增加家的延伸感。
倾泻而下的灯球似铿锵音符肆意而下,欲将放肆之感洒满空间,而大千治造特色枪钉手法表现的挂画,犹如一束舞台的聚光灯,把安静的空间唤醒。
大尺度的全面墙酷炫舞台背景与全套架子鼓,墙面做镜面结合灯光无限透视处理,在延伸视觉感的同时,将家的恣意情绪放大。
张与弛,独立与聚合,投入与欣赏,这是音乐艺术的和谐共生之所,也是空间划分的曼妙之处。
负一层平面布置图
项目名称|| 中海万锦洋房下叠样板间
项目地址 |烟台
软装设计 |元禾大千
硬装设计 |元禾大千
设计时间 |
2020.3
完工时间 |
2020.8
空间面积 | 366㎡
特别支持 | 海创福业(烟台)地产有限公司
摄影团队 | 失窃的未来
元禾大千艺术品有限公司是一个以艺术为驱动力的软装设计品牌。元禾大千诞生自 2007 年,专注于为售楼中心、样板间、酒店、会所等公共空间,提供深度、全面的软装设计和定制艺术化空间服务。目前布局于重庆、深圳、成都、杭州四地,逾 200 人团队为全国知名地产企业达成战略合作。
元禾大千案例推荐
奥园鼎新·海樾岚庭销售中心
建发鼎华·北大珑廷售楼中心
佳兆业滨江四季销售中心
成都新希望 D10 天府 D 户型
诗意栖居 / 江浙民宿精选
Kerry Hill / Aman Kyoto
星野度假集团/虹夕诺雅·谷关
Sordo Madaleno / Solaz Los Cabos Hotel
客服
消息
收藏
下载
最近






















































