查看完整案例


收藏

下载
《道德经》有云:道法自然……自然方可永恒!
一切对未来美好事物的追求都源于对自然的向往,对未来的渴望。
It’s said in Tao Te Ching that Tao models itself after nature... nature can last forever!
All the pursuits of wonderful things in the future come from the pursuits of nature and the fantasy of future.
塑造艺境光遇未来
Shaping artistic conception and meeting the future in the light
如果空间存在于建筑之中,反过来,建筑可否生长在空间之中。此处空间和建筑交混在一起,你中有我,我中有你,自然因素点缀在其中,让空间中注满空气和阳光。本案企图试图让人和建筑对话,建筑与空间对话,空间与自然对话,营造出一个情景式的建筑自然空间的结合体。
If space exists in the architecture, conversely, can architecture grow in the space? Space and architecture are intermingled and contain each other here. Natural factors are embellished, filling the space with air and sunshine. This design attempts to make people talk to architecture, make architecture talk to space, and make space talk to nature so as to create a situational combination of architecture, nature and space.
空间可以被看作是一个虚体,是由实体反转而成,为了说明这种虚与实,正与负的相对关系,实体反转后与框架所形成的空间就成为一种被雕刻的空间。空间和墙体被分层,分割和切片,并重新分布,而空间正是这种分散和重组过程中形成一种有意味的表现力丰富的空间,同时它用黑、白、灰三色来表示这种残缺与完整,实体与虚体的微妙关系。
Space can be regarded as a visional pattern formed by the inverse of a real one to illustrate the relative relations between the visional and the real as well as the positive and the negative, the space formed after the inversion of the real pattern becomes a space being carved. The space and walls are stratified, divided, sliced, and redistributed; the space, in this process of dispersion and reorganization, forms a meaningful and expressive space; meanwhile, it expresses the subtle relationship between incompleteness and completeness as well as the real pattern and visional pattern through three colors, black, white and gray.
恒福陶瓷企业是佛山具有悠久历史的本土品牌,整体一楼层高近六米,在空间高度上具有极好的优势,我们充分的利用了这个优势,用建筑语言对空间进行了改造,通过几个挑空的盒子穿插,营造一个复式空间结构,使空间具有建筑立体属性。所有功能对应的空间几何在挑空区域交织,使空间和人形成一个极具张力的对话,进而完成空间的独特性。
HEGFOUND is a tile brand with a long history based in Foshan. The first floor of its headquarters is nearly six meters high; this is an excellent advantage that we fully utilize to transform the space with architectural language and build a duplex space through the inserts of several empty boxes so as to make the space full of three-dimensional properties of the building. The spatial geometries corresponding to various functions are interwoven in the empty space so that the space and people form a dialogue with tension, and the uniqueness of the space is completed.
企业公共区域是一个极度开放的空间。休闲咖啡吧,周围环绕着开放式阶梯、水景、树木和艺术装置,供客人及员工在此休闲、交流及享受大自然的阳光和新鲜空气。除此之外,将二楼挑空盒子变成洽谈室,既考虑到私密性又具有居高临下的开阔视野。
The public area of an enterprise is an extremely open space. The casual coffee bar surrounded by open staircases, waterscape, trees and artistic installations allow guests and staff to relax, communicate and enjoy the sunshine and fresh air of the nature. In addition, the empty boxes on the second floor are turned into negotiation rooms in consideration of privacy and commanding broad vision.
洽谈室在设计上做了独特处理,利用斜插出来悬挑的盒子体作为建筑构造,使空间独特而富有张力。用扇形的阶梯空间连接左右两边的盒子结构。使空间相互交错,互相呼应,温润的木质材料与冰冷的大理石地面相互碰撞,浑然天成。通过屋顶焊接工艺,将盒子结构悬浮于空中,颠覆人们对于力学的常规感受!
The negotiation rooms are particularly processed in design; cantilevered boxes with oblique cutting design are taken as the architectural structure so that the space is unique and rich in tension. Sectorial stair space is connected with the box structures on the left and right to make the space interlace and echo with each other. The warm wood material and the cold marble floor collide with each other as if they are not a man-made structure. The boxes are suspended in the air through roof welding, subverting people’s conventional feeling of mechanics!
商业空间除了追求空间上的美感,更重要的是功能的再生和使用率,每一个角落都具有独特的使用价值。尽可能利用空间自身的属性和特点,将楼梯处理成阶梯教室,可以承担非正式会议,或举办小型沙龙,亦可以是公共书吧,再或者是小剧场…….
Besides the aesthetic feeling on the space, what is more important for a commercial space is the regeneration and utilization rate of functions; each corner should have its unique use value, the attributes and characteristics of the space should be made full use, the stairs are turned into a terrace classroom for informal meetings, small salons, a public book bar, or a small theater......
设计师通过使用特殊材质来延续建筑设计的特征,为了阻挡西边太阳的直射,运用晶莹剔透水晶砖和白色大理石砖交混在一起形成一道天然屏风。
Special materials are used to continue the characteristics of architectural design, glittering and translucent crystal bricks and white marble bricks are mixed to form a natural screen in order to block the direct sunlight from the west.
后面放置绿植,下午强烈的阳光透过树丛照射在水晶墙上,通过水晶墙的折射效应,营造出具有奇特梦幻般的场景。以光之力,与艺相辅,波光粼粼的不锈钢天花,其结构的的变化,令光的融合度也产生变化,在日与夜的变化中,通过微妙的色调改变着整个空间的氛围。
"Green plants are placed at the back, the strong sunlight shines on the crystal wall in the afternoon through the trees and create a unique and dreamy scene through the refraction effect of the crystal wall. The structure of the shimmering stainless steel ceiling changes with the force of light and auxiliary of art so that the fusion degrees of light also make a difference, it changes the atmosphere of the whole space through delicate tonal change during the alternation of day and night."
“阳光透过林荫洒在水面上,麋鹿悠闲的漫步……”在大堂休闲空间中使用浪漫主义手段来呈现一种天然氧吧氛围。大片的绿植及用水纹不锈钢营造的水面,通过镜面反射将树丛变得更有纵深感,旷达与细腻碰撞交映,舒展奇妙的流动氛围,人类与大自然共存的和谐。
The sunlight is shining on the water through the trees, and moose are walking leisurely..." Romantic means are used in the leisure space of the lobby to present a natural oxygen bar atmosphere. Large area of green plants and the water surface created by corrugated stainless steel make the trees more profound through the mirror reflection. The broadness and delicacy collide and enhance with each other, extending the wonderful flowing atmosphere as well as the harmony between human beings and nature.
引景入室,设计师为来访者创造一场生命感的邂逅,被设定的的墙面产生的光和影,与彼时灵动线条,禅心明月,树影斑驳交相辉映,平增一份雅趣。
The designers bring the scenes into the rooms and create an encounter with the sense of life for the visitors; the light and shadow produced from the specific wall add radiance to the flexible lines, meditative mind, bright moon and mottled shades, and increase an elegant taste.
意大利建筑师布鲁诺·赛维在《现代建筑语言》中指出,在现代建筑中,室内空间由光与实体(造型)来变现,人对空间的感知和体验是在光和形成空间的实体元素的参与下完成的。” 言之,光是室内设计必不可缺的一部分。光作为一种特殊媒介,它对空间氛围营造有着重要作用,恰到好处的光线处理能更好地感知空间,唤起其空间的共鸣。巧妙地利用自然采光,能让室内外景观建立起联系,并能增强空间与自然室外景色的互动。
Italian architect Bruno Zevi pointed out in The Modern Language of Architecture that in modern architectures, interior space is realized by light and solid (modeling), and people’s perception and experience of space are completed with the participation of light and the entity elements that form space. In other words, light is an essential part of interior design, as a special medium, it plays an important role in creating space atmosphere. Proper light processing can better perceive space and arouse its space resonance. The ingenious use of natural lighting can establish a connection between the indoor and outdoor landscapes, and improve the interactions between the space and the natural outdoor landscapes.
在现实生活中,人们生活在喧嚣繁杂的钢筋水泥城市里,内心幻想着一处归隐避世的清净之所,以此为创意的闲庭后院就是试图实现这一理想,用素雅的水泥砖以及质朴的木材做成的都市庭院,构建一处暂避浮躁喧嚣、净化心灵之地,庭院一边做成的围合式休闲区舒适惬意,休闲区中央石台放置的户外烤炉更给人送去一丝暖意。这就是主创的设计初衷。
In real life, what people dream amid the hustle and bustle of reinforced concrete cities is a clean place that hides from the world. And a creative backyard is just the right trial to realize this ideal. The urban courtyard made using elegant cement bricks and simple wood builds a place to get rid of fickleness and purify the soul. The enclosed leisure area on one side of the courtyard is comfortable with the oven placed outdoor, giving people warmness. This is the original intention for the creation.
选材区以产品展示为核心,通过疏密有致的几何体块序列进行叙事。非对称空间是在空间维度上寻找平衡点,是相对复杂且丰富的,空间体量和疏密有致的几何体块之间的关系形成了空间独有的艺术形态,在细节处理上,对材料的对缝,收边,比例都经过细致的推敲和设计和精磨精切。追求品质,而这就是建筑对使用者体现出的尊重感。黄铜等金属材质低调地出现在空间中,使得室内的宁静氛围多了些许丰富的变化。而木材与石材的运用,亦使空间多了些温润及细致的表达。
The selection area centers on product display for the narrative made through a sequence of sparse-and-dense geometric blocks. The relatively complex yet rich asymmetric space finds its balance point in the spatial dimension, creating the unique artistic form of the space in terms of the relationship between the spatial volume and the dense geometric block forms. When it comes to the treatment of details, the seams, edges, and proportions of the material are carefully sculpted, designed, and refined. To pursue quality represents the sense of respect shown to architecture users. Metals like the low-key brass appear in the space, contributing to varied changes of the interior serenity. The wood and stone are used to warmly and meticulously express the space.
项目名称 | 恒福陶瓷总部展厅
Project name | HEGFOUND Headquarters
项目类型 | 办公空间、展示空间
Project type | Working & exhibition space
项目地址 | 佛山市禅城区南庄陶博大道 29 号
Location | No.29,Taobo Avenue,Nanzhuang Town,Chancheng District,Foshan,China
设计主创 | 汪志科&李小水
Chief designers | Wang Zhike & Li Xiaoshui
设计团队 | 拓维设计
Design firm | FOSHAN TOPWAY DESIGN
项目面积 | 1800 平方米
Project area | 1,800 sqm
设计时间 |
2018.11
Start time | November 2018
竣工时间 |
2019.4
Completion time | April 2019
主要材料 | 加拿大 CHOIMER 涂料,恒福瓷砖,玻璃砖
Main materials | CHOIMER paint, HEGFOUND tiles, GLASS BLOCK
业主 | 恒福陶瓷
Client | HEGFOUND
摄影师 | 欧阳云
Photography | Ouyang Yun
FOSHAN TOPWAY DESIGN
恒福陶瓷总部展厅
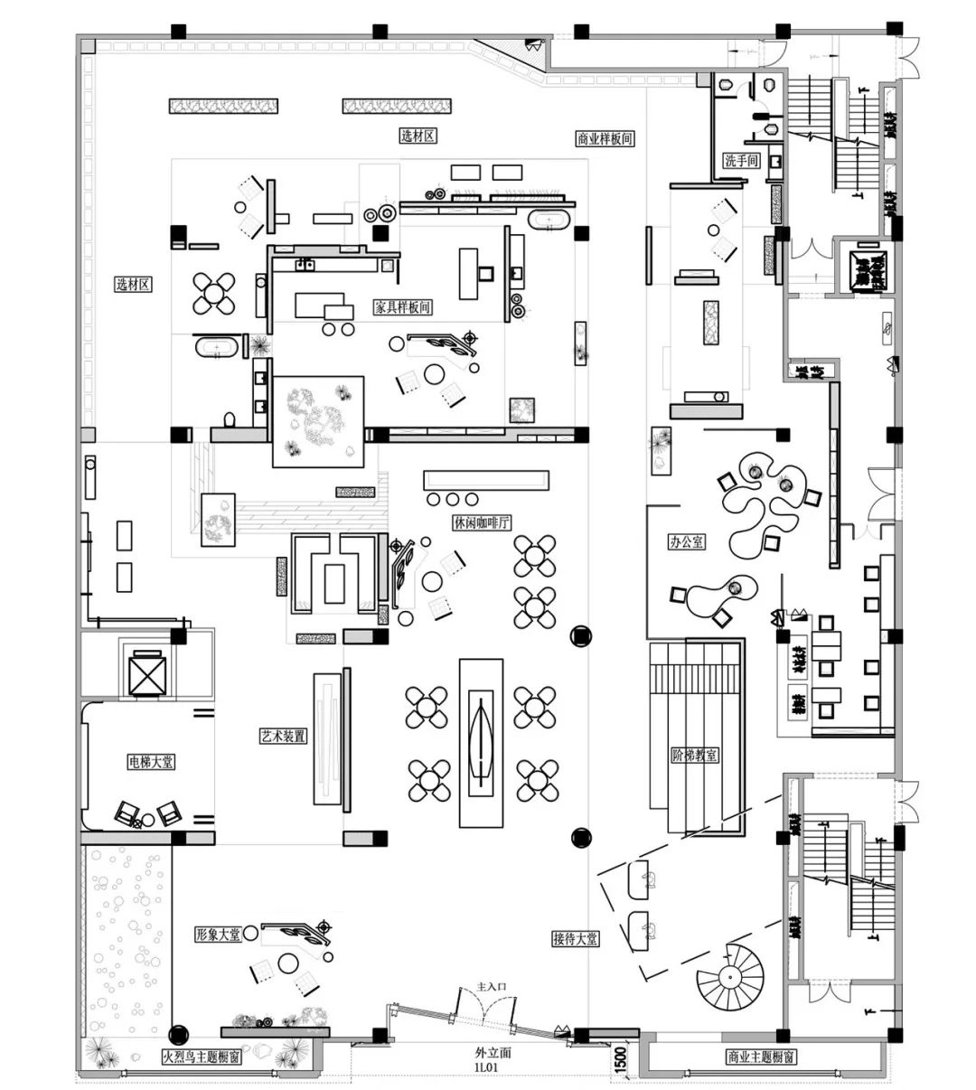
图纸呈现
平面图
FOSHANTOPWAY DESIGN
恒福陶瓷总部展厅
公司介绍
主创设计师 汪志科(左)、李小水(右)佛山市拓维室内设计机构,专注于企业总部,展厅空间,办公空间,娱乐空间、酒店、商业卖场、等商业空间项目,为客户提供项目规划、园林、建筑外观、室内空间、软装陈设一系列整体解决方案。
Based in Foshan, China, TOPWAY DESIGN is dedicated to working on a wide range of commercial interior projects including headquarters, exhibition spaces, offices, entertainment spaces, hotels, and shopping malls, etc., and provides clients with integrated design solutions that cover project planning, landscape, architectural appearance, interior space, decoration and furnishings.
拓维设计公司在设计上坚持空间独创性和人文情怀,将功能性、文化性、唯美性进行有机融合的设计理念,除满足空间在五觉体验感的同时最大限度的创造商业附加值,重视商业逻辑和运营法则在空间中的重要性,并强调概念转化和最终落地,主张将艺术自然概念和商业空间进行完美融合,用国际化的视野将东西方美学思想融汇贯通,将跨界思维和当代设计思想融汇到具体项目中。
The company adheres to originality and humanism of spaces, and advocates the coordinated integration of functionality, culture and aesthetics. In addition to providing unique experiences for all five senses, we strive to create added value for spaces to the largest extent possible, emphasize the importance of commercial logic and operational principles for spaces, and attach great importance to execution and realization of design concepts. Besides, we insist on fusing art and nature with commercial spaces in a perfect manner, work on combination of Oriental and Western aesthetics with an international vision, and strive to incorporate trans-boundary thinking as well as modern design philosophy into specific projects.
拓维设计公司聚集了一群年轻、专业、富有激情和活力的团队,从前端项目规划到设计创意再到技术支持最后到落地实施,全方位多维度为项目顺利实施保驾护航,正是团队的精诚合作和不懈努力,拓维赢得了市场的认可和行业的赞誉,使我们成为业界最具创造商业价值空间设计公司之一。
FOSHAN TOPWAY DESIGN is equipped with a group of young, professional, energetic and passionate people, which ensures a smooth process for each project in every step, ranging from preliminary planning to design scheme, technical support, execution and realization. Thanks to efficient cooperation and unremitting efforts of the team, Topway Design has won wide recognition and praise from the market and industry and has established itself as a world-class spatial design company excelling at commercial value creation.
拓维设计公司立足于广佛地区,项目范围辐射全国,所服务的一线品牌众多,并保持每年有大量的项目作品的记录,其中多项作品荣获国内及国际奖项。
我们将继续努力为客户创造更多具有设计和品牌价值的作品!
So far, FOSHAN TOPWAY DESIGN has completed lots of projects throughout China and served for multiple prestigious brands, and is productive each year. Plenty of our works have been awarded by various domestic and global design competitions. Looking forward, we will continue to create more works that feature exceptional design and deliver brand value for our clients.
拓维设计近期案例
VIRG casa 总部展厅
供稿 / 佛山市拓维室内设计机构
Gooobrand
品牌设计
客服
消息
收藏
下载
最近















































