查看完整案例


收藏

下载
《道德经》有云:道法自然……自然方可永恒!一切对未来美好事物的追求都源于对自然的向往,对未来的渴望。
塑造艺境 光遇未来
如果空间存在于建筑之中,反过来,建筑可否生长在空间之中。此处空间和建筑交混在一起,你中有我,我中有你,自然因素点缀在其中,让空间中注满空气和阳光。本案企图试图让人和建筑对话,建筑与空间对话,空间与自然对话,营造出一个情景式的建筑自然空间的结合体。
空间可以被看作是一个虚体,是由实体反转而成,为了说明这种虚与实,正与负的相对关系,实体反转后与框架所形成的空间就成为一种被雕刻的空间。空间和墙体被分层,分割和切片,并重新分布,而空间正是这种分散和重组过程中形成一种有意味的表现力丰富的空间,同时它用黑、白、灰三色来表示这种残缺与完整,实体与虚体的微妙关系。
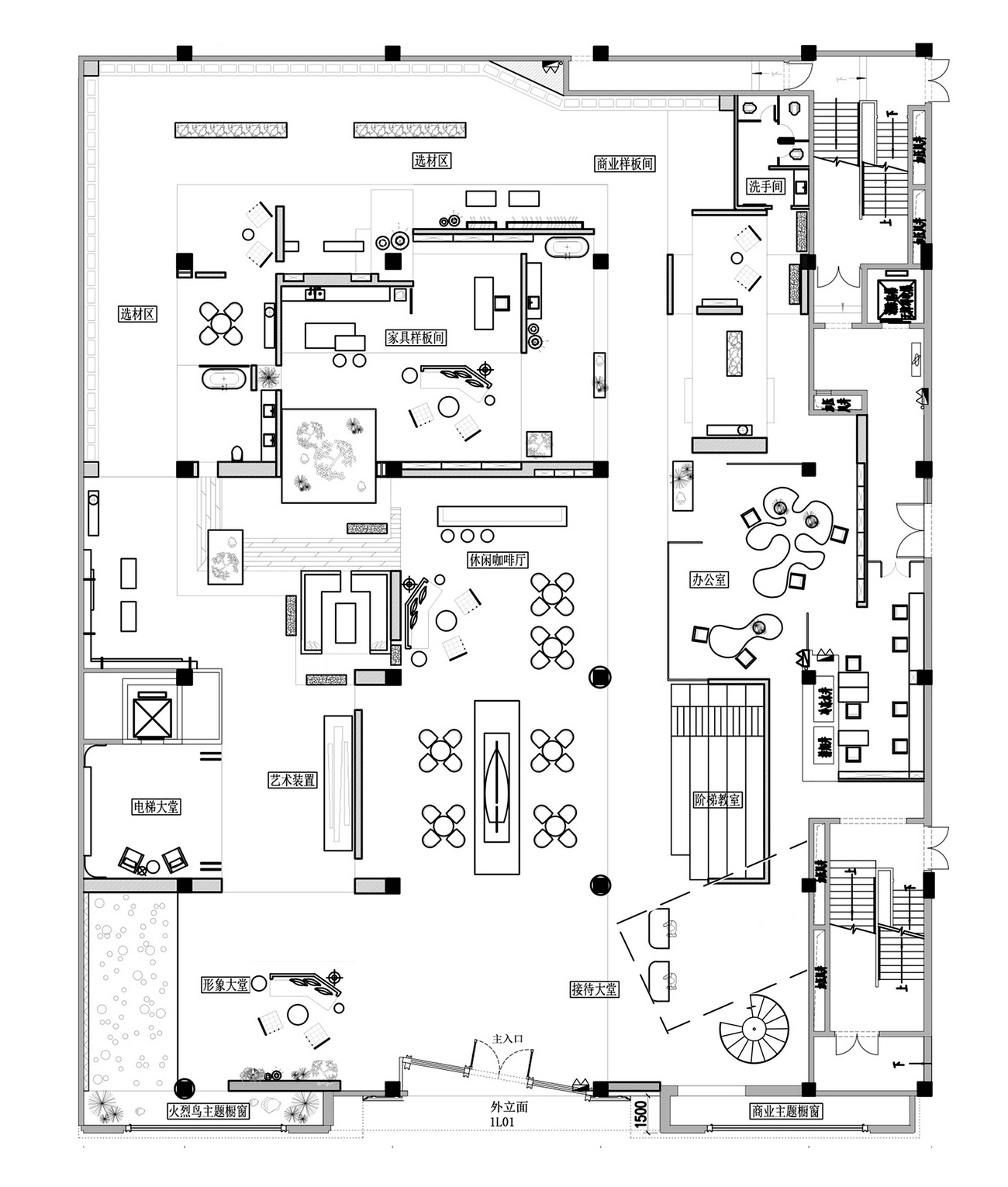
恒福陶瓷企业是佛山具有悠久历史的本土品牌,整体一楼层高近六米,在空间高度上具有极好的优势,我们充分的利用了这个优势,用建筑语言对空间进行了改造,通过几个挑空的盒子穿插,营造一个复式空间结构,使空间具有建筑立体属性。所有功能对应的空间几何在挑空区域交织,使空间和人形成一个极具张力的对话,进而完成空间的独特性。
企业公共区域是一个极度开放的空间。休闲咖啡吧,周围环绕着开放式阶梯、水景、树木和艺术装置,供客人及员工在此休闲、交流及享受大自然的阳光和新鲜空气。除此之外,将二楼挑空盒子变成洽谈室,既考虑到私密性又具有居高临下的开阔视野。
洽谈室在设计上做了独特处理,利用斜插出来悬挑的盒子体作为建筑构造,使空间独特而富有张力。用扇形的阶梯空间连接左右两边的盒子结构。使空间相互交错,互相呼应,温润的木质材料与冰冷的大理石地面相互碰撞,浑然天成。通过屋顶焊接工艺,将盒子结构悬浮于空中,颠覆人们对于力学的常规感受!
商业空间除了追求空间上的美感,更重要的是功能的再生和使用率,每一个角落都具有独特的使用价值。尽可能利用空间自身的属性和特点,将楼梯处理成阶梯教室,可以承担非正式会议,或举办小型沙龙,亦可以是公共书吧,再或者是小剧场…….
设计师通过使用特殊材质来延续建筑设计的特征,为了阻挡西边太阳的直射,运用晶莹剔透水晶砖和白色大理石砖交混在一起形成一道天然屏风。
后面放置绿植,下午强烈的阳光透过树丛照射在水晶墙上,通过水晶墙的折射效应,营造出具有奇特梦幻般的场景。以光之力,与艺相辅,波光粼粼的不锈钢天花,其结构的的变化,令光的融合度也产生变化,在日与夜的变化中,通过微妙的色调改变着整个空间的氛围。
“阳光透过林荫洒在水面上,麋鹿悠闲的漫步……”在大堂休闲空间中使用浪漫主义手段来呈现一种天然氧吧氛围。大片的绿植及用水纹不锈钢营造的水面,通过镜面反射将树丛变得更有纵深感,旷达与细腻碰撞交映,舒展奇妙的流动氛围,人类与大自然共存的和谐。
引景入室,设计师为来访者创造一场生命感的邂逅,被设定的的墙面产生的光和影,与彼时灵动线条,禅心明月,树影斑驳交相辉映,平增一份雅趣。
意大利建筑师布鲁诺·赛维在《现代建筑语言》中指出,在现代建筑中,室内空间由光与实体(造型)来变现,人对空间的感知和体验是在光和形成空间的实体元素的参与下完成的。” 换言之,光是室内设计必不可缺的一部分。光作为一种特殊媒介,它对空间氛围营造有着重要作用,恰到好处的光线处理能更好地感知空间,唤起其空间的共鸣。巧妙地利用自然采光,能让室内外景观建立起联系,并能增强空间与自然室外景色的互动。
在现实生活中,人们生活在喧嚣繁杂的钢筋水泥城市里,内心幻想着一处归隐避世的清净之所,以此为创意的闲庭后院就是试图实现这一理想,用素雅的水泥砖以及质朴的木材做成的都市庭院,构建一处暂避浮躁喧嚣、净化心灵之地,庭院一边做成的围合式休闲区舒适惬意,休闲区中央石台放置的户外烤炉更给人送去一丝暖意。这就是主创的设计初衷。
选材区以产品展示为核心,通过疏密有致的几何体块序列进行叙事。非对称空间是在空间维度上寻找平衡点,是相对复杂且丰富的,空间体量和疏密有致的几何体块之间的关系形成了空间独有的艺术形态,在细节处理上,对材料的对缝,收边,比例都经过细致的推敲和设计和精磨精切。追求品质,而这就是建筑对使用者体现出的尊重感。黄铜等金属材质低调地出现在空间中,使得室内的宁静氛围多了些许丰富的变化。而木材与石材的运用,亦使空间多了些温润及细致的表达。
项目信息项目名称:恒福陶瓷总部展厅
项目类型:办公空间、展示空间
项目地址:佛山市禅城区南庄陶博大道29号
设计主创:汪志科&李小水
设计团队:拓维设计
项目面积:1800平方米
设计时间:2018.11
竣工时间:2019.4
主要材料:加拿大CHOIMER涂料,恒福瓷砖,玻璃砖
业主:恒福陶瓷
攝影师:欧阳云
关于拓维设计
主创设计师 汪志科(左)、李小水(右)
佛山市拓维室内设计机构, 专注于企业总部,展厅空间,办公空间,娱乐空间、酒店、商业卖场、等商业空间项目,为客户提供项目规划、园林、建筑外观、室内空间、软装陈设一系列整体解决方案。
拓维设计公司在设计上坚持空间独创性和人文情怀,将功能性、文化性、唯美性进行有机融合的设计理念,除满足空间在五觉体验感的同时最大限度的创造商业附加值,重视商业逻辑和运营法则在空间中的重要性,并强调概念转化和最终落地,主张将艺术自然概念和商业空间进行完美融合,用国际化的视野将东西方美学思想融汇贯通,将跨界思维和当代设计思想融汇到具体项目中。
客服
消息
收藏
下载
最近







































